Via Nomentana | Adiacenze Villa Blanc – LUISS VENDITA

Via Nomentana - Roma (Roma)
€ 450.000
  • Trilocale
  • 95 mq
  • 2 bagni

Appartamento in Vendita a Roma

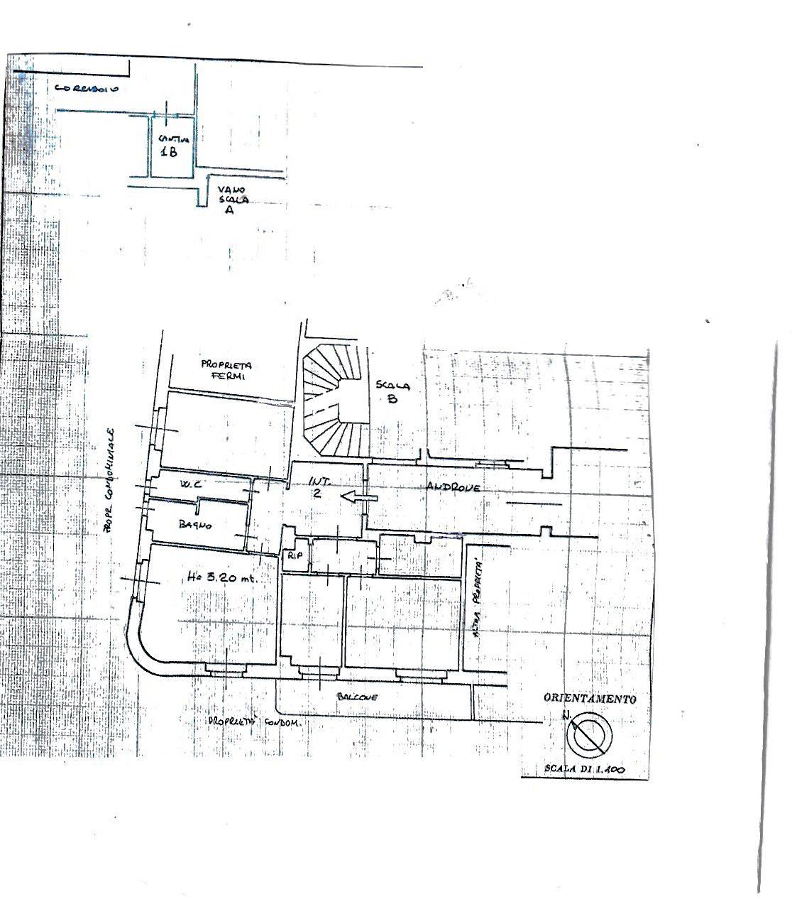
In una delle zone più eleganti e ricercate del quadrante nord-est di Roma, nelle immediate vicinanze di Villa Blanc e della LUISS Business School, proponiamo in vendita un appartamento ad uso abitativo, situato al piano terra di un palazzo signorile, dotato di ascensore e servizio di portineria.
L’immobile ha un affaccio che corrisponde ad un primo piano.
La superficie commerciale è di circa 95 mq, con balcone e cantina di pertinenza.
L’appartamento è composto da ampio ingresso, tre camere, cucina, due bagni, due ripostigli, di cui uno di grandi dimensioni.
La proprietà si presenta da ristrutturare, offrendo ottime possibilità di personalizzazione degli spazi interni e risultando adatta sia come abitazione privata, sia come investimento per locazioni, grazie alla vicinanza con importanti istituzioni universitarie internazionali.
La posizione è particolarmente strategica: l’area tra Via Nomentana, il quartiere Trieste e Villa Torlonia è caratterizzata da palazzi d’epoca e contesti residenziali di pregio, con numerosi servizi, attività commerciali, scuole e collegamenti diretti con il centro storico.
La presenza della LUISS e della Marymount International School rende la zona molto richiesta anche da professionisti, studenti universitari e clientela internazionale.
Spese condominiali ordinarie Euro 110 mensili.
Prezzo richiesto: € 450.000

LEGGI TUTTO

CONDIVIDI SUI SOCIAL

DATI PRINCIPALI

Riferimento
630427
Contratto
Vendita
Tipologia
Appartamento
Superficie
95 mq
Locali
3
Camere da letto
2
Bagni
2
Piano
Piano terra
Totale piani
6

CARATTERISTICHE

Ascensore

COSTI

Prezzo
€ 450.000,00
Spese condominiali
€ 110,00 / mese

EFFICIENZA ENERGETICA

Stato
Da ristrutturare
Anno costruzione
1940
Riscaldamento
Centralizzato
Classe energetica
G
IPE
351,00 kWh/m²a

A+

A

B

C

D

E

F

351,00 kWh/m²a | Classe energetica G

G

MAPPA

ANNUNCI SIMILI

VENDITA 20
€ 850.000
Appartamento in Vendita a Roma, Zona Bologna
  • Più di 5 locali
  • 212 mq
  • 3 bagni
VENDITA 20
€ 890.000
Appartamento in Vendita a Roma (Roma)
  • Quadrilocale
  • 152 mq
  • 2 bagni
VENDITA 20
€ 720.000
Appartamento in Vendita a Roma, Zona Bologna
  • Più di 5 locali
  • 152 mq
  • 2 bagni
VENDITA 20
€ 1.190.000
Appartamento in Vendita a Roma, Zona Bologna
  • Più di 5 locali
  • 210 mq
  • 3 bagni
VENDITA 20
€ 399.000
Appartamento in Vendita a Roma (Roma)
  • Trilocale
  • 112 mq
  • 2 bagni
VENDITA 20
€ 390.000
Appartamento in Vendita a Roma (Roma)
  • Trilocale
  • 92 mq
  • 1 bagno