Via Massimo D'Azeglio 44 - Trilocale arredato AFFITTO

Via Massimo d'Azeglio 44 - Roma (Roma)
€ 2.450 mensili
  • Trilocale
  • 105 mq
  • 2 bagni

Appartamento in Affitto a Roma

In Via Massimo D'Azeglio, angolo via Antonio Rosmini e in prossimità di Via Torino, proponiamo la locazione a suo abitativo di un appartamento completamente ristrutturato.

Si esclude attività ricettiva extraalberghiera, sublocazione, casa vacanza. Si richiede contratto a persona fisica ( opzione cedolare secca)

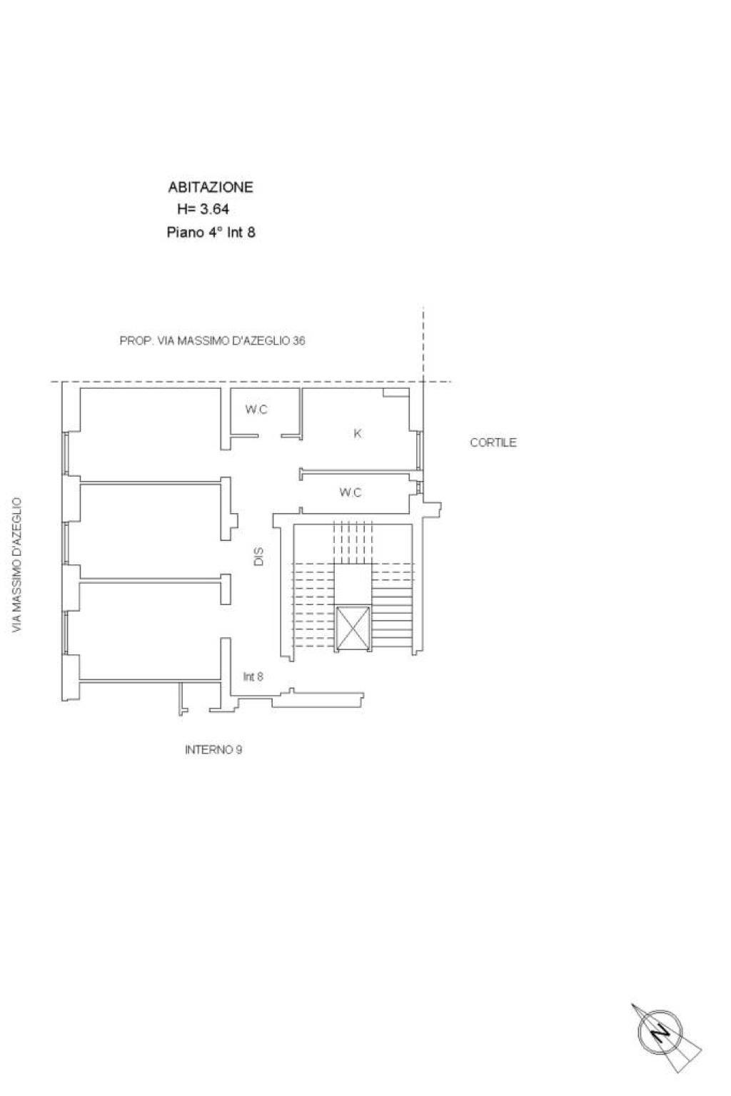
Al piano quarto, con affacci su strada e su corte interna: luminoso e con ottimo riscontro d'aria interno.

Edificio di pregio architettonico, in eccellente stato manutentivo, con parti comuni e ascensore di ottimo decoro.

Appartamento composto di ingresso - ampio corridoio con boiserie libreria - soggiorno - due ampie camere da letto matrimoniali - doppi servizi ( doccia e vasca ) - ampia cucina completamente arredata e pienamente abitabile.

Pavimenti dell'epoca finemente restaurati, impianto idrico sanitario ed elettrico a norma, riscaldamento autonomo: caldaia per produzione di acqua calda sanitaria e riscaldamento; radiatori di nuova generazione.

Cucina in legno, realizzata su progetto su misura, completa di frigorifero, freezer, cinque fuochi e cappa di aspirazione, pensili verticali superiori e inferiori.

Osservatorio Immobiliare s.r.l.
Via Vittoria 81
00187 - Roma
0669300664
3427739786

osservatorioimmobiliare@osservatorioimmobiliare.com
m.canale@osservatorioimmobiliare.com

tel 3247739786
osservatorioimmobiliare@osservatorioimmobiliare.com
osservatorioimmobiliare@pec.it

La Società, costituita nell’anno 2001, opera nei servizi immobiliari prestando consulenza specialistica nella intermediazione e nella gestione di immobili del comparto residenziale e terziario commerciale di Roma, Milano e Torino. Attualmente vanta un portafogli di incarichi per conto terzi di primario ordine e possiede una consolidata rete di rapporti commerciali con importanti enti e gruppi imprenditoriali italiani cui offre servizi di consulenza per lo studio, lo sviluppo e la conduzione della promozione e commercializzazioni di portafogli immobiliari, per la loro gestione e migliore redditività. CLASSE ENERGETICA: G

LEGGI TUTTO

CONDIVIDI SUI SOCIAL

DATI PRINCIPALI

Riferimento
635846
Contratto
Affitto
Tipologia
Appartamento
Superficie
105 mq
Locali
3
Camere da letto
2
Cucina
Abitabile
Bagni
2
Piano
4 °
Totale piani
5

CARATTERISTICHE

Ascensore

COSTI

Canone
Affitto € 2.450,00 al mese
Tipo locazione
3+2 concordato
Spese condominiali
€ 100,00 / mese, non incluse nel canone

EFFICIENZA ENERGETICA

Stato
Ristrutturato
Anno costruzione
1885
Riscaldamento
Autonomo
Climatizzazione
Si
Classe energetica
G
IPE
175,00 kWh/m²a

A+

A

B

C

D

E

F

175,00 kWh/m²a | Classe energetica G

G

MAPPA

ANNUNCI SIMILI

AFFITTO 17
€ 1.600 mensili
Appartamento in Affitto a Roma (Roma)
  • Trilocale
  • 65 mq
  • 2 bagni
AFFITTO 11
€ 1.800 mensili
Appartamento in Affitto a Roma (Roma)
  • Quadrilocale
  • 125 mq
  • 1 bagno
AFFITTO 7
€ 2.600 mensili
Appartamento in Affitto a Roma (Roma)
  • Più di 5 locali
  • 200 mq
  • 2 bagni
AFFITTO 20
€ 2.100 mensili
Appartamento in Affitto a Roma (Roma)
  • Quadrilocale
  • 120 mq
  • 2 bagni
AFFITTO 18
€ 2.500 mensili
Appartamento in Affitto a Roma (Roma)
  • Trilocale
  • 110 mq
  • 2 bagni
AFFITTO 20
€ 2.600 mensili
Appartamento in Affitto a Roma (Roma)
  • Quadrilocale
  • 100 mq
  • 3 bagni