VIA LORENZO IL MAGNIFICO -T329 VENDITA

Via Lorenzo il Magnifico, 40 - Roma, Zona Bologna
€ 495.000
  • Trilocale
  • 88 mq
  • 1 bagno

Appartamento in Vendita a Roma

Universo Immobiliare Roma è lieta di proporre in vendita un'interessante proprietà situata in via Lorenzo il Magnifico, a pochi passi da Piazza Bologna, nel cuore di uno dei contesti più richiesti e ottimamente collegati del quartiere Bologna / Nomentano.

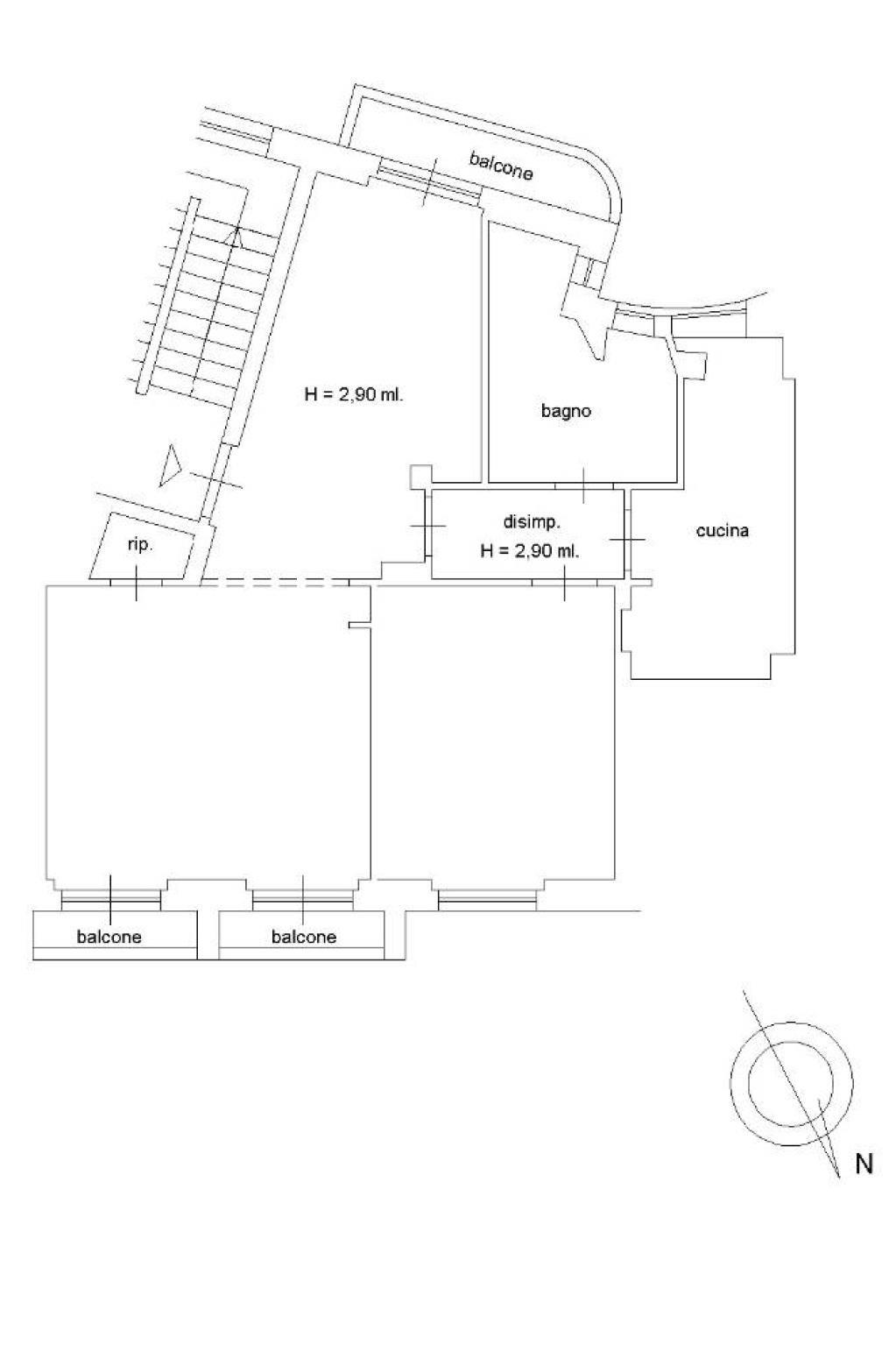
L'appartamento, posto al quinto piano, si distingue per la distribuzione funzionale degli ambienti e per la piacevole luminosità garantita dal piano alto e dalla presenza di due balconi.

Internamente è composto da: ingresso, soggiorno accogliente, cucina, bagno, camera da letto matrimoniale e un secondo spazio attualmente aperto, facilmente trasformabile in una seconda camera. Completano la proprietà due balconi, ideali per momenti di relax all'aperto.

La posizione strategica, nelle immediate vicinanze delle università Sapienza Università di Roma e LUISS, oltre che di servizi, metropolitana e principali collegamenti, rende l'immobile una soluzione ideale sia per uso abitativo sia per investimento.
Grazie alla conformazione dell'appartamento, è possibile ricavare fino a tre camere da letto, ottimizzando la resa locativa per studenti o giovani professionisti.

Le presenti informazioni non costituiscono elemento contrattuale.

Universo Immobiliare Roma
Consulenza completa per compravendite e locazioni residenziali
Property Finder- Valutazioni immobiliari gratuite - Assistenza tecnico-legale.
Tel. 06 62274880 | 3913881635 (Carchedi Giuseppe)
Ufficio: Via Padova 63 Roma

LEGGI TUTTO

CONDIVIDI SUI SOCIAL

DATI PRINCIPALI

Riferimento
637814
Contratto
Vendita
Tipologia
Appartamento
Superficie
88 mq
Locali
3
Camere da letto
2
Cucina
Abitabile
Bagni
1
Piano
5 °
Totale piani
7

CARATTERISTICHE

Ascensore

COSTI

Prezzo
€ 495.000,00
Spese condominiali
€ 68,00 / mese

EFFICIENZA ENERGETICA

Stato
Abitabile
Anno costruzione
1940
Riscaldamento
Centralizzato
Classe energetica
F
IPE
186,00 kWh/m²a

A+

A

B

C

D

E

186,00 kWh/m²a | Classe energetica F

F

G

MAPPA

ANNUNCI SIMILI

VENDITA 18
€ 295.000
Appartamento in Vendita a Roma, Zona Bologna
  • Trilocale
  • 65 mq
  • 1 bagno
VENDITA 20
€ 649.000
Appartamento in Vendita a Roma, Zona Bologna
  • Quadrilocale
  • 115 mq
  • 1 bagno
VENDITA 20
€ 689.000
Appartamento in Vendita a Roma, Zona Bologna
  • Quadrilocale
  • 130 mq
  • 2 bagni
VENDITA 12
€ 420.000
Appartamento in Vendita a Roma, Zona Bologna
  • Trilocale
  • 75 mq
  • 1 bagno
VENDITA 20
Trattativa Riservata
Appartamento in Vendita a Roma, Zona Bologna
  • Più di 5 locali
  • 260 mq
  • 2 bagni
VENDITA 20
€ 529.000
Appartamento in Vendita a Roma, Zona Bologna
  • Trilocale
  • 95 mq
  • 1 bagno
VENDITA 20
€ 529.000
Appartamento in Vendita a Roma, Zona Bologna
  • Trilocale
  • 95 mq
  • 1 bagno