€ 235.000
  • Trilocale
  • 101 mq
  • 2 bagni

Appartamento in Vendita a Roma

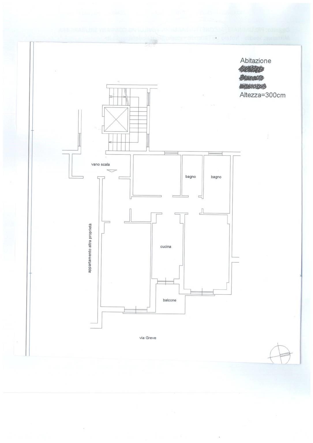
Proponiamo luminoso appartamento posto al quinto piano, con affacci aperti, inserito in un contesto residenziale tranquillo e ben servito.

L’immobile è composto da ingresso, ampio salone, due camere da letto, cucina abitabile con accesso al balcone e doppi servizi.

Internamente si presenta in buono stato manutentivo, con pavimentazione in parquet, infissi in PVC con doppio vetro, porte interne in legno e aria condizionata. Il riscaldamento è autonomo, garantendo comfort e gestione efficiente dei consumi.

Completa la proprietà la possibilità di usufruire della terrazza condominiale. Lo stabile è attualmente in fase di rifacimento della facciata, intervento che contribuirà a valorizzare ulteriormente l’immobile.

La posizione è strategica e particolarmente comoda, con supermercati, farmacie, scuole e attività commerciali nelle immediate vicinanze. Ottimi i collegamenti con il resto della città grazie alle numerose linee di autobus, alla linea ferroviaria FL1/FL5 e alla metropolitana Linea B.

Per informazioni e/o appuntamenti potete contattarci telefonicamente o via email: siamo a vostra completa disposizione.

LEGGI TUTTO

CONDIVIDI SUI SOCIAL

DATI PRINCIPALI

Riferimento
633263
Contratto
Vendita
Tipologia
Appartamento
Superficie
101 mq
Locali
3
Camere da letto
2
Cucina
Abitabile
Bagni
2
Piano
5 °
Totale piani
8

CARATTERISTICHE

Ascensore

COSTI

Prezzo
€ 235.000,00
Spese condominiali
€ 100,00 / mese

EFFICIENZA ENERGETICA

Stato
Abitabile
Anno costruzione
1960
Riscaldamento
Autonomo
Climatizzazione
Si
Classe energetica
G
IPE
351,00 kWh/m²a

A+

A

B

C

D

E

F

351,00 kWh/m²a | Classe energetica G

G

MAPPA

ANNUNCI SIMILI

VENDITA 17
€ 230.000
Appartamento in Vendita a Roma, Zona Magliana
  • Trilocale
  • 100 mq
  • 1 bagno
VENDITA 20
€ 259.000
Appartamento in Vendita a Roma, Zona Magliana
  • Trilocale
  • 111 mq
  • 1 bagno
VENDITA 20
€ 268.000
Appartamento in Vendita a Roma, Zona Magliana
  • Trilocale
  • 101 mq
  • 1 bagno
VENDITA 20
€ 219.000
Appartamento in Vendita a Roma, Zona Magliana
  • Trilocale
  • 85 mq
  • 1 bagno
VENDITA 20
€ 240.000
Appartamento in Vendita a Roma, Zona Magliana
  • Trilocale
  • 100 mq
  • 1 bagno
VENDITA 20
€ 210.000
Appartamento in Vendita a Roma, Zona Magliana
  • Trilocale
  • 70 mq
  • 1 bagno
VENDITA 19
€ 249.000
Appartamento in Vendita a Roma, Zona Magliana
  • Quadrilocale
  • 130 mq
  • 2 bagni
VENDITA 20
€ 168.000
Appartamento in Vendita a Roma, Zona Magliana
  • Trilocale
  • 70 mq
  • 1 bagno