VIA DEL CORSO LOCAZIONE E CESSIONE ATTIVITA' AFFITTO

Via del Corso 24 - Roma (Roma)
€ 2.200 mensili
  • Trilocale
  • 63 mq
  • 1 bagno

Appartamento in Affitto a Roma

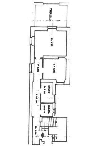
Nel cuore del Centro Storico di Roma, a pochi passi da Piazza del Popolo, precisamente in Via del Corso, prossima a tutti i collegamenti capitolini ed ai principali punti di interesse turistico, sito all'interno di un suggestivo palazzetto d'epoca, proponiamo la cessione di un'attività di casa vacanza e la relativa locazione dell'immobile. Ubicazione strategica e ottima rendita e opportunità di investimento, gestita da oltre un anno con ottimi fatturati dimostrabili . Luminoso con affaccio esterno e un delizioso terrazzino , è dotato di doppia esposizion. La superficie di circa mq 60 composta da: ingresso, salone con divano, camera padronale, cucina semiabitabile, ampio bagno. Completamente arredato con finiture di pregio, parquet, climatizzazione presente in tutti gli ambienti. Canone mensile: € 2.200,00; contratto 6+6 (inizio Giugno 2023). Trattative riservate per la licenza di casa vacanze per 2 posti letto. Per maggiori informazioni e/o visita contattare CMC Real Estate ai seguenti recapiti: +39 0645598430 ; cmcrealestate@icloud.com ; www.cmcrealestate.it

LEGGI TUTTO

CONDIVIDI SUI SOCIAL

DATI PRINCIPALI

Riferimento
639148
Contratto
Affitto
Tipologia
Appartamento
Superficie
63 mq
Locali
3
Camere da letto
1
Cucina
Abitabile
Bagni
1
Piano
1 °
Totale piani
3

CARATTERISTICHE

Ascensore

COSTI

Canone
Affitto € 2.200,00 al mese
Tipo locazione
6+6

EFFICIENZA ENERGETICA

Stato
Ristrutturato
Anno costruzione
1850
Riscaldamento
Autonomo
Climatizzazione
Si
Classe energetica
F
IPE
175,00 kWh/m²a

A+

A

B

C

D

E

175,00 kWh/m²a | Classe energetica F

F

G

MAPPA

ANNUNCI SIMILI

AFFITTO 17
€ 30.000 mensili
Appartamento in Affitto a Roma (Roma)
  • Più di 5 locali
  • 564 mq
  • 4 bagni
AFFITTO 20
€ 6.000 mensili
Appartamento in Affitto a Roma (Roma)
  • Più di 5 locali
  • 217 mq
  • 4 bagni
AFFITTO 2
€ 10.000 mensili
Appartamento in Affitto a Roma (Roma)
  • Più di 5 locali
  • 230 mq
  • 2 bagni
AFFITTO 20
€ 3.200 mensili
Appartamento in Affitto a Roma (Roma)
  • Quadrilocale
  • 170 mq
  • 2 bagni
AFFITTO 20
€ 8.700 mensili
Appartamento in Affitto a Roma (Roma)
  • Più di 5 locali
  • 169 mq
  • 2 bagni