Vermicino - appartamento di 55 mq posto al piano terra VENDITA

Via Fontanile di Vermicino 22 - Frascati (Roma)
€ 120.000
  • Bilocale
  • 55 mq
  • 1 bagno

Appartamento in Vendita a Frascati

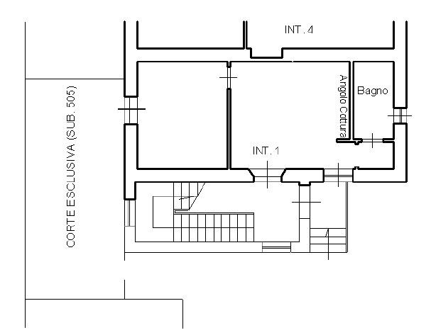
Vermicino - appartamento di 55 mq posto al piano terra così composto: soggiorno con angolo cottura semi arredato, camera con accesso al giardino pavimentato dotato anche di un secondo accesso direttamente dall'esterno, bagno - porta blindata - nelle immediate vicinanze fermata autobus 506 (collegamento con Anagnina) -- PER INFORMAZIONI E VISITE CONTATTARE I NUMERI 330 29.38.89 - 335 57.70.670 - GriMax RE Immobiliare offre valutazioni gratuite, consulenza professionale mirata a soddisfare le vostre esigenze e consulenza tecnico legale e finanziaria per accompagnarvi lungo tutto l'iter di acquisto, affitto o vendita del vostro immobile --

LEGGI TUTTO

CONDIVIDI SUI SOCIAL

DATI PRINCIPALI

Riferimento
632613
Contratto
Vendita
Tipologia
Appartamento
Superficie
55 mq
Locali
2
Camere da letto
1
Cucina
Angolo cottura
Bagni
1
Piano
Piano terra
Totale piani
3

CARATTERISTICHE

Ascensore

COSTI

Prezzo
€ 120.000,00
Spese condominiali
€ 15,00 / mese

EFFICIENZA ENERGETICA

Stato
Abitabile
Anno costruzione
1990
Riscaldamento
Autonomo
Classe energetica
G
IPE
175,00 kWh/m²a

A+

A

B

C

D

E

F

175,00 kWh/m²a | Classe energetica G

G

MAPPA

ANNUNCI SIMILI

VENDITA 20
€ 549.000
Appartamento in Vendita a Frascati (Roma)
  • Più di 5 locali
  • 260 mq
  • 2 bagni
VENDITA 8
€ 595.000
Appartamento in Vendita a Frascati (Roma)
  • Più di 5 locali
  • 130 mq
  • 2 bagni
VENDITA 8
€ 410.000
Appartamento in Vendita a Frascati (Roma)
  • Trilocale
  • 93 mq
  • 2 bagni
VENDITA 8
€ 580.000
Appartamento in Vendita a Frascati (Roma)
  • Quadrilocale
  • 130 mq
  • 2 bagni
VENDITA 8
€ 400.000
Appartamento in Vendita a Frascati (Roma)
  • Trilocale
  • 80 mq
  • 2 bagni