Vendita appartamento Via collatina VENDITA

Via Collatina 76 - Roma (Roma)
€ 275.000
  • Trilocale
  • 100 mq
  • 1 bagno

Appartamento in Vendita a Roma

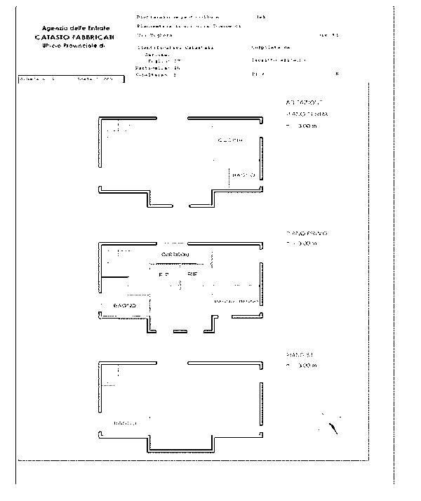
Rif. 1400- L'Immobiliare Simonetti è lieta di proporre la vendita di un trilocale di 90 metri quadri nel cuore di Via Collatina . L'appartamento è cosi composto: un salone , cucina abitabile, due camere da letto ed uno spazioso bagno con doccia. Rifinisce la casa un'armadio a muro ed un grazioso balcone posto nella sala pranzo, che affaccia all'interno del cortile. L' edificio si compone di quattro piani con ascensore. Situato in un condominio residenziale, con ampio spazio verde , fiorito e curato. Possibilità di garage privato con una piccola quota mensile accessibile anche direttamente dal giardino condominiale, attraverso delle scale. In posizione centrale , vicina a servizi e attività commerciali . Tutte le informazioni, fatti e planimetrie contenute nel presente annuncio pubblicitario, non costituiscono elemento contrattuale: potrebbero non rispettare fedelmente lo stato di fatto dell'immobile e andranno verificate prima di formulare la proposta di acquisto. L'agenzia immobiliare non risponde di eventuale discordanze. Le immagini o foto in pubblicità sono inserite a scopo illustrativo e non costituiscono elemento contrattuale. Rif.1400- IMMOBILIARE Simonetti

LEGGI TUTTO

CONDIVIDI SUI SOCIAL

DATI PRINCIPALI

Riferimento
642132
Contratto
Vendita
Tipologia
Appartamento
Superficie
100 mq
Locali
3
Camere da letto
2
Cucina
Abitabile
Bagni
1
Piano
Piano rialzato
Totale piani
4

CARATTERISTICHE

Ascensore

COSTI

Prezzo
€ 275.000,00
Spese condominiali
€ 77,00 / mese

EFFICIENZA ENERGETICA

Stato
Abitabile
Anno costruzione
1970
Riscaldamento
Autonomo
Climatizzazione
Si
Classe energetica
G
IPE
175,00 kWh/m²a

A+

A

B

C

D

E

F

175,00 kWh/m²a | Classe energetica G

G

MAPPA

ANNUNCI SIMILI

VENDITA
€ 359.000
Appartamento in Vendita a Roma (Roma)
  • Più di 5 locali
  • 158 mq
  • 2 bagni
VENDITA 20
€ 429.000
Appartamento in Vendita a Roma (Roma)
  • Quadrilocale
  • 136 mq
  • 2 bagni
VENDITA 20
€ 299.000
Appartamento in Vendita a Roma (Roma)
  • Trilocale
  • 120 mq
  • 2 bagni
VENDITA 20
€ 329.000
Appartamento in Vendita a Roma (Roma)
  • Trilocale
  • 111 mq
  • 2 bagni
VENDITA 16
€ 289.000
Appartamento in Vendita a Roma (Roma)
  • Trilocale
  • 91 mq
  • 1 bagno
VENDITA 20
€ 295.000
Appartamento in Vendita a Roma (Roma)
  • Trilocale
  • 94 mq
  • 1 bagno