Vendiamo Appartamento adiacente Viale Giulio Cesare VENDITA

Via Fornovo - Roma, Zona Prati
€ 1.550.000
  • Più di 5 locali
  • 260 mq
  • 4 bagni

Appartamento in Vendita a Roma

Prati – Via Fornovo angolo Viale Giulio Cesare

Nel cuore del quartiere Prati, in posizione strategica situato in Via Fornovo, angolo Viale Giulio Cesare, proponiamo in vendita un prestigioso appartamento di circa 260 mq, posto al primo piano con ascensore, completamente ristrutturato.
L’immobile dispone di quattro balconi, cantina di pertinenza e posto auto a rotazione all’interno della corte condominiale, elemento di particolare valore per la zona.
Attualmente locato ad una società di affittacamere, l’appartamento è già organizzato in modo funzionale e rappresenta un’interessante opportunità di investimento a reddito, con possibilità, alla scadenza del contratto di locazione, di essere destinato a:
- struttura ricettiva
- studio professionale polivalente
- abitazione di rappresentanza

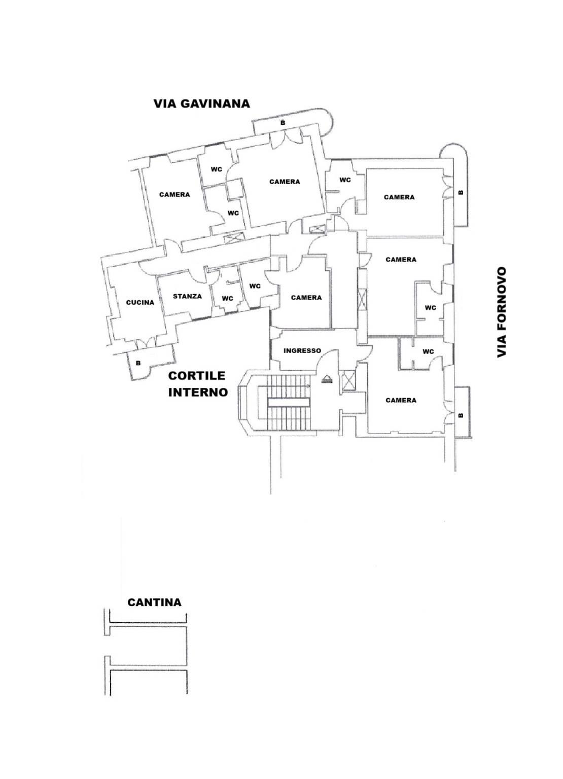
Attuale distribuzione interna:
- Ingresso con finestra e reception
- Sei camere, tutte con bagno privato:
- Camera tripla con bagno in camera
- Ampia camera attualmente utilizzata come quadrupla (due matrimoniali e due singoli) con bagno
- Camera tripla angolare con terrazzino e bagno
- Camera singola con bagno
- Camera di grande metratura, utilizzata come quadrupla (due matrimoniali), con balcone
- Camera doppia con bagno
- Locale tecnico/ripostiglio
- Sala comune con terrazzino
- Bagno di servizio
- Cucina abitabile

L’immobile è stato oggetto di una completa ristrutturazione e si presenta in ottime condizioni manutentive.
Soluzione ideale per investitori alla ricerca di un immobile di ampia metratura in una delle zone più richieste della città.

Per ulteriori informazioni o per fissare un appuntamento potete contattarci ai numeri: uff. 06/55136347 cell. 393/9177006 wz 389/9810971 La nostra agenzia DPR IMMOBILIARE Replat si occupa da oltre 20 anni di vendita e locazione di immobili residenziali, commerciali, terreni agricoli ed edificabili. I nostri servizi: Valutazioni gratuite - Compravendite - Locazioni Permute - Registrazione contratti e preliminari - Visure Ipotecarie e Catastali - Analisi documenti urbanistico-edilizi - Variazioni e regolarizzazioni catasto - Certificazioni energetiche APE - Notaio - Frazionamenti e servitù - Procure e successioni.

LEGGI TUTTO

CONDIVIDI SUI SOCIAL

DATI PRINCIPALI

Riferimento
643168
Contratto
Vendita
Tipologia
Appartamento
Superficie
260 mq
Locali
Più di 5
Camere da letto
Più di 5
Cucina
Abitabile
Bagni
4
Piano
1 °
Totale piani
5
Box/Posto auto
Singolo

CARATTERISTICHE

Ascensore

COSTI

Prezzo
€ 1.550.000,00

EFFICIENZA ENERGETICA

Stato
Ristrutturato
Anno costruzione
1970
Riscaldamento
Autonomo
Climatizzazione
Si
Classe energetica
G
IPE
351,00 kWh/m²a

A+

A

B

C

D

E

F

351,00 kWh/m²a | Classe energetica G

G

MAPPA

ANNUNCI SIMILI

VENDITA 20
€ 799.000
Appartamento in Vendita a Roma, Zona Prati
  • Più di 5 locali
  • 220 mq
  • 4 bagni
VENDITA 20
€ 739.000
Appartamento in Vendita a Roma (Roma)
  • Più di 5 locali
  • 141 mq
  • 1 bagno
VENDITA 8
€ 1.270.000
Appartamento in Vendita a Roma, Zona Flaminio
  • Più di 5 locali
  • 215 mq
  • 3 bagni
VENDITA 20
€ 1.380.000
Appartamento in Vendita a Roma, Zona Prati
  • Più di 5 locali
  • 189 mq
  • 4 bagni
VENDITA 8
€ 1.800.000
Appartamento in Vendita a Roma, Zona Flaminio
  • Più di 5 locali
  • 560 mq
  • 4 bagni
VENDITA
€ 2.500.000
Appartamento in Vendita a Roma, Zona Prati
  • Più di 5 locali
  • 274 mq
  • 4 bagni