VALLERANO - BILOCALE CON PATIO E GIARDINO VENDITA

Viale Vincenzo Marronaro 134 - Roma (Roma)
€ 265.000
  • Bilocale
  • 60 mq
  • 1 bagno

Appartamento in Vendita a Roma

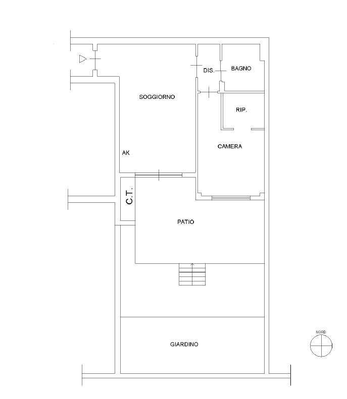
In zona Vallerano a pochi minuti dall’EUR in un comprensorio tranquillo ed elegante con palazzine in cortina, prossimo alla fermata dell’autobus, la Tva Gruppo Immobiliare propone la vendita di un delizioso appartamento all'interno di un comprensorio signorile e rifinito, della superficie mq 60 composto internamente da:
salone, cucina a vista, 1 camera da letto con cabina armadio e bagno. Lo spazio esterno si compone da comodo patio vivibile e da un giardino di mq 30 c.a.
Completa la proprietà 1 posto auto scoperto all'interno della corte condominiale.
Riscaldamento autonomo con fan coil, inferriate, serrande elettriche e A|C fredda\calda nel patio. Silenzioso e luminoso. Esposizione a sud.
Pavimentazione parquet.
Gli arredi compresi nel prezzo di vendita sono: arredo cucina, libreria in salone, cabina armadio e arredo bagno.

Per ulteriori informazioni o per fissare un appuntamento contattare il 339.8085810.
Le informazioni e i documenti contenuti nel presente annuncio sono indicativi e non costituiscono elementi contrattuali.

LEGGI TUTTO

CONDIVIDI SUI SOCIAL

DATI PRINCIPALI

Riferimento
639511
Contratto
Vendita
Tipologia
Appartamento
Superficie
60 mq
Locali
2
Camere da letto
1
Cucina
A vista
Bagni
1
Piano
Piano terra
Totale piani
5
Box/Posto auto
Singolo

CARATTERISTICHE

Ascensore

COSTI

Prezzo
€ 265.000,00
Spese condominiali
€ 80,00 / mese

EFFICIENZA ENERGETICA

Stato
Ristrutturato
Anno costruzione
2004
Riscaldamento
Autonomo
Climatizzazione
Si
Classe energetica
G
IPE
175,00 kWh/m²a

A+

A

B

C

D

E

F

175,00 kWh/m²a | Classe energetica G

G

MAPPA

ANNUNCI SIMILI

VENDITA 13
€ 269.000
Appartamento in Vendita a Roma, Zona Vallerano
  • Bilocale
  • 50 mq
  • 1 bagno
VENDITA 20
€ 385.000
Appartamento in Vendita a Roma, Zona Mostacciano
  • Quadrilocale
  • 122 mq
  • 2 bagni
VENDITA 20
€ 639.000
Appartamento in Vendita a Roma, Zona Mostacciano
  • Più di 5 locali
  • 180 mq
  • 3 bagni