Unità Abitative Pigneto VENDITA

Via Romanello da Forlì 20 - Roma, Zona Pigneto
€ 430.000
  • Trilocale
  • 82 mq
  • 2 bagni

Appartamento in Vendita a Roma

unita' abitative pignetto romanello twenty, opportunita' con rogito notarile entro il 30 luglio 2026 di utilizzare il bonus di 34.500 euro da scalare in 10 anni per abbattere ulteriormente l'acquisto valido per ogni unita' immobiliare
via romanello da forli' 20 riqualificazione in fase di ultimazione, complesso residenziale esclusivo privato composto da 12 unita' totali, con ingresso carrabile e pedonale da via romanello da forli' ed uscita su via ettore giovenale
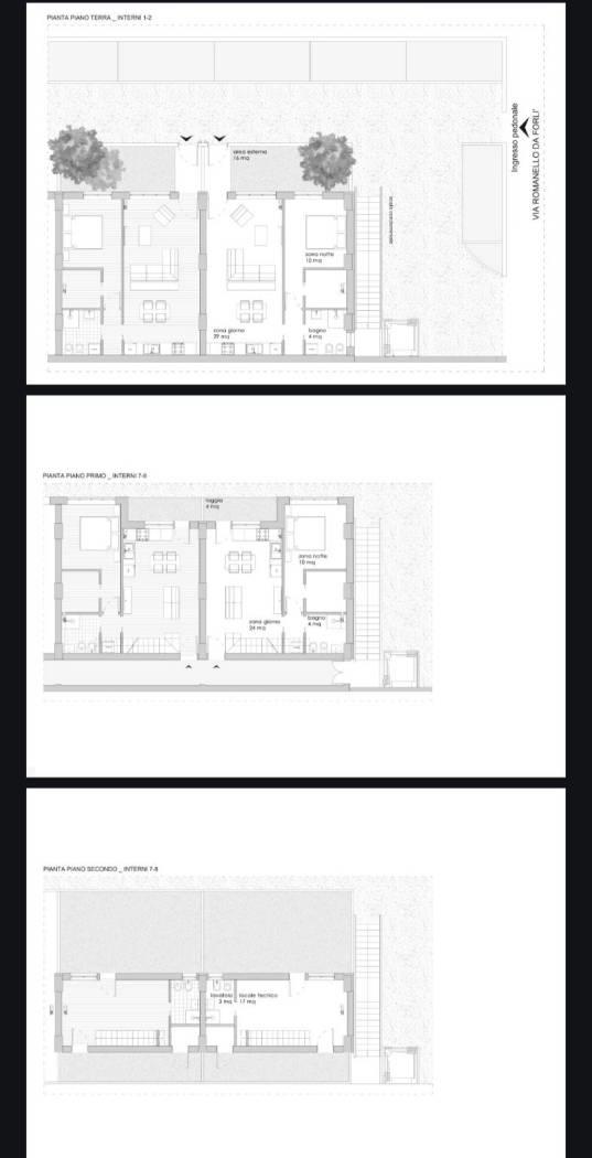
6 appartamenti disposti al piano terra, ognuno con ingresso indipendente e piccola corte esclusiva
6 appartamenti al piano primo duplex su due livelli, collegati con scala interna con balcone e terrazza.

la struttura e' completamente antisismica in cemento armato, muratura portante, isolamento esterno con monoblocco termico da 38 cm, infissi pvc taglio termico, basso-emissiva e portoni blindati colore grigio ferro micaceo, infissi antieffrazione, tapparelle elettriche, impianto di riscaldamento a pavimento autonimo, e impianto di raffreddamento a pompa di calore.
impianto fotovoltaico per ogni unita' abitativa di 3.5 kwp indipendente
possibilita' di 12 posti auto esterni scoperti dedicati e 6 posti moto
la composizione degli appartamenti:
piano terra: ingresso con cancelletto e piccola corte di proprieta' esclusiva di circa 18 mq- soggiorno con cucina a vista, disimpegno, bagno, cabina armadio e camera da letto
piano primo: soggiorno con cucina a vista con un gradevole balcone coperto, disimpegno, bagno, cabina armadio e camera da letto- scala interna di collegamento dal soggiorno al piano superiore dove troviamo un unico ambiente camera, un bagno, una grande terrazza di circa 27 mq e un altro piccolo bacone e locale tecnico
per ciascuna unita' abitativa e' previsto un bonus di detrazioni, un recupero economico per un importo totale massimo di euro 34.500 circa da suddividere in dieci anni come previsto dalla legge
il prezzo per gli appartamenti al piano terra da euro 330.000
il prezzo per gli appartamenti al piano primo da euro 430.000
i posti auto scoperti sono a parte

LEGGI TUTTO

CONDIVIDI SUI SOCIAL

DATI PRINCIPALI

Riferimento
635405
Contratto
Vendita
Tipologia
Appartamento
Superficie
82 mq
Locali
3
Camere da letto
2
Cucina
A vista
Bagni
2
Piano
2 °
Totale piani
2
Box/Posto auto
Singolo

CARATTERISTICHE

Ascensore

COSTI

Prezzo
€ 430.000,00

EFFICIENZA ENERGETICA

Stato
Nuovo/In costruzione
Anno costruzione
2024
Riscaldamento
Autonomo
Climatizzazione
Si
Classe energetica
A4
IPE
351,00 kWh/m²a
351,00 kWh/m²a | Classe energetica A4

A4

A3

A2

A1

B

C

D

E

F

G

MAPPA

ANNUNCI SIMILI

VENDITA 20
€ 363.000
Appartamento in Vendita a Roma, Zona Pigneto
  • Trilocale
  • 80 mq
  • 1 bagno
VENDITA 20
€ 259.000
Appartamento in Vendita a Roma (Roma)
  • Quadrilocale
  • 115 mq
  • 1 bagno
VENDITA 6
€ 249.000
Appartamento in Vendita a Roma (Roma)
  • Trilocale
  • 89 mq
  • 1 bagno
VENDITA 14
€ 310.000
Appartamento in Vendita a Roma (Roma)
  • Trilocale
  • 105 mq
  • 1 bagno