TRIONFALE - VENDITA APPARTAMENTO 113 MQ VENDITA

Via Misurina - Roma, Zona Cortina d'Ampezzo
€ 454.500
  • Trilocale
  • 113 mq
  • 2 bagni

Appartamento in Vendita a Roma

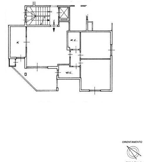
TRIONFALE/CORTINA D'AMPEZZO - In via Misurina la Fiore Real Estate propone in vendita un appartamento di 113 mq al secondo piano di una palazzina con servizio di portineria intera giornata. L'unità  è composta da due camere da letto, una sala, due bagni, cucina abitabile e terrazzo. Dotato di riscaldamento autonomo, l'appartamento risulta da ristrutturare. La richiesta per la vendita è di € 454.500,00. Per informazioni e sopralluoghi chiamare il numero 06 81152795 oppure scrivere a info@fiorerealestate.it. Sono attualmente disponibili, da acquistare separatamente posti auto esterni, interni e cantine di varie metrature. LA FIORE REAL ESTATE DISPONE DI DIVERSI TAGLI DI APPARTAMENTI PER PIANO ED ORIENTAMENTO. LE PRESENTI INFORMAZIONI NON COSTITUISCONO ELEMENTO CONTRATTUALE E LE METRATURE SONO PURAMENTE INDICATIVE.

In ambito residenziale, la Fiore Real Estate è in grado di far fronte alle richieste dei clienti più esigenti, anche nel caso di messa a reddito degli immobili, offrendo anche servizi di progettazione architettonica degli spazi e di ristrutturazione.

Fiore Real Estate: Via Sicilia, 154 - 00187 Roma

LEGGI TUTTO

CONDIVIDI SUI SOCIAL

DATI PRINCIPALI

Riferimento
638645
Contratto
Vendita
Tipologia
Appartamento
Superficie
113 mq
Locali
3
Camere da letto
2
Cucina
Abitabile
Bagni
2
Piano
2 °
Totale piani
4

CARATTERISTICHE

Ascensore

COSTI

Prezzo
€ 454.500,00

EFFICIENZA ENERGETICA

Stato
Da ristrutturare
Riscaldamento
Autonomo
Classe energetica
G
IPE
180,00 kWh/m²a

A+

A

B

C

D

E

F

180,00 kWh/m²a | Classe energetica G

G

MAPPA

ANNUNCI SIMILI