TRILOCALI NUOVI AL TERZO PIANO, RIFINITISSIMI, IN CLASSE A+ VENDITA

Via Fordongianus - Roma, Frazione Ponte Galeria
€ 194.600
  • Trilocale
  • 95 mq
  • 2 bagni

Appartamento in Vendita a Roma

MONTE STALLONARA (tra PISANA, PORTUENSE e PONTE GALERIA)

APPARTAMENTI TRILOCALI NUOVI AL TERZO PIANO, RIFINITISSIMI, IN CLASSE A+

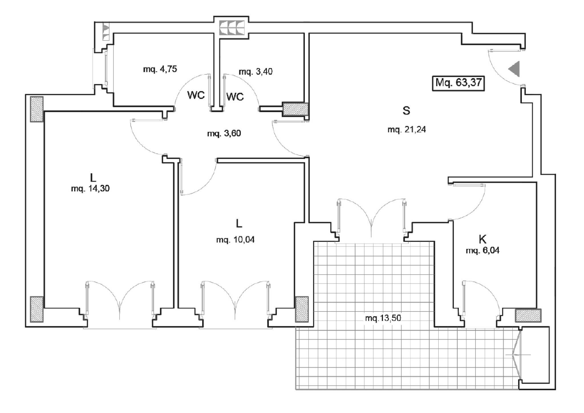
Splendidi Appartamenti di circa 80 mq interni, al terzo piano con ascensore, personalizzabili internamente, composti da soggiorno, due camere da letto, cucina, due bagni, portico di 13,5 mq, cantina e posto auto in garage compresi.
Possibilità di trasformazione del posto auto coperto in box auto con circa euro 6.000.
Prezzi da euro 194.600.

Nel moderno quartiere di Monte Stallonara in via Decimomannu proponiamo la vendita di nuovi appartamenti rifinitissimi, di ultima generazione, in elegante edificio in cortina di soli 4 piani, con tutti i comfort a disposizione, tra cui la sicurezza di una videosorveglianza su tutto il perimetro del complesso residenziale, ampi locali a disposizione per l'Home Working all'interno del fabbricato ed un piacevole giardino condominiale.
Inoltre, vicino all'edificio ci sarà una piastra commerciale con previsto un supermercato con parafarmacia, ed una scuola dell'infanzia.

Questo elegante edificio è posizionato in una zona ottimamente collegata grazie anche alla vicinanza con lo svincolo del GRA (uscita 32) ed alla stazione ferroviaria di Ponte Galeria (linea Roma - Fiumicino) che permette di raggiungere facilmente anche l’aeroporto di Fiumicino ed il centro città.

Splendidi Appartamenti ed Attici di nuova costruzione, rifinitissimi, in classe A+, di varie tipologie, con terrazze, giardini, cantine e posti auto in garage.

IL BENESSERE AL PRIMO POSTO - Questi splendidi Appartamenti vantano una progettazione che mette al centro il benessere e il comfort di chi le abita, grazie a tecnologie all'avanguardia e soluzioni costruttive di ultima generazione, per semplificare il quotidiano, ma anche per essere sempre al passo con i tempi.

INNOVAZIONE, STILE ED ELEGANZA PER UN CONCEPT ABITATIVO MODERNO - Queste abitazioni sono l'espressione di un concept abitativo moderno, in cui il benessere della persona e lo stile di vita contemporaneo sono il risultato di una ricerca approfondita, il connubio perfetto tra comfort ed efficienza. Il progetto, con le sue finiture di pregio e i materiali di altissima qualità, è un vero e proprio fiore all'occhiello della zona.

SOSTENIBILITA' E GRANDE RISPARMIO ENERGETICO - Gli Appartamenti sono stati progettati per consumare meno energia per il riscaldamento, raffrescamento, produzione di acqua calda sanitaria, illuminazione, avranno dunque alta efficienza e bassi consumi energetici, che verranno coperti anche da fonti rinnovabili in quanto saranno dotati di impianti fotovoltaici per abbattere i consumi.
La classe energetica A+ garantisce rispetto dell'ambiente e risparmio energetico, sia nelle spese condominiali che in quelle dei consumi privati.

L'ECCELLENZA VESTE LA TUA NUOVA CASA - Tutto è studiato per offrire comfort, sicurezza e benessere. L'ampia scelta di capitolato, l'attenta progettazione degli spazi, la cura dei dettagli e la ricerca della qualità favoriscono il massimo comfort e benessere abitativo, creando superfici moderne e piene di calore, ambienti armoniosi e luminosi.

I lavori di costruzione sono in fase iniziale e la consegna è prevista ad aprile 2027.
L'acquisto dell'immobile sarà garantito da contratto preliminare trascritto dal Notaio in conservatoria e da fideiussione a garanzia dei versamenti effettuati.

Vantaggi di acquistare una casa di nuova costruzione:
- personalizzazione degli interni;
- migliore classe energetica;
- minori costi di manutenzione e gestione;
- maggiori garanzie sulla stabilità e sull’antisismicità dell’edificio;
- materiali di costruzione e tecnologie all’avanguardia;
- maggiore durabilità nel tempo;
- maggior valore economico in caso di rivendita.

Per informazioni ed appuntamenti potete contattarci.

Dal 1998 siamo specializzati nella vendita di case di nuova costruzione.

LEGGI TUTTO

CONDIVIDI SUI SOCIAL

DATI PRINCIPALI

Riferimento
639598
Contratto
Vendita
Tipologia
Appartamento
Superficie
95 mq
Locali
3
Camere da letto
2
Cucina
Abitabile
Bagni
2
Piano
3 °
Totale piani
5
Box/Posto auto
Singolo

CARATTERISTICHE

Ascensore

COSTI

Prezzo
€ 194.600,00

EFFICIENZA ENERGETICA

Stato
Nuovo/In costruzione
Anno costruzione
2026
Riscaldamento
Autonomo
Climatizzazione
Si
Classe energetica
A+
IPE
15,00 kWh/m²a
15,00 kWh/m²a | Classe energetica A+

A+

A

B

C

D

E

F

G

MAPPA

ANNUNCI SIMILI

VENDITA 17
€ 166.000
Appartamento in Vendita a Roma (Roma)
  • Trilocale
  • 62 mq
  • 1 bagno