TRILOCALE SPINACETO - VIA CANDIDO MANCA 8 VENDITA

Via Candido Manca 8 - Roma (Roma)
€ 219.000
  • Trilocale
  • 80 mq
  • 1 bagno

Appartamento in Vendita a Roma

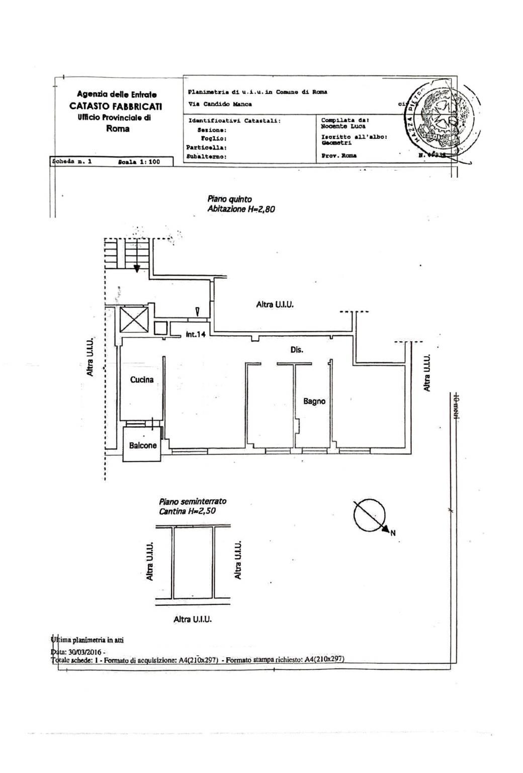
La Valva Realty Italia propone in vendita un trilocale ristrutturato posto al quinto piano di una palazzina di otto, priva di barriere architettoniche, recentemente ristrutturata con cappotto termico tramite intervento del 110%.
L'immobile risulta così composto: piccolo ingresso con armadio a muro, soggiorno, cucina con accesso ad un balconcino di servizio, corridoio, camera, cameretta e bagno.
Completano la proprietà una cantina e una servitù di parcheggio.
Lavori eseguiti: installazione cappotto termico, sostituzione degli infissi, condizionatori, zanzariere, impianto di allarme (da riattivare).
Per avere maggiori informazioni o per fissare un appuntamento per visitare l'immobile senza impegno contattateci telefonicamente anche via WhatsApp. Il riferimento è 7-001.

LEGGI TUTTO

CONDIVIDI SUI SOCIAL

DATI PRINCIPALI

Riferimento
633870
Contratto
Vendita
Tipologia
Appartamento
Superficie
80 mq
Locali
3
Camere da letto
2
Cucina
Abitabile
Bagni
1
Piano
5 °
Totale piani
8
Box/Posto auto
Singolo

CARATTERISTICHE

Ascensore

COSTI

Prezzo
€ 219.000,00
Spese condominiali
€ 50,00 / mese

EFFICIENZA ENERGETICA

Stato
Abitabile
Anno costruzione
1967
Riscaldamento
Autonomo
Climatizzazione
Si
Classe energetica
E
IPE
175,00 kWh/m²a

A+

A

B

C

D

175,00 kWh/m²a | Classe energetica E

E

F

G

MAPPA

ANNUNCI SIMILI

VENDITA 20
€ 299.000
Appartamento in Vendita a Roma, Zona Spinaceto
  • Quadrilocale
  • 115 mq
  • 2 bagni
VENDITA 20
€ 229.000
Appartamento in Vendita a Roma (Roma)
  • Trilocale
  • 65 mq
  • 1 bagno
VENDITA 16
€ 189.000
Appartamento in Vendita a Roma (Roma)
  • Trilocale
  • 80 mq
  • 2 bagni
VENDITA 16
€ 195.000
Appartamento in Vendita a Roma (Roma)
  • Trilocale
  • 90 mq
  • 1 bagno
VENDITA 17
€ 218.000
Appartamento in Vendita a Roma, Zona Spinaceto
  • Trilocale
  • 79 mq
  • 1 bagno
VENDITA 20
€ 179.000
Appartamento in Vendita a Roma, Zona Spinaceto
  • Trilocale
  • 100 mq
  • 2 bagni
VENDITA 20
€ 224.000
Appartamento in Vendita a Roma, Zona Spinaceto
  • Quadrilocale
  • 100 mq
  • 3 bagni