Trilocale VENDITA

Via Durazzo - Roma (Roma)
€ 250.000
  • Trilocale
  • 80 mq
  • 2 bagni

Appartamento in Vendita a Roma

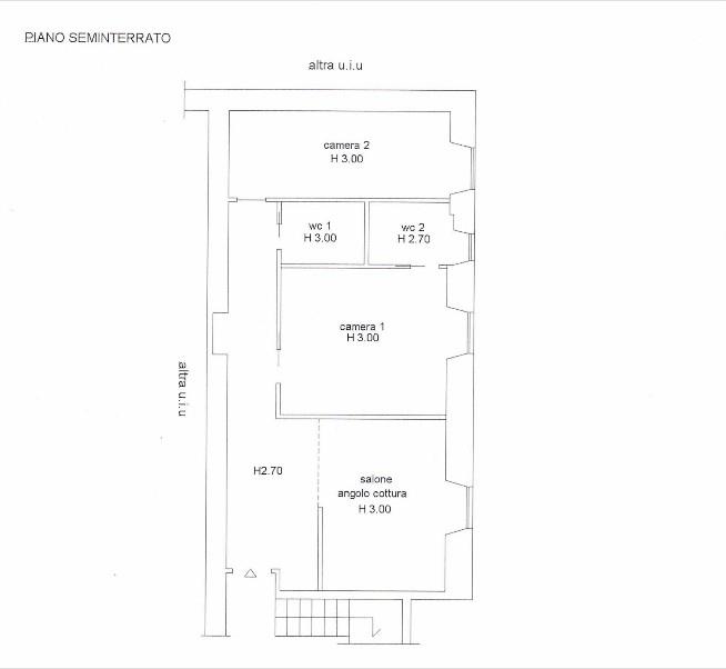
Prati, nelle adiacenze di Piazzale Clodio, in prossimità degli studi Rai e La7, proponiamo esattamente in Via Durazzo, un appartamento di circa 80 mq posto al piano seminterrato di uno stabile in buono stato degli anni '30.
L'abitazione seppur posta al piano seminterrato, gode di una buona luminosità ed è così distribuito:
ad accoglierci un ampio soggiorno con angolo cottura, quindi attraverso un corridoio si disimpegnano una camera matrimoniale con bagno interno, una seconda camera e un secondo bagno.
L'abitazione è in buono stato in quanto recentemente ristrutturata nella sua totalità, infissi nuovi, portone blindato, ambienti climatizzati, il riscaldamento è centralizzato con i contabilizzatori.
La zona ben collegata dai mezzi pubblici e vicina a tutti i pricipali servizi, ne determinano un ottima soluzione per chi fosse alla ricerca di una primaria abitazione nel quartiere Prati, ma anche un sicuro investimento per chi fosse alla ricerca di una buona rendita mensile e/o eventualmente per chi fosse orientato ad una locazione turistica vista la sua felice collocazione.
L'immobile è garantito libero dal 01/ottobre/2025.

Per qualsiasi ulteriore informazione i nostri uffici sono in Roma, Viale Bruno Buozzi 19a e Via Due Ponti 231 e seguono il seguente orario: dal lunedi al venerdi dalle ore 09.00 alle ore 19.30, il sabato dalle ore 09.00 alle ore 13.00.

Sito internet: www.pianoalto.it

LEGGI TUTTO

CONDIVIDI SUI SOCIAL

DATI PRINCIPALI

Riferimento
641430
Contratto
Vendita
Tipologia
Appartamento
Superficie
80 mq
Locali
3
Camere da letto
2
Cucina
Angolo cottura
Bagni
2
Piano
Seminterrato
Totale piani
6

CARATTERISTICHE

Ascensore

COSTI

Prezzo
€ 250.000,00
Spese condominiali
€ 50,00 / mese

EFFICIENZA ENERGETICA

Stato
Abitabile
Anno costruzione
1930
Riscaldamento
Autonomo
Climatizzazione
Si
Classe energetica
G
IPE
175,00 kWh/m²a

A+

A

B

C

D

E

F

175,00 kWh/m²a | Classe energetica G

G

MAPPA

ANNUNCI SIMILI

VENDITA 9
€ 598.000
Appartamento in Vendita a Roma (Roma)
  • Più di 5 locali
  • 168 mq
  • 1 bagno
VENDITA 18
€ 645.000
Appartamento in Vendita a Roma (Roma)
  • Più di 5 locali
  • 120 mq
  • 2 bagni
VENDITA 20
€ 680.000
Appartamento in Vendita a Roma (Roma)
  • Trilocale
  • 119 mq
  • 2 bagni
VENDITA 20
€ 715.000
Appartamento in Vendita a Roma (Roma)
  • Quadrilocale
  • 135 mq
  • 2 bagni
VENDITA 20
€ 600.000
Appartamento in Vendita a Roma (Roma)
  • Più di 5 locali
  • 160 mq
  • 3 bagni
VENDITA 20
€ 995.000
Appartamento in Vendita a Roma (Roma)
  • Più di 5 locali
  • 250 mq
  • 2 bagni
VENDITA 20
€ 630.000
Appartamento in Vendita a Roma (Roma)
  • Trilocale
  • 130 mq
  • 1 bagno
VENDITA 5
€ 590.000
Appartamento in Vendita a Roma (Roma)
  • Più di 5 locali
  • 140 mq
  • 2 bagni