• Trilocale
  • 100 mq
  • 2 bagni

Appartamento in Vendita a Roma

Proponiamo a Torre Angela Sud
All'interno di un complesso del 2004, in un contesto signorile, tra i più ricercati in zona,un appartamento con giardino composto da:
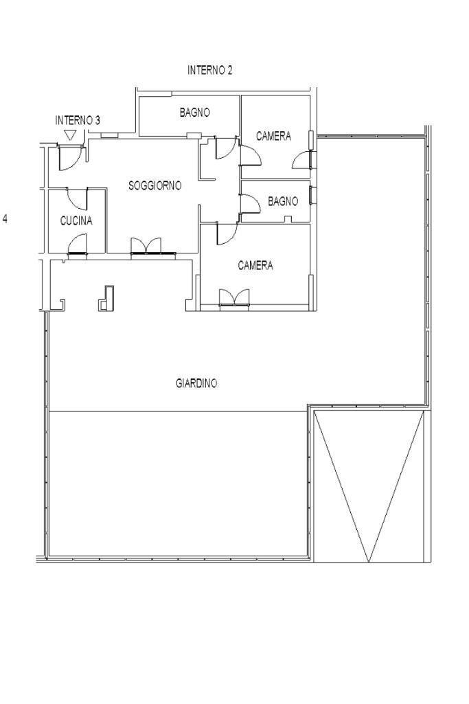
Soggiorno, cucina abitabile, una camera matrimoniale e una cameretta, due bagni (uno con vasca e uno con doccia)
Completa la proprietà: un' area esterna suddivisa in 100 mq di giardino pavimentato, 100 mq di giardino a terra,15 mq circa di area verandata, e due posti auto.
L'immobile presenta impianto termoautonomo, infissi in doppio vetro e grate di protezione, oltre ad aria condizionata.
L'immobile è libero da subito, con ascensore, senza barriere architettoniche.
L'immobile è edificato in diritto di superficie ed è stata già stipulata la convenzione per la rimozione del prezzo massimo di cessione.
Doppia Esposizione.

NB: Abbiamo numerosi clienti qualificati pronti ad acquistare nella zona di Tor Vergata, Giardinetti e Torre Angela. Se stai pensando di vendere o permutare il tuo immobile contattaci subito per una valutazione gratuita in cui valuteremo la migliore strategia per realizzare il tuo progetto!

LEGGI TUTTO

CONDIVIDI SUI SOCIAL

DATI PRINCIPALI

Riferimento
639569
Contratto
Vendita
Tipologia
Appartamento
Superficie
100 mq
Locali
3
Camere da letto
2
Cucina
Cucinotto
Bagni
2
Piano
Piano terra
Totale piani
5
Box/Posto auto
Doppio

CARATTERISTICHE

Ascensore

COSTI

Prezzo
€ 215.000,00
Spese condominiali
€ 67,00 / mese

EFFICIENZA ENERGETICA

Stato
Ristrutturato
Anno costruzione
2005
Riscaldamento
Autonomo
Climatizzazione
Si
Classe energetica
F
IPE
126,00 kWh/m²a

A+

A

B

C

D

E

126,00 kWh/m²a | Classe energetica F

F

G

MAPPA

ANNUNCI SIMILI

VENDITA 20
€ 169.000
Appartamento in Vendita a Roma, Zona Torre Angela
  • Quadrilocale
  • 110 mq
  • 2 bagni
VENDITA 20
€ 219.000
Appartamento in Vendita a Roma, Zona Torre Angela
  • Quadrilocale
  • 100 mq
  • 2 bagni
VENDITA 20
€ 199.000
Appartamento in Vendita a Roma, Zona Torre Angela
  • Più di 5 locali
  • 102 mq
  • 2 bagni