€ 169.000
  • Trilocale
  • 80 mq
  • 2 bagni

Appartamento in Vendita a Fonte Nuova

In una palazzina moderna del 2010, servita da ascensore fino al piano box, ed in un contesto residenziale e tranquillo, la Tecnocasa di Tor Lupara propone la vendita in esclusiva di un delizioso ed elegante appartamento disposto su due livelli, ideale per chi cerca comfort e funzionalità.
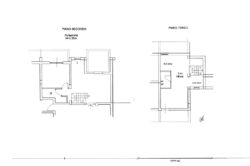
Al secondo piano troviamo un accogliente soggiorno con predisposizione per angolo cottura, una camera da letto, un bagno cieco con vasca e due graziosi terrazzini, di cui uno dotato di barbecue: lo spazio perfetto per pranzi e cene all'aperto.
Attualmente la cucina è stata ricavata nella camera del secondo piano, ma è possibile ripristinarla nella sua collocazione originaria, nel soggiorno, recuperando così la stanza come camera da letto. Una soluzione versatile che si adatta facilmente alle diverse esigenze abitative.
La scala interna conduce al piano superiore, leggermente mansardato, dove si sviluppa una seconda camera, un secondo bagno cieco con doccia e due terrazzini aggiuntivi che regalano luminosità e sfogo esterno anche alla zona notte.
Completano il piano due pratici ripostigli sottotetto; la metratura e la disposizione interna del piano notte permettono di poter ricavare una seconda cameretta, ideale come studio o stanza per i più piccoli.
Ad impreziosire questa splendida soluzione troviamo un box ed un posto auto scoperto di pertinenza.
L'immobile, dotato di certificato di agibilità, si inserisce in un contesto residenziale tranquillo e ben curato, ideale per chi desidera vivere in un ambiente riservato senza rinunciare alla comodità dei servizi.
Siamo riusciti a incuriosirti? Non esitare e contattaci: prenota OGGI un appuntamento per la tua casa di DOMANI.
Contattaci allo 06.90.63922 oppure allo 392.9123310, siamo disponibili anche su WhatsApp, oppure inviaci una email.
Un caloroso staff è a tua completa disposizione.

LEGGI TUTTO

CONDIVIDI SUI SOCIAL

DATI PRINCIPALI

Riferimento
634020
Contratto
Vendita
Tipologia
Appartamento
Superficie
80 mq
Locali
3
Camere da letto
2
Cucina
Angolo cottura
Bagni
2
Piano
2 °
Totale piani
3
Box/Posto auto
Singolo

CARATTERISTICHE

Ascensore

COSTI

Prezzo
€ 169.000,00
Spese condominiali
€ 90,00 / mese

EFFICIENZA ENERGETICA

Stato
Ristrutturato
Anno costruzione
2010
Riscaldamento
Autonomo
Climatizzazione
Si
Classe energetica
G
IPE
175,00 kWh/m²a

A+

A

B

C

D

E

F

175,00 kWh/m²a | Classe energetica G

G

MAPPA

ANNUNCI SIMILI