• Trilocale
  • 100 mq
  • 2 bagni

Appartamento in Vendita a Roma

PONTE DI NONA - COLLE DEGLI ABETI
Ampio Appartamento in Classe 'A1' con Terrazzo Vivibile e Posto Auto Coperto
Proponiamo in vendita un luminoso appartamento al 1° piano di una palazzina in cortina recentemente riqualificata con interventi Superbonus 110%, che hanno portato l’edificio in Classe Energetica A1, garantendo elevato comfort abitativo e notevole risparmio energetico.
PIENA PROPRIETA' E PREZZO AFFRANCATO A LIBERO MERCATO.
Efficienza e Tecnologia L’immobile beneficia di importanti migliorie strutturali: Cappotto termico, pannelli fotovoltaici, infissi di ultima generazione, cantine coibentate e Wall box dedicata per ogni posto auto coperto. Una soluzione moderna, sostenibile e pronta per il futuro.
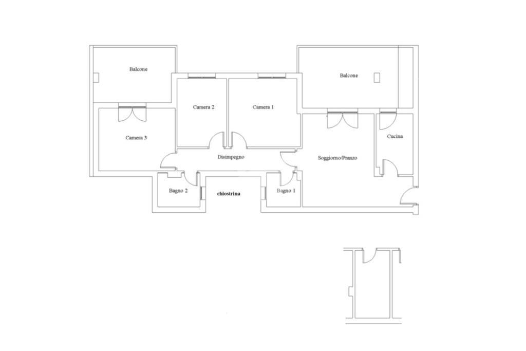
Spazi Ampi e Ben Distribuiti L’appartamento si distingue per ambienti generosi e funzionali: Ingresso con disimpegno, soggiorno con accesso diretto al terrazzo, cucina separata con uscita sul medesimo terrazzo, due camere matrimoniali di cui una con balcone, cameretta, due bagni finestrati: uno con vasca e uno con doccia. Il terrazzo vivibile rappresenta un vero valore aggiunto: perfetto per pranzi all’aperto, momenti di relax o convivialità con amici e famiglia.
Pertinenze e Comfort: .Posto auto coperto al piano seminterrato. .Cantina di proprietà coibentata, con ascensore e collegamento diretto al piano seminterrato.
Perché scegliere questo immobile? .Alta efficienza energetica
.Contesto condominiale curato
.Ambienti luminosi e spaziosi
.Dotazioni tecnologiche moderne
.Ideale per famiglie o per chi cerca comfort e sostenibilità
Una soluzione perfetta per chi desidera una casa pronta da vivere, efficiente e con spazi esterni godibili.
Per info e visite: 06-22185555 351-9435395 anche WhatsApp
dal Lunedì al Venerdì 9:00 - 13:00 / 15:30 - 20:00, Sabato 9:00 - 17:00 orario continuato.
COLLEGAMENTI
Automobile
Il Quartiere ha una uscita dedicata sull'A24, per immettersi sull'autostrada e le sue complanari.
In alternativa è possibile prendere la Collatina o la Prenestina. Inoltre per raggiungere il GRA è possibile immettersi all'uscita la Rustica, percorrendo Via di Salone e Via Noale.
Autobus
Il quartiere è collegato con lo 075 (stazione metro B Ponte Mammolo), 055 (stazione metro C Grotte Celoni).
Treno
In Via Forlanini è presente la fermata del treno fr2 Roma Tivoli, che consente un collegamento in 30 minuti con la stazione Tiburtina e anche con stazione Termini con partenza ogni ora.
Ogni agenzia ha un proprio titolare ed è autonoma - Le presenti informazioni non costituiscono elemento contrattuale.

LEGGI TUTTO

CONDIVIDI SUI SOCIAL

DATI PRINCIPALI

Riferimento
631634
Contratto
Vendita
Tipologia
Appartamento
Superficie
100 mq
Locali
3
Camere da letto
3
Cucina
Cucinotto
Bagni
2
Piano
1 °
Totale piani
5
Box/Posto auto
Singolo

CARATTERISTICHE

Ascensore

COSTI

Prezzo
€ 219.000,00

EFFICIENZA ENERGETICA

Stato
Ristrutturato
Anno costruzione
2012
Riscaldamento
Autonomo
Classe energetica
B
IPE
351,00 kWh/m²a

A+

A

351,00 kWh/m²a | Classe energetica B

B

C

D

E

F

G

MAPPA

ANNUNCI SIMILI

VENDITA 19
€ 139.000
Appartamento in Vendita a Roma, Zona Ponte Di Nona
  • Trilocale
  • 70 mq
  • 1 bagno
VENDITA 20
€ 210.000
Appartamento in Vendita a Roma, Zona Ponte Di Nona
  • Trilocale
  • 80 mq
  • 2 bagni
VENDITA 20
€ 170.000
Appartamento in Vendita a Roma, Zona Ponte Di Nona
  • Trilocale
  • 88 mq
  • 2 bagni
VENDITA 12
€ 199.000
Appartamento in Vendita a Roma, Zona Ponte Di Nona
  • Trilocale
  • 86 mq
  • 2 bagni
VENDITA 20
€ 249.000
Appartamento in Vendita a Roma, Zona Ponte Di Nona
  • Trilocale
  • 90 mq
  • 2 bagni
VENDITA 17
€ 229.000
Appartamento in Vendita a Roma, Zona Ponte Di Nona
  • Trilocale
  • 108 mq
  • 2 bagni