• Trilocale
  • 100 mq
  • 2 bagni

Appartamento in Vendita a Roma

CONSORZIO CASE E CAMPI - Via Enrico Mancini.

Nella parte più alta e panoramica di Via Enrico Mancini, all’interno dell’esclusivo consorzio “Case e Campi”, proponiamo in vendita un appartamento situato in via privata con accesso da cancello, in un contesto residenziale tranquillo, riservato e immerso nel verde.
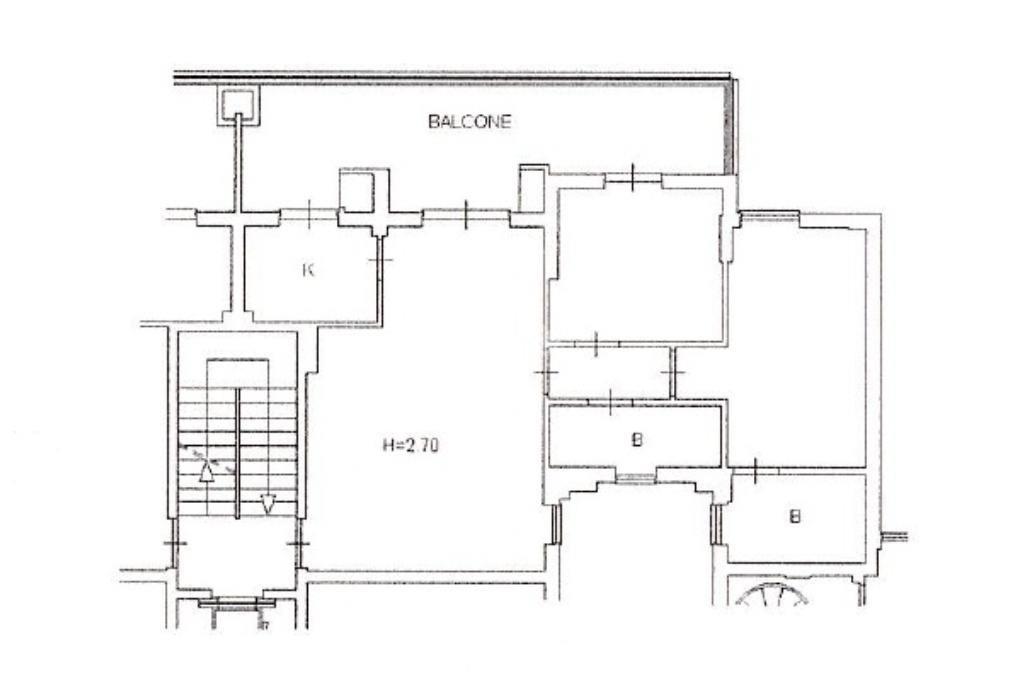
L’immobile si trova al primo piano, ma grazie all’affaccio alto gode di luminosità e di una vista da terzo piano. L’ingresso si apre su un accogliente soggiorno con accesso diretto al terrazzo di circa 20 mq, uno spazio ideale per pranzi all’aperto e momenti di relax. In un angolo del soggiorno troviamo il cucinotto, anch’esso con uscita sullo stesso terrazzo.
Un comodo disimpegno conduce alla zona notte, composta da camera matrimoniale con bagno en suite finestrato con vasca, seconda camera singola e secondo bagno finestrato con doccia.
La costruzione risale al 2006 e l’appartamento si presenta in buono stato manutentivo.
Accessori e rifiniture:
. parquet in tutti gli ambienti
. climatizzatori in ogni stanza
. impianto di aspirapolvere centralizzato
. persiane blindate
Il condominio è inoltre dotato di ampia area parcheggio e di un curato parco condominiale alberato con area giochi per bambini, che rende l’ambiente particolarmente piacevole e adatto alla vita familiare.
Completa la proprietà un comodo box auto di circa 22 mq.
Una soluzione ideale per chi cerca tranquillità, verde e comfort, a pochi minuti dai principali servizi.
Lo stabile si trova a circa 1 km. dalla stazione FM3 La Giustiniana e a circa 1,5 km dal GRA (uscita Cassia o trionfale). Il complesso condominiale dista circa 700 mt. dalla Cassia.

IL CONSORZIO CASE E CAMPI
Il Consorzio Case e Campi è, sulla Cassia, una delle pochissime isole felici.
La cura del verde, circa quindici ettari con tre parchi aperti al pubblico, la pulizia delle strade interne e la sicurezza con personale proprio e con l’ausilio di un sistema di videosorveglianza capillare, nonché la piccola manutenzione di opere e servizi comuni sono assicurate dal Consorzio.

Nella galleria fotografica pubblicata sul sito https://www.consorziocaseecampi.it/ si può osservare come sia possibile con professionalità, diligenza, e molta buona volontà da parte di tutti gli addetti ai lavori mantenere i luoghi dove abitano i nostri figli assicurando una qualità di vita più che dignitosa e con un costo mensile più che accettabile e che varia, attualmente, a seconda delle dimensione dell’immobile, dai venti ai trenta euro mensili.
Per ulteriori info puoi scriverci su WhatsApp al n. 351/0713036

Seguici su Facebook: Agenzia Tecnocasa La Giustiniana
Iscriviti al nostro canale YouTube: “Agenzia Tecnocasa La Giustiniana”

LEGGI TUTTO

CONDIVIDI SUI SOCIAL

DATI PRINCIPALI

Riferimento
631610
Contratto
Vendita
Tipologia
Appartamento
Superficie
100 mq
Locali
3
Camere da letto
3
Cucina
Cucinotto
Bagni
2
Piano
1 °
Totale piani
3
Box/Posto auto
Singolo

CARATTERISTICHE

Ascensore

COSTI

Prezzo
€ 385.000,00
Spese condominiali
€ 139,00 / mese

EFFICIENZA ENERGETICA

Stato
Abitabile
Anno costruzione
2006
Riscaldamento
Autonomo
Climatizzazione
Si
Classe energetica
C
IPE
74,82 kWh/m²a

A+

A

B

74,82 kWh/m²a | Classe energetica C

C

D

E

F

G

MAPPA

ANNUNCI SIMILI

VENDITA 20
€ 340.000
Appartamento in Vendita a Roma, Frazione La Giustiniana
  • Trilocale
  • 100 mq
  • 2 bagni
VENDITA 18
€ 295.000
Appartamento in Vendita a Roma, Frazione La Giustiniana
  • Trilocale
  • 96 mq
  • 2 bagni
VENDITA 17
€ 225.000
Appartamento in Vendita a Roma, Frazione La Giustiniana
  • Trilocale
  • 110 mq
  • 2 bagni
VENDITA 20
€ 210.000
Appartamento in Vendita a Roma, Frazione La Giustiniana
  • Trilocale
  • 105 mq
  • 2 bagni
VENDITA 20
€ 465.000
Appartamento in Vendita a Roma, Frazione La Giustiniana
  • Più di 5 locali
  • 179 mq
  • 2 bagni
VENDITA 20
€ 160.000
Appartamento in Vendita a Roma, Frazione La Storta
  • Trilocale
  • 90 mq
  • 1 bagno