• Trilocale
  • 80 mq
  • 1 bagno

Appartamento in Vendita a Roma

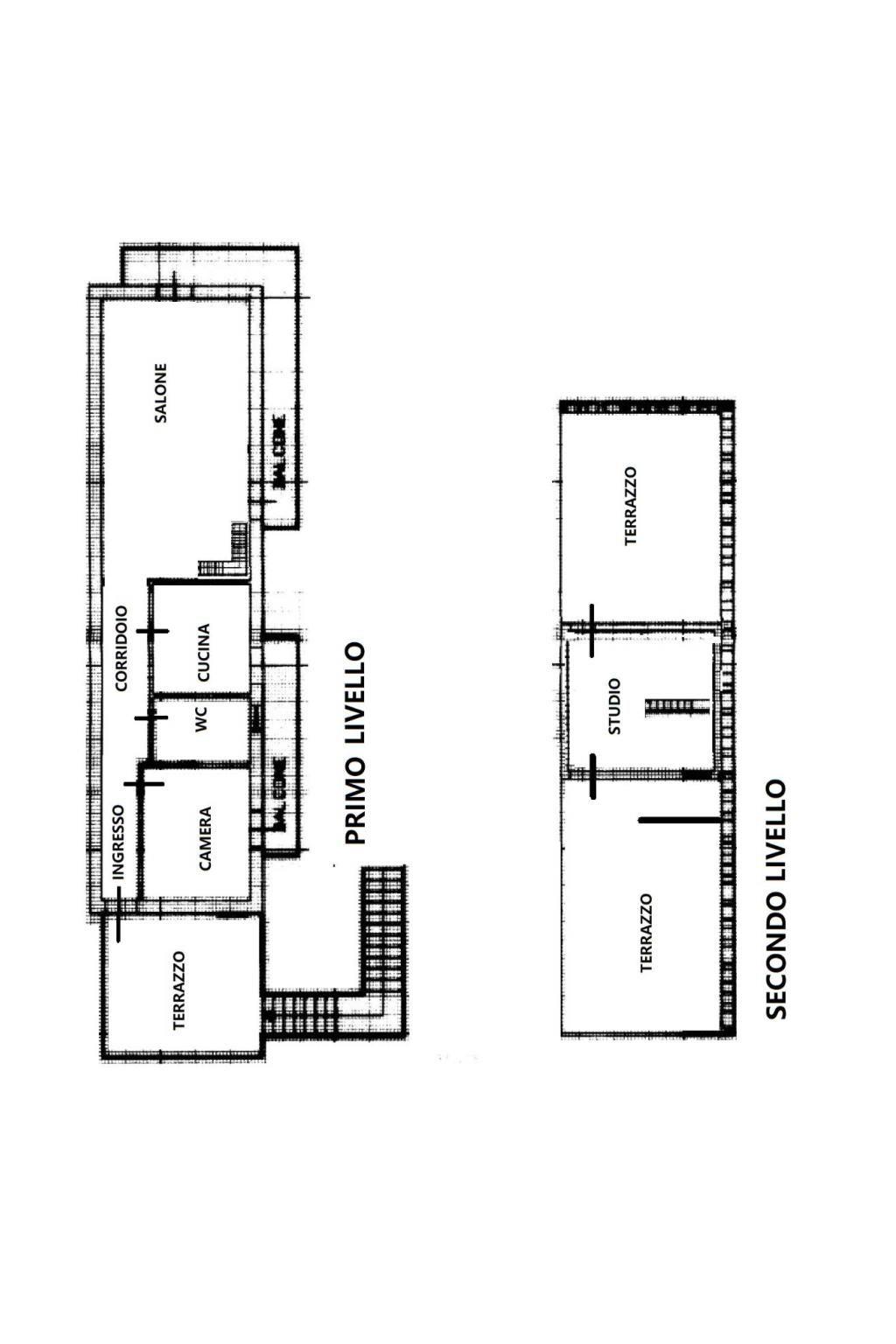
Talenti NUDA PROPRIETA' - Via del Podere Rosa AFFARE unica usufruttuaria BILIVELLI di 80 mq circa ingresso indipendente salone camera studio cucina abitabile bagno balconi 3 TERRAZZI di 100 mq circa POSTO AUTO scoperto.
Nomentana Talenti, adiacente Via Gaspara Stampa esattamente in Via del Podere Rosa proponiamo la vendita di una NUDA PROPRIETA' unica usufruttuaria. L'appartamento in ottime condizioni si trova all'interno di una piccola palazzina in tinta in buone condizioni di soli due piani priva di spese condominiali. L'immobile ha un ingresso indipendente al primo piano a cui si accede da una scale esterna che porta ad un ampio terrazzo di 30 mq circa, portone di ingresso blindato che ci fa accedere all'interno dell'abitazione che è composta da corridoio salone con un balcone angolare di 10 mq circa camera cucina abitabile da cui si acceda al secondo balcone di 5 mq circa, bagno ripostiglio e soppalco. Il piano superiore raggiungibile da una scala interna è composto da una cameretta/studio di circa 10 mq da cui si accede a due grandi terrazzi di 30 mq circa e di 40 mq circa, quest'ultimo provvisto di angolo lavanderia. Completa la proprietà un posto auto scopeto all'interno del condominio.
L'immobile risulta luminoso con esposizione a sud/ovest ed è dotato di porta blindata, inferriate, aria condizionata, infissi in PVC con doppi vetri. CHIAMACI PER UN APPUNTAMENTO

LEGGI TUTTO

CONDIVIDI SUI SOCIAL

DATI PRINCIPALI

Riferimento
629505
Contratto
Vendita
Tipologia
Appartamento
Superficie
80 mq
Locali
3
Camere da letto
2
Cucina
Abitabile
Bagni
1
Piano
2 °
Totale piani
2

CARATTERISTICHE

Ascensore

COSTI

Prezzo
€ 158.000,00

EFFICIENZA ENERGETICA

Stato
Ristrutturato
Anno costruzione
1960
Riscaldamento
Autonomo
Climatizzazione
Si
Classe energetica
G
IPE
169,00 kWh/m²a

A+

A

B

C

D

E

F

169,00 kWh/m²a | Classe energetica G

G

MAPPA

ANNUNCI SIMILI

VENDITA 20
€ 312.000
Appartamento in Vendita a Roma, Zona Ponte Mammolo
  • Quadrilocale
  • 110 mq
  • 2 bagni
VENDITA 20
€ 890.000
Appartamento in Vendita a Roma (Roma)
  • Quadrilocale
  • 119 mq
  • 3 bagni
VENDITA 20
€ 420.000
Appartamento in Vendita a Roma (Roma)
  • Trilocale
  • 110 mq
  • 2 bagni
VENDITA 20
€ 329.000
Appartamento in Vendita a Roma (Roma)
  • Trilocale
  • 88 mq
  • 1 bagno
VENDITA 20
€ 365.000
Appartamento in Vendita a Roma (Roma)
  • Trilocale
  • 133 mq
  • 1 bagno
VENDITA 20
€ 319.000
Appartamento in Vendita a Roma (Roma)
  • Trilocale
  • 80 mq
  • 1 bagno