• Trilocale
  • 80 mq
  • 2 bagni

Appartamento in Vendita a Roma

Speciale Bilivello COSTRUZIONE 2010 (AD. TECNOPOLO)
SPECIALE CASE ROSSE COSTRUZIONE 2010 (AD. TECNOPOLO)!
La Felicità non è una meta da raggiungere, ma una casa in cui tornare... Così recita un antico proverbio arabo e così vogliamo presentarvi questa nuova splendida proposta.
Andiamo ad analizzarne insieme i punti di forza, partiamo dalla zona, Case Rosse, Comune di Roma, a due passi da tutti i principali servizi di quartiere, ma soprattutto a due passi dalle linee autobus direttamente collegate alla metro B ed inoltre, immediatamente a ridosso (1,5 km) del casello autostradale del tecnopolo tiburtino, direttamente collegato ad ogni Autostrada d'Italia.
Ora zummiamo sul contesto, interamente in cortina e realizzato nel 2010 con ogni più recente tecnologia costruttiva, dal cemento armato antisismico ai pannelli solari.
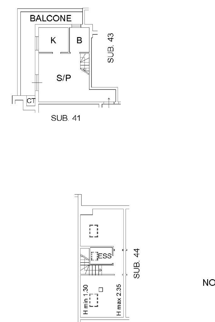
Ingrandiamo ancora con la nostra lente immaginaria e siamo proprio in casa, tenuta ottimamente come da foto, siamo al terzo piano con un ampio sfogo esterno, estremamente luminoso, disposta su due livelli e cosi composta: nel piano basso troviamo salone, cucina separata, bagno e balcone perimetrale, al piano superiore due camere da letto ed un ulteriore bagno.
A completare la soluzione, la possibilità di acquistare un box di circa 20mq nel piano seminterrato, collegato direttamente con l'ascensore, ad euro 10.000,00.
SE VUOI CAMBIARE IL MONDO POSSIAMO PROVARCI INSIEME, SE VUOI CAMBIARE CASA CI PENSIAMO NOI ! BENVENUTA CASA

LEGGI TUTTO

CONDIVIDI SUI SOCIAL

DATI PRINCIPALI

Riferimento
629012
Contratto
Vendita
Tipologia
Appartamento
Superficie
80 mq
Locali
3
Camere da letto
2
Cucina
Cucinotto
Bagni
2
Piano
3 °
Totale piani
3
Box/Posto auto
Singolo

CARATTERISTICHE

Ascensore

COSTI

Prezzo
€ 169.000,00
Spese condominiali
€ 79,00 / mese

EFFICIENZA ENERGETICA

Stato
Ristrutturato
Anno costruzione
2010
Riscaldamento
Autonomo
Climatizzazione
Si
Classe energetica
F
IPE
175,00 kWh/m²a

A+

A

B

C

D

E

175,00 kWh/m²a | Classe energetica F

F

G

MAPPA

ANNUNCI SIMILI

VENDITA 20
€ 153.000
Appartamento in Vendita a Roma, Frazione Case Rosse
  • Trilocale
  • 115 mq
  • 2 bagni
VENDITA 20
€ 199.000
Appartamento in Vendita a Roma, Frazione Case Rosse
  • Quadrilocale
  • 110 mq
  • 2 bagni
VENDITA 20
€ 169.000
Appartamento in Vendita a Roma, Frazione Case Rosse
  • Trilocale
  • 90 mq
  • 1 bagno
VENDITA 20
€ 159.000
Appartamento in Vendita a Roma, Frazione Case Rosse
  • Quadrilocale
  • 85 mq
  • 2 bagni
VENDITA 20
€ 245.000
Appartamento in Vendita a Roma, Frazione Case Rosse
  • Trilocale
  • 91 mq
  • 2 bagni
VENDITA 20
€ 185.000
Appartamento in Vendita a Roma, Zona Settecamini
  • Trilocale
  • 90 mq
  • 2 bagni
VENDITA 19
€ 167.000
Appartamento in Vendita a Roma, Zona Settecamini
  • Trilocale
  • 83 mq
  • 2 bagni