€ 490.000
  • Trilocale
  • 130 mq
  • 2 bagni

Appartamento in Vendita a Roma

In Via Rivarone, nella zona residenziale di Val Cannuta, Lo Studio Bocea srl propone in vendita un elegante appartamento di ampia metratura al piano quinto attico in una palazzina dotata di ascensore.

L’ appartamento è parte di un signorile fabbricato costruito negli anni Settanta con rivestimento in cortina con spazi verdi privati che circondano l’intero edificio garantendo molta privacy.

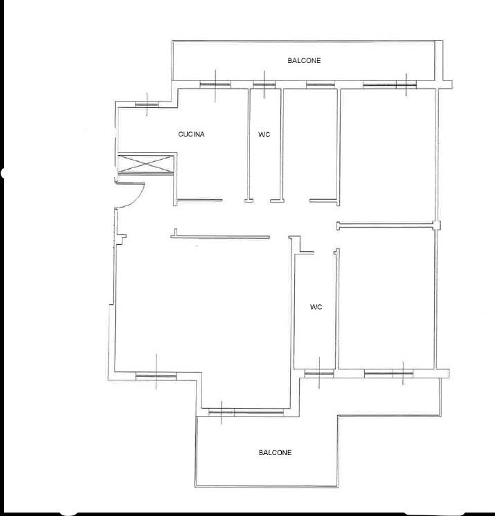
La superficie coperta catastale dell’ appartamento è di 120 mq oltre terrazzo e balcone.

Entrando abbiamo l'ingresso, ampia zona living con pavimento in marmo, esposta totalmente a Sud, luminosa grazie alla presenza di due grandi finestre che danno accesso diretto al terrazzo vivibile per godere a pieno la piacevole vista panoramica. A seguire il disimpegno serve prima la cucina abitabile con ampio balcone panoramico, e la zona notte, composta da: due camere matrimonili, una camera singole e due comodi servizi entrambi dotati di finestra.

La doppia esposizione garantisce un ottima luminosità e privacy.

Completano la proprietà un posto auto al piano pilotis del fabbricato avente accesso carrabile attraverso cancello automatico, e una pratica soffitta all'ultimo piano.

La soluzione si presenta ideale per chi cerca comfort, tranquillità e qualità abitativa in un contesto urbano curato, adiacente a Via Boccea e a tutti i servizi offerti, tra cui: supermercati, scuole, negozi di ogni genere, farmacie, bar etc..
Ottimi i collegamenti con Via Boccea e Via Aurelia grazie alle fermate bus e Metro A.

LEGGI TUTTO

CONDIVIDI SUI SOCIAL

DATI PRINCIPALI

Riferimento
627990
Contratto
Vendita
Tipologia
Appartamento
Superficie
130 mq
Locali
3
Camere da letto
2
Cucina
Abitabile
Bagni
2
Piano
5 °
Totale piani
4
Box/Posto auto
Singolo

CARATTERISTICHE

Ascensore

COSTI

Prezzo
€ 490.000,00
Spese condominiali
€ 120,00 / mese

EFFICIENZA ENERGETICA

Stato
Abitabile
Anno costruzione
1970
Riscaldamento
Centralizzato
Climatizzazione
Si
Classe energetica
G
IPE
172,00 kWh/m²a

A+

A

B

C

D

E

F

172,00 kWh/m²a | Classe energetica G

G

MAPPA

ANNUNCI SIMILI

VENDITA 20
€ 490.000
Appartamento in Vendita a Roma (Roma)
  • Più di 5 locali
  • 139 mq
  • 2 bagni
VENDITA 20
€ 370.000
Appartamento in Vendita a Roma (Roma)
  • Trilocale
  • 89 mq
  • 1 bagno
VENDITA 20
€ 495.000
Appartamento in Vendita a Roma (Roma)
  • Quadrilocale
  • 130 mq
  • 2 bagni
VENDITA 18
€ 430.000
Appartamento in Vendita a Roma (Roma)
  • Quadrilocale
  • 115 mq
  • 2 bagni
VENDITA 20
€ 490.000
Appartamento in Vendita a Roma, Zona Boccea
  • Trilocale
  • 80 mq
  • 2 bagni
VENDITA 20
€ 510.000
Appartamento in Vendita a Roma, Zona Boccea
  • Trilocale
  • 80 mq
  • 2 bagni
VENDITA 10
€ 330.000
Appartamento in Vendita a Roma (Roma)
  • Quadrilocale
  • 125 mq
  • 2 bagni
VENDITA 3
€ 269.000
Appartamento in Vendita a Roma, Zona Boccea
  • Trilocale
  • 97 mq
  • 1 bagno
VENDITA 12
€ 389.000
Appartamento in Vendita a Roma, Zona Boccea
  • Quadrilocale
  • 110 mq
  • 1 bagno