€ 520.000
  • Trilocale
  • 85 mq
  • 1 bagno

Appartamento in Vendita a Roma

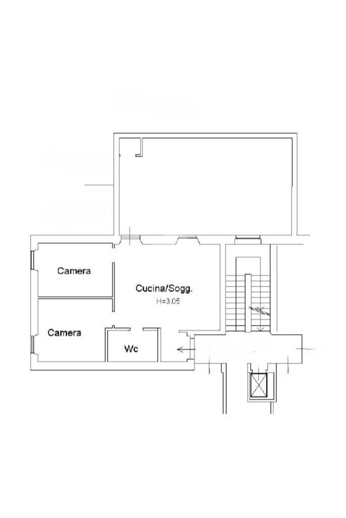
VIA GIACOMO BARZELLOTTI – Se stai cercando una casa che unisca comodità, spazi esterni e una posizione ben collegata, questa proposta potrebbe fare al caso tuo. In Via Giacomo Bazellotti è in vendita un trilocale al piano terra, completamente ristrutturato, pensato per chi ama vivere la casa anche all’esterno. L’ingresso conduce in un ambiente accogliente e ben organizzato, con soggiorno e angolo cottura, ideale per la vita di tutti i giorni. La zona notte è composta da due camere da letto e da un servizio, con spazi funzionali e ben distribuiti. Il vero protagonista dell’abitazione è l’ampio giardino pavimentato di circa 50 mq, uno spazio riservato e versatile, perfetto per rilassarsi, ricevere amici o creare una zona verde personalizzata. La vicinanza alla metropolitana e ai principali servizi aggiunge un grande valore all’immobile, rendendolo comodo per chi si muove quotidianamente in città. Una soluzione ideale per chi desidera praticità, comfort e uno spazio esterno privato, senza rinunciare alla comodità della zona.
Perchè scegliere questo immobile:

- Per la versatilità d'uso;

- Per l'ottima posizione;

- Ottimo come investimento;

Classe G. Ep> 175 Kwh/mq/a.

Per prenotare il tuo appuntamento inviaci un messaggio al 3891084703 o chiamaci al tel. 06.39754161

LEGGI TUTTO

CONDIVIDI SUI SOCIAL

DATI PRINCIPALI

Riferimento
627467
Contratto
Vendita
Tipologia
Appartamento
Superficie
85 mq
Locali
3
Camere da letto
2
Bagni
1
Piano
Piano terra
Totale piani
5

CARATTERISTICHE

Ascensore

COSTI

Prezzo
€ 520.000,00
Spese condominiali
€ 50,00 / mese

EFFICIENZA ENERGETICA

Stato
Ristrutturato
Anno costruzione
1960
Riscaldamento
Autonomo
Climatizzazione
Si
Classe energetica
G
IPE
175,00 kWh/m²a

A+

A

B

C

D

E

F

175,00 kWh/m²a | Classe energetica G

G

MAPPA

ANNUNCI SIMILI

VENDITA 20
€ 480.000
Appartamento in Vendita a Roma (Roma)
  • Trilocale
  • 100 mq
  • 1 bagno
VENDITA 6
€ 525.000
Appartamento in Vendita a Roma (Roma)
  • Trilocale
  • 72 mq
  • 1 bagno
VENDITA 17
€ 350.000
Appartamento in Vendita a Roma (Roma)
  • Trilocale
  • 75 mq
  • 1 bagno
VENDITA 19
€ 410.000
Appartamento in Vendita a Roma (Roma)
  • Trilocale
  • 85 mq
  • 1 bagno
VENDITA 20
€ 465.000
Appartamento in Vendita a Roma (Roma)
  • Trilocale
  • 108 mq
  • 1 bagno
VENDITA 20
€ 540.000
Appartamento in Vendita a Roma (Roma)
  • Quadrilocale
  • 130 mq
  • 2 bagni
VENDITA 5
€ 1.715.000
Appartamento in Vendita a Roma (Roma)
  • Quadrilocale
  • 233 mq
  • 2 bagni
VENDITA 18
€ 499.500
Appartamento in Vendita a Roma (Roma)
  • Più di 5 locali
  • 135 mq
  • 4 bagni