€ 635.000
  • Trilocale
  • 99 mq
  • 1 bagno

Appartamento in Vendita a Roma

**Signorile appartamento in Vendita in via Nomentana Villa Torlonia**

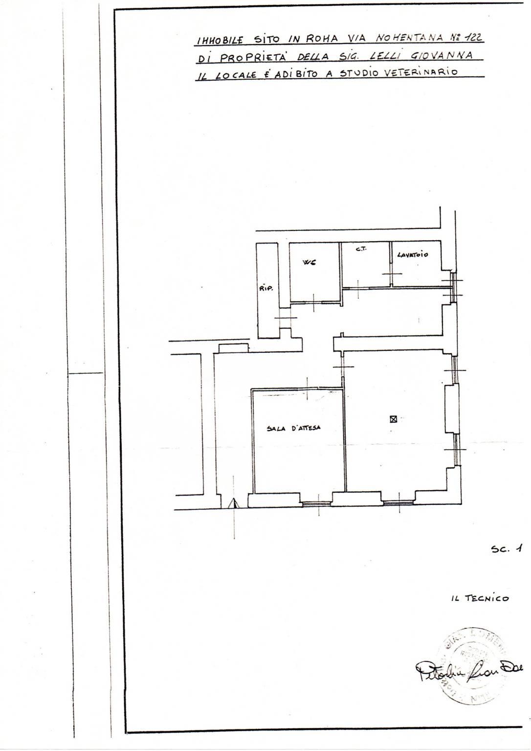
Scopri questo affascinante appartamento situato al piano terra di un bellissimo palazzetto d'epoca, immerso nel verde e nella tranquillità di Via Nomentana a poca distanza da Villa Torlonia. Con una superficie di 99 mq commerciali, questo immobile è un'opportunità imperdibile per chi cerca un ambiente sereno e silenzioso. La disposizione interna attualmente comprende un lungo ingresso, due stanze spaziose, una terza stanza di dimensioni meno ampie, un bagno e un ripostiglio, rendendolo ideale non solo come abitazione ma anche come ufficio o studio medico.

L'appartamento è totalmente da ristrutturare, offrendo così la possibilità di personalizzarlo secondo i propri gusti ed esigenze. Attualmente e accatastato come A/10, quindi perfetto per chi desidera investire in una zona in forte sviluppo. Il riscaldamento è centralizzato con contabilizzatori e l'accesso è adattato per persone con mobilità ridotta, garantendo comodità e funzionalità.

Non perdere l'occasione di trasformare questo spazio in un luogo unico e speciale. Contattaci per maggiori informazioni e per prenotare una visita! Ada Gay cell. 335-354410

Orientamento sud, ovest

LEGGI TUTTO

CONDIVIDI SUI SOCIAL

DATI PRINCIPALI

Riferimento
626796
Contratto
Vendita
Tipologia
Appartamento
Superficie
99 mq
Locali
3
Camere da letto
1
Cucina
Cucinotto
Bagni
1
Piano
Piano terra
Totale piani
3

CARATTERISTICHE

Ascensore

COSTI

Prezzo
€ 635.000,00
Spese condominiali
€ 60,00 / mese

EFFICIENZA ENERGETICA

Stato
Da ristrutturare
Anno costruzione
1920
Riscaldamento
Centralizzato
Classe energetica
G
IPE
54,10 kWh/m²a

A+

A

B

C

D

E

F

54,10 kWh/m²a | Classe energetica G

G

MAPPA

ANNUNCI SIMILI

VENDITA 17
€ 490.000
Appartamento in Vendita a Roma, Zona Bologna
  • Quadrilocale
  • 95 mq
  • 2 bagni
VENDITA 6
€ 850.000
Appartamento in Vendita a Roma, Zona Bologna
  • Quadrilocale
  • 130 mq
  • 2 bagni
VENDITA 20
€ 450.000
Appartamento in Vendita a Roma (Roma)
  • Trilocale
  • 63 mq
  • 1 bagno