Trilocale ristrutturato e arredato via Montaione 41 AFFITTO

Via Montaione 41 - Roma, Zona Nuovo Salario
€ 1.400 mensili
  • Trilocale
  • 106 mq
  • 2 bagni

Appartamento in Affitto a Roma

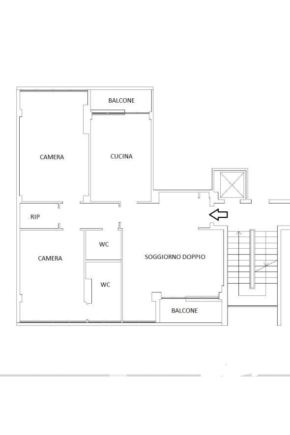
via Montaione -Zona Nuovo Salario- CONTRATTO TRANSITORIO NO STUDENTI - LIBERO DA SUBITO - In un contesto tranquillo e residenziale e nelle immediate vicinanze di tutti i principali servizi, proponiamo in locazione un appartamento di circa 106 mq posto al primo piano di una palazzina di totali piano sette, con ascensore e servizio di portineria per mezza giornata. L'immobile si presenta in ottime condizioni interne in quanto recentemente ristrutturato, verrà affittato completamente arredato ed è così composto: ingresso, soggiorno doppio con accesso ad un balcone, cucina abitabile arredata di tutti gli elettrodomestici con accesso ad un secondo balcone, due camere da letto, due bagni di cui uno privato ed un comodo ripostiglio. Presenta inoltre porta blindata, infissi in pvc doppio vetro, serrande elettriche, tende da sole, impianto di climatizzazione sia nella zona giorno che nella zona notte, parquet in tutta casa. Possibilità di usufruire di posti auto condominiali fino a riempimento. - La tipologia di contratto prevista è quella del Transitorio (NO residenza-massimo 18 mesi). Si richiedono referenze.

LEGGI TUTTO

CONDIVIDI SUI SOCIAL

DATI PRINCIPALI

Riferimento
639795
Contratto
Affitto
Tipologia
Appartamento
Superficie
106 mq
Locali
3
Camere da letto
2
Cucina
Abitabile
Bagni
2
Piano
1 °
Totale piani
7

CARATTERISTICHE

Ascensore

COSTI

Canone
Affitto € 1.400,00 al mese
Tipo locazione
Transitorio
Spese condominiali
€ 90,00 / mese, non incluse nel canone

EFFICIENZA ENERGETICA

Stato
Ristrutturato
Anno costruzione
1960
Riscaldamento
Centralizzato
Climatizzazione
Si
Classe energetica
F
IPE
175,00 kWh/m²a

A+

A

B

C

D

E

175,00 kWh/m²a | Classe energetica F

F

G

MAPPA

ANNUNCI SIMILI

AFFITTO 14
€ 1.200 mensili
Appartamento in Affitto a Roma (Roma)
  • Trilocale
  • 90 mq
  • 2 bagni
AFFITTO 2
€ 500 mensili
Appartamento in Affitto a Roma (Roma)
  • Trilocale
  • 10 mq
  • 1 bagno