Trilocale ristrutturato con giardino VENDITA

Via Bracciano - Manziana (Roma)
€ 129.000
  • Trilocale
  • 70 mq
  • 1 bagno

Appartamento in Vendita a Manziana

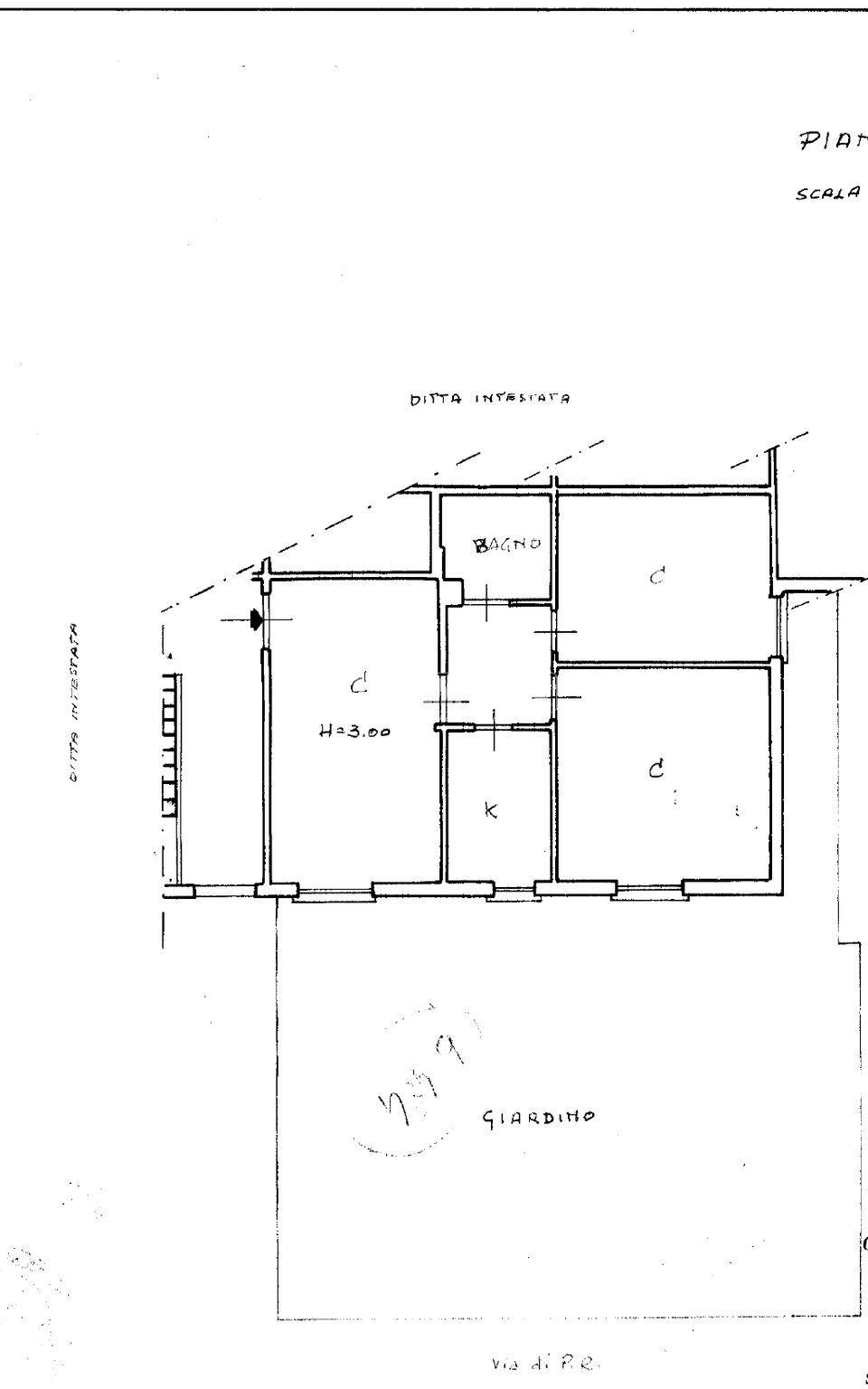
Rif: VP010 - Tempocasa propone in vendita trilocale di circa 70 mq, situato in contesto tranquillo e ben servito.

L’immobile è composto da:

-soggiorno luminoso

-cucina semi-abitabile

-disimpegno

-camera da letto matrimoniale

-cameretta

-bagno con doccia

Completa la proprietà uno splendido giardino privato di circa 90 mq, ideale per momenti di relax all’aperto, pranzi e cene in compagnia o per chi desidera uno spazio verde facilmente gestibile. L'immobile è inoltre dotato di inferriate, zanzariere e persiane blindate,sono presenti inoltre due casette porta-attrezzi.
L'immobile dispone di ingresso condominiale ed ingresso indipendente dal giardino

Perché acquistarlo?

-Per la comodità e il valore aggiunto di uno spazio esterno privato

-Per la possibilità di personalizzare gli ambienti grazie alla ristrutturazione

-Ottima soluzione per famiglie, coppie o come investimento

Contattaci per maggiori informazioni o per fissare una visita!

LEGGI TUTTO

CONDIVIDI SUI SOCIAL

DATI PRINCIPALI

Riferimento
636535
Contratto
Vendita
Tipologia
Appartamento
Superficie
70 mq
Locali
3
Camere da letto
2
Cucina
Abitabile
Bagni
1
Piano
Piano terra
Totale piani
3

CARATTERISTICHE

Ascensore

COSTI

Prezzo
€ 129.000,00
Spese condominiali
€ 25,00 / mese

EFFICIENZA ENERGETICA

Stato
Abitabile
Anno costruzione
1980
Riscaldamento
Autonomo
Classe energetica
G
IPE
175,00 kWh/m²a

A+

A

B

C

D

E

F

175,00 kWh/m²a | Classe energetica G

G

MAPPA

ANNUNCI SIMILI

VENDITA 20
€ 119.000
Appartamento in Vendita a Manziana (Roma)
  • Trilocale
  • 85 mq
  • 1 bagno
VENDITA 20
€ 229.000
Appartamento in Vendita a Manziana (Roma)
  • Quadrilocale
  • 161 mq
  • 3 bagni
VENDITA 10
€ 145.000
Appartamento in Vendita a Manziana (Roma)
  • Trilocale
  • 80 mq
  • 2 bagni
VENDITA 15
€ 97.000
Appartamento in Vendita a Manziana (Roma)
  • Quadrilocale
  • 70 mq
  • 2 bagni
VENDITA 20
€ 139.000
Appartamento in Vendita a Canale Monterano (Roma)
  • Quadrilocale
  • 141 mq
  • 2 bagni
VENDITA 11
€ 156.000
Appartamento in Vendita a Bracciano (Roma)
  • Quadrilocale
  • 70 mq
  • 1 bagno
VENDITA 14
€ 200.000
Appartamento in Vendita a Bracciano (Roma)
  • Più di 5 locali
  • 125 mq
  • 2 bagni
VENDITA 20
€ 155.000
Appartamento in Vendita a Bracciano (Roma)
  • Più di 5 locali
  • 134 mq
  • 2 bagni