Trilocale Piazza S.G. Bosco VENDITA

Piazza San Giovanni Bosco - Roma, Zona Cinecittà
€ 269.000
  • Trilocale
  • 85 mq
  • 1 bagno

Appartamento in Vendita a Roma

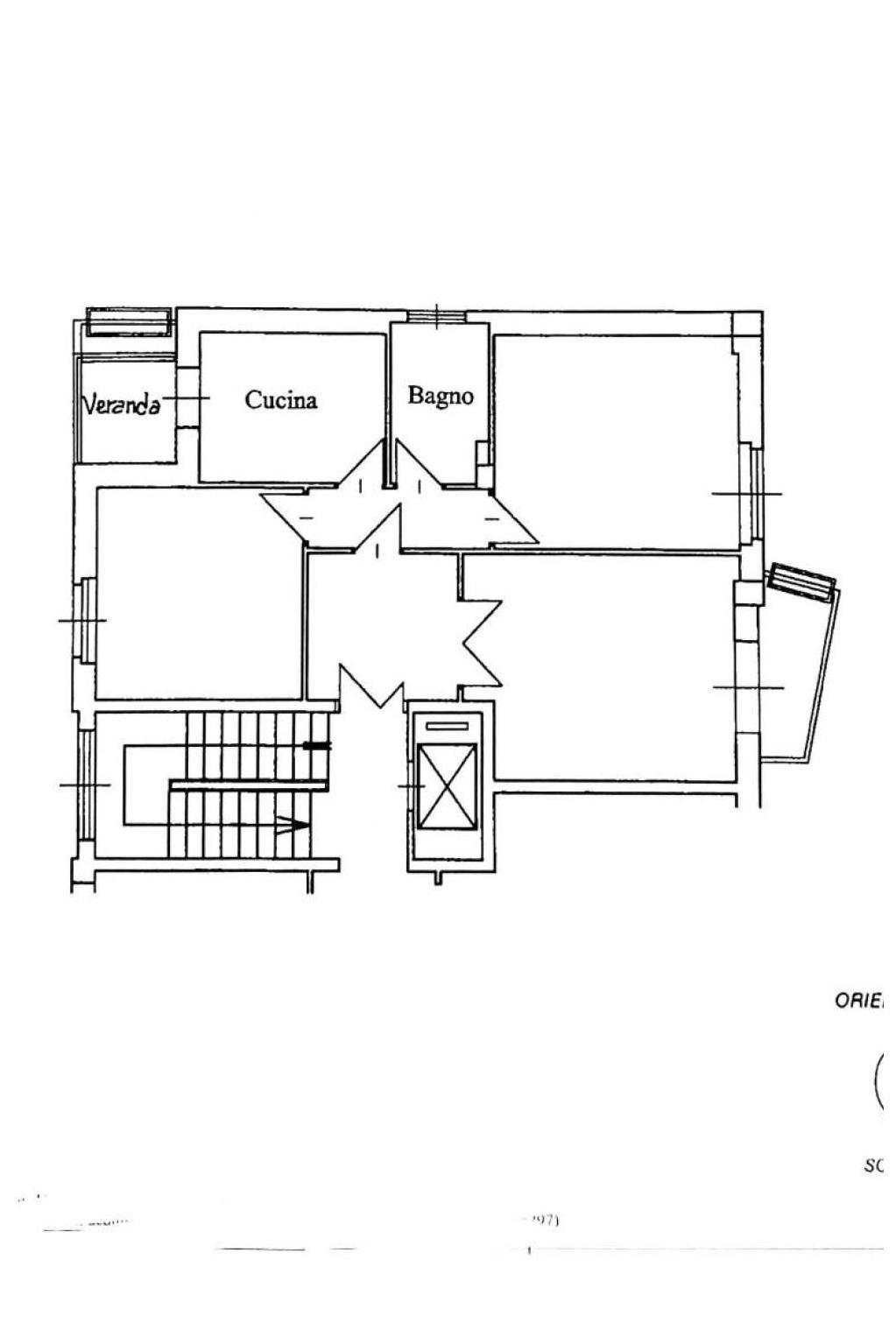
CINECITTA' (ROMA). In Piazza S.G. Bosco, a pochi passi dalla stazione metro Giulio Agricola e da Via Tuscolana, in zona ricca di servizi, proponiamo la vendita di un luminoso trilocale posto al 5° piano di uno stabile di sette facente parte di un complesso con ampi giardini condominiali e servizio di portineria.
L'immobile internamente è composto da ingresso, soggiorno, cucina abitabile, due camere, servizio e due balconi, uno verso l'interno e l'altro con affaccio libero sopra le scuole elementari.
La disposizione degli ambienti con una tripla esposizione, est-sud-ovest, rende l'appartamento assolato e molto luminoso e
permette di modificare gli spazi in base alle proprie esigenze.
Ideale per coppie, famiglie con bambini o investitori che vogliono mettere a reddito, vista la comodità della zona, ottimamente collegata con i mezzi pubblici, il centro e le università.

LEGGI TUTTO

CONDIVIDI SUI SOCIAL

DATI PRINCIPALI

Riferimento
632161
Contratto
Vendita
Tipologia
Appartamento
Superficie
85 mq
Locali
3
Camere da letto
2
Cucina
Abitabile
Bagni
1
Piano
5 °
Totale piani
7

CARATTERISTICHE

Ascensore

COSTI

Prezzo
€ 269.000,00
Spese condominiali
€ 60,00 / mese

EFFICIENZA ENERGETICA

Stato
Da ristrutturare
Anno costruzione
1959
Riscaldamento
Centralizzato
Classe energetica
G
IPE
351,00 kWh/m²a

A+

A

B

C

D

E

F

351,00 kWh/m²a | Classe energetica G

G

MAPPA

ANNUNCI SIMILI

VENDITA 20
€ 229.000
Appartamento in Vendita a Roma, Zona Cinecittà
  • Trilocale
  • 67 mq
  • 1 bagno
VENDITA 13
€ 355.000
Appartamento in Vendita a Roma, Zona Cinecittà
  • Quadrilocale
  • 100 mq
  • 1 bagno
VENDITA 8
€ 249.000
Appartamento in Vendita a Roma, Zona Cinecittà
  • Trilocale
  • 81 mq
  • 1 bagno