trilocale piano alto con box auto VENDITA

Via degli Armenti, 112 - Roma (Roma)
€ 195.000
  • Trilocale
  • 80 mq
  • 1 bagno

Appartamento in Vendita a Roma

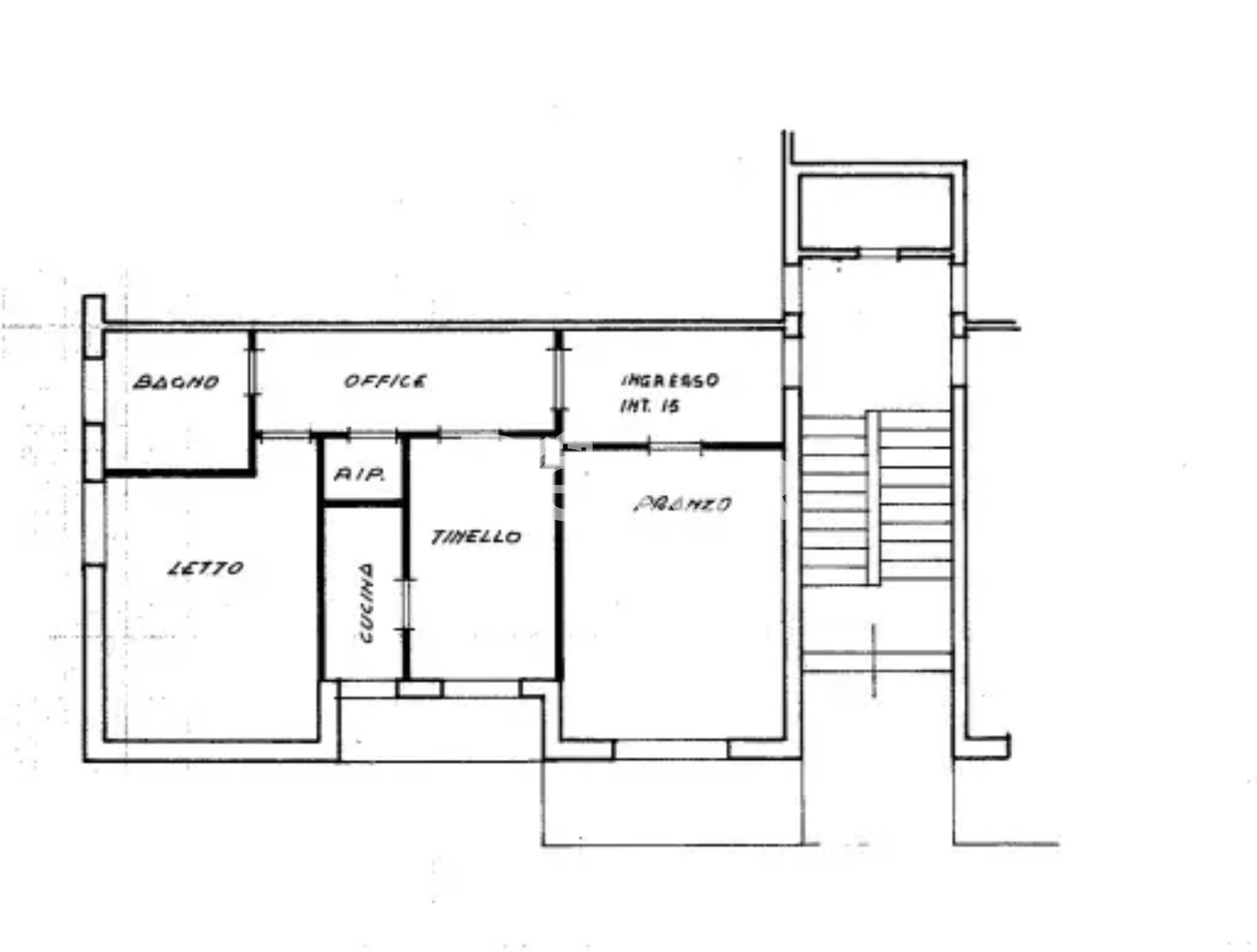
RIF. 385230 - Dati di contatto Agente: Vincenzo Damiano Ciliberti 0620199522 - Appartamento da ristrutturare, composto da ingresso disimpegno, soggiorno, cucinotto, cameretta (studio), camera matrimoniale e servizio. Completano la proprietà due balconi e un box auto . Superficie catastale mq 80. Pavimento originale, infissi esterni in alluminio/doppiovetro anni '90, porta di ingresso blindata, riscaldamento autonomo. L'immobile, è un 3 piano di 5 palazzo in tinta degli anni ‘60 circa .Parti comuni in buono stato di manutenzione. Spese condominiali circa Euro 800,00 /anno circa.
Stabile in tinta d’epoca degli anni '60 circa di tipo economico.
La zona interessata è il quartiere Tor Sapienza , più precisamente in via degli armenti, collocata tra Via della stazione di tor sapienza e Piazza Enrico Coleman . Il quartiere è residenziale, ricco di negozi, supermercati, servizi e ben collegato con il resto della città da mezzi pubblici di trasporto.

LEGGI TUTTO

CONDIVIDI SUI SOCIAL

DATI PRINCIPALI

Riferimento
626235
Contratto
Vendita
Tipologia
Appartamento
Superficie
80 mq
Locali
3
Camere da letto
2
Cucina
Abitabile
Bagni
1
Piano
3 °
Totale piani
5
Box/Posto auto
Singolo

CARATTERISTICHE

Ascensore

COSTI

Prezzo
€ 195.000,00
Spese condominiali
€ 55,00 / mese

EFFICIENZA ENERGETICA

Stato
Da ristrutturare
Riscaldamento
Autonomo
Classe energetica
G

A+

A

B

C

D

E

F

Classe energetica G

G

MAPPA

ANNUNCI SIMILI

VENDITA 11
€ 105.000
Appartamento in Vendita a Roma (Roma)
  • Più di 5 locali
  • 69 mq
  • 1 bagno
VENDITA 20
€ 259.000
Appartamento in Vendita a Roma (Roma)
  • Trilocale
  • 80 mq
  • 2 bagni
VENDITA 20
€ 589.000
Appartamento in Vendita a Roma (Roma)
  • Più di 5 locali
  • 225 mq
  • 3 bagni