TRILOCALE IN VIA FILIPPI ERMINI COMPLETAMENTE RISTRUTTURATO VENDITA

Via Filippo Ermini 68 - Roma (Roma)
€ 468.000
  • Trilocale
  • 98 mq
  • 2 bagni

Appartamento in Vendita a Roma

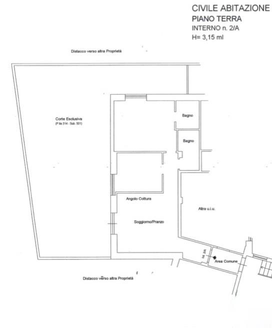
In una tranquilla e riservata traversa di via Baldo degli Ubaldi, all’interno di un comprensorio curato con giardini condominiali e servizio di portineria, proponiamo in vendita un elegante trilocale completamente ristrutturato, nato dal frazionamento di un immobile più grande.
La posizione garantisce silenzio e privacy, pur restando a brevissima distanza dalla Metro A e da tutti i principali servizi.
L’immobile si presenta pari al nuovo, con finiture moderne e una distribuzione degli spazi funzionale e ben studiata.

- Soggiorno con angolo cottura
- Due camere da letto
- Doppi servizi, di cui uno en suite
- GIARDINO PRIVATO DI CIRCA 100 MQ

Dotazioni e finiture:

- Impianti nuovi E CERTIFICATI
- Infissi in PVC con doppi vetri
- Aria condizionata/ Pompa di calore
- Nuova caldaia
- Impianto di irrigazione

Soluzione ideale per famiglie, coppie o anche come investimento, per chi cerca una casa moderna con ampi spazi interni ed esterni in un contesto tranquillo e ben collegato.

LEGGI TUTTO

CONDIVIDI SUI SOCIAL

DATI PRINCIPALI

Riferimento
643254
Contratto
Vendita
Tipologia
Appartamento
Superficie
98 mq
Locali
3
Camere da letto
2
Cucina
Angolo cottura
Bagni
2
Piano
Piano terra
Totale piani
5

CARATTERISTICHE

Ascensore

COSTI

Prezzo
€ 468.000,00
Spese condominiali
€ 80,00 / mese

EFFICIENZA ENERGETICA

Stato
Ristrutturato
Anno costruzione
1963
Riscaldamento
Autonomo
Climatizzazione
Si
Classe energetica
F
IPE
175,00 kWh/m²a

A+

A

B

C

D

E

175,00 kWh/m²a | Classe energetica F

F

G

MAPPA

ANNUNCI SIMILI

VENDITA 20
€ 830.000
Appartamento in Vendita a Roma (Roma)
  • Trilocale
  • 110 mq
  • 2 bagni
VENDITA 20
€ 1.250.000
Appartamento in Vendita a Roma (Roma)
  • Più di 5 locali
  • 300 mq
  • 3 bagni
VENDITA 20
€ 449.000
Appartamento in Vendita a Roma (Roma)
  • Trilocale
  • 122 mq
  • 2 bagni
VENDITA 20
€ 2.264.000
Appartamento in Vendita a Roma (Roma)
  • Più di 5 locali
  • 297 mq
  • 4 bagni
VENDITA 20
€ 575.000
Appartamento in Vendita a Roma (Roma)
  • Quadrilocale
  • 105 mq
  • 2 bagni
VENDITA 20
€ 475.000
Appartamento in Vendita a Roma (Roma)
  • Più di 5 locali
  • 128 mq
  • 2 bagni
VENDITA 20
€ 359.000
Appartamento in Vendita a Roma (Roma)
  • Trilocale
  • 67 mq
  • 1 bagno