TRILOCALE IN VENDITA TIVOLI TERME, VIA CARLO COLLODI VENDITA

Via Carlo Collodi 2a - Tivoli (Roma)
€ 170.000
  • Trilocale
  • 69 mq
  • 1 bagno

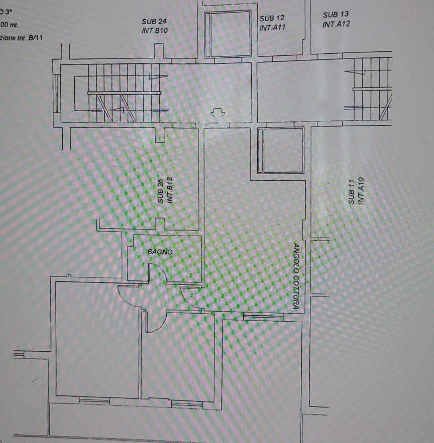
Appartamento in Vendita a Tivoli

In elegante palazzina in cortina con ascensore, proponiamo in vendita un luminoso trilocale recentemente ristrutturato, situato in una zona tranquilla e ben servita di Tivoli Terme.

L’appartamento, in ottimo stato interno e caratterizzato da un’ottima esposizione solare, si compone di:

* soggiorno con angolo cottura,
* camera da letto matrimoniale,
* cameretta,
* bagno,
* ampio balcone perimetrale, perfetto per pranzi all’aperto o momenti di relax.

Completano la proprietà una cantina e un posto auto coperto.

Dotazioni e comfort:

* riscaldamento autonomo,
* caldaia nuova,
* tende da sole,
* porte interne nuove,
* armadio esterno in alluminio.

Spese condominiali €85 inclusa utenza dell'acqua.

Posizione eccellente, a pochi passi da tutti i principali servizi, scuole, negozi e fermate dei mezzi pubblici. La stazione ferroviaria di Tivoli Terme garantisce comodi collegamenti con Roma.

LEGGI TUTTO

CONDIVIDI SUI SOCIAL

DATI PRINCIPALI

Riferimento
634739
Contratto
Vendita
Tipologia
Appartamento
Superficie
69 mq
Locali
3
Camere da letto
2
Cucina
Angolo cottura
Bagni
1
Piano
3 °
Totale piani
4
Box/Posto auto
Singolo

CARATTERISTICHE

Ascensore

COSTI

Prezzo
€ 170.000,00
Spese condominiali
€ 85,00 / mese

EFFICIENZA ENERGETICA

Stato
Ristrutturato
Anno costruzione
2010
Riscaldamento
Autonomo
Classe energetica
F
IPE
175,00 kWh/m²a

A+

A

B

C

D

E

175,00 kWh/m²a | Classe energetica F

F

G

MAPPA