TRILOCALE DI NUOVA COSTRUZIONE CON 290 MQ DI GIARDINO PRIVAT VENDITA

Via Casal del Marmo 506/a - Roma, Zona Ottavia
€ 259.000
  • Trilocale
  • 75 mq
  • 1 bagno

Appartamento in Vendita a Roma

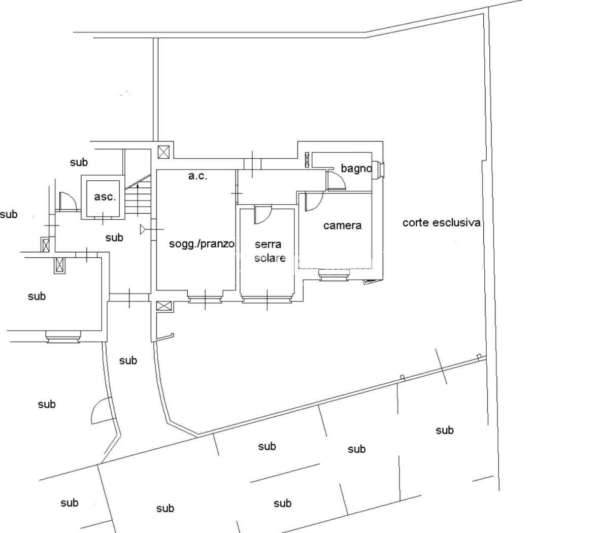
L’abitazione proposta si trova all’interno di un condominio moderno, edificato a fine 2020, e si distingue per l’elevata efficienza energetica garantita dalla classe A4 e dalla presenza di pannelli solari con accumulatore. L’appartamento presenta una superficie di 75 mq lordi, circondato da 290 mq di spazi esterni esclusivi che conferiscono alla proprietà un’impronta di autonomia e tranquillità rara nel contesto condominiale.

L’ingresso principale apre su un accogliente salone con angolo cottura, caratterizzato da buona luminosità e dall’accesso diretto al giardino frontale, che rappresenta un naturale prolungamento della zona giorno. Attraverso un disimpegno si accede alla zona notte, composta da una cameretta, una camera matrimoniale e un bagno finestrato con doccia. Il disimpegno ospita inoltre una seconda porta blindata che permette un ulteriore ingresso indipendente dal giardino, dettaglio che aumenta la funzionalità dell’immobile.

Le finiture interne includono pavimenti in gres porcellanato, infissi in legno con triplo vetro e predisposizione per l’installazione di climatizzatori. Il bagno presenta rivestimenti moderni in gres, mentre tra le dotazioni tecnologiche figurano il videocitofono e l’impianto solare. Il condominio è servito da due cancelli carrabili: uno dedicato ai garage e un secondo ad uso esclusivo dell’abitazione, che consente l’accesso a un’area privata dove è possibile parcheggiare fino a cinque autovetture.

L’immobile è disponibile da subito e le spese condominiali ammontano a circa 80 euro mensili, comprensive di acqua sanitaria in base ai consumi. Questa soluzione rappresenta un connubio equilibrato tra modernità, comfort e ampi spazi esterni, ideale per chi ricerca un’abitazione recente e ben organizzata.

Cosa aspetti? contattaci per la tua prima visita!

LEGGI TUTTO

CONDIVIDI SUI SOCIAL

DATI PRINCIPALI

Riferimento
637419
Contratto
Vendita
Tipologia
Appartamento
Superficie
75 mq
Locali
3
Camere da letto
1
Cucina
Angolo cottura
Bagni
1
Piano
Piano terra
Totale piani
3
Box/Posto auto
Doppio

CARATTERISTICHE

Ascensore

COSTI

Prezzo
€ 259.000,00

EFFICIENZA ENERGETICA

Stato
Nuovo/In costruzione
Anno costruzione
2020
Riscaldamento
Autonomo
Climatizzazione
Si
Classe energetica
A4
IPE
1,00 kWh/m²a
1,00 kWh/m²a | Classe energetica A4

A4

A3

A2

A1

B

C

D

E

F

G

MAPPA

ANNUNCI SIMILI

VENDITA 19
€ 175.000
Appartamento in Vendita a Roma, Zona Ottavia
  • Trilocale
  • 58 mq
  • 1 bagno
VENDITA 20
€ 340.000
Appartamento in Vendita a Roma, Zona Ottavia
  • Quadrilocale
  • 144 mq
  • 2 bagni
VENDITA 20
€ 168.000
Appartamento in Vendita a Roma, Zona Ottavia
  • Trilocale
  • 74 mq
  • 1 bagno
VENDITA 18
€ 225.000
Appartamento in Vendita a Roma, Zona Ottavia
  • Trilocale
  • 110 mq
  • 2 bagni
VENDITA 20
€ 215.000
Appartamento in Vendita a Roma, Zona Ottavia
  • Trilocale
  • 108 mq
  • 2 bagni
VENDITA 20
€ 230.000
Appartamento in Vendita a Roma, Zona Ottavia
  • Trilocale
  • 97 mq
  • 2 bagni
VENDITA 20
€ 235.000
Appartamento in Vendita a Roma, Zona Ottavia
  • Quadrilocale
  • 100 mq
  • 1 bagno