Trilocale con posto auto VENDITA

Via della Fornacetta - Santa Marinella (Roma)
€ 219.000
  • Trilocale
  • 70 mq
  • 1 bagno

Appartamento in Vendita a Santa Marinella

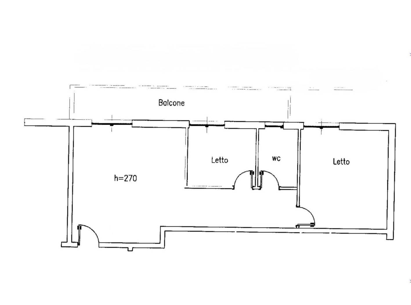
Proponiamo in vendita un appartamento situato al primo piano di una palazzina in cortina con ascensore.

L’ingresso apre su un luminoso soggiorno con un ampio angolo cottura, dal quale si accede comodamente al balcone, dotato di tre tende da sole, ideale per momenti di relax all’aperto.
Un corridoio funzionale, lungo il quale è presente un ampio armadio a muro, conduce alla zona notte; all’interno dell’armadio è ricavato uno spazio adibito a lavanderia, pratico e ben organizzato.
La zona notte è composta da una grande e luminosa camera matrimoniale, una cameretta con porta finestra e accesso diretto al balcone, e un bagno.

La casa dispone di un posto auto scoperto, di proprietà.

L’appartamento è dotato di riscaldamento autonomo, con gas metano diretto e impianto di climatizzazione caldo/freddo, garantendo comfort in ogni stagione.

Soluzione ideale per famiglie, giovani coppie o come investimento, grazie alla posizione strategica, in quartiere tranquillo e riservato, con solo traffico locale, distanza dal mare e dalla ferrovia circa 900 m lineari.

Viene venduto mobiliato come da foto, ad esclusione di oggetti personali.

LEGGI TUTTO

CONDIVIDI SUI SOCIAL

DATI PRINCIPALI

Riferimento
639739
Contratto
Vendita
Tipologia
Appartamento
Superficie
70 mq
Locali
3
Camere da letto
2
Cucina
Angolo cottura
Bagni
1
Piano
1 °
Totale piani
3
Box/Posto auto
Singolo

CARATTERISTICHE

Ascensore

COSTI

Prezzo
€ 219.000,00
Spese condominiali
€ 50,00 / mese

EFFICIENZA ENERGETICA

Stato
Ristrutturato
Anno costruzione
2008
Riscaldamento
Autonomo
Climatizzazione
Si
Classe energetica
D
IPE
1,00 kWh/m²a

A+

A

B

C

1,00 kWh/m²a | Classe energetica D

D

E

F

G

MAPPA

ANNUNCI SIMILI

VENDITA 20
€ 139.000
Appartamento in Vendita a Santa Marinella (Roma)
  • Trilocale
  • 120 mq
  • 1 bagno
VENDITA 19
€ 320.000
Appartamento in Vendita a Santa Marinella (Roma)
  • Trilocale
  • 95 mq
  • 2 bagni