Trilocale con posto auto e cantina ad 1 km dalla stazione FS VENDITA

Via Umberto Maddalena 40 - Ciampino (Roma)
€ 258.000
  • Trilocale
  • 110 mq
  • 1 bagno

Appartamento in Vendita a Ciampino

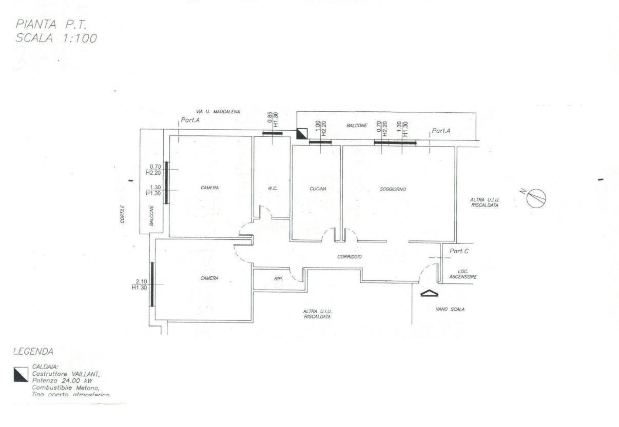
Rif. 1420- L'Immobiliare Simonetti è lieta di proporre la vendita di un ampio e luminoso appartamento di circa 110 mq, nello splendido Comune di Ciampino, e più precisamente in Via Umberto Maddalena, via tranquilla e ben collegata.Situato al piano primo di graziosa palazzina fornita di ascensore, ideale per chi cerca comfort, funzionalità e ottimamente collegata a Roma centro ed solo ad 1 km dalla Stazione ferroviaria FS.
L'immobile è composto da ambienti grandi e ben distribuiti: un ampio e luminoso salone da cui si accede ad uno dei due balconi, ottimo per trascorrere piacevoli serate in compagnia; una cucina abitabile sempre con accesso al secondo balcone, due ampie e luminose camere matrimoniali; infine un piacevole bagno con vasca. Importante, evidenziare la possibilità di procedere alla realizzazione di un secondo bagno nella camera padronale, usufruendo dell'ampia metratura della stanza, dove già è tutto predisposto. Completano l'immobile un posto auto coperto nel garage sottostante ed una comoda cantina.
Posizione comoda vicino a scuole, centri sportivi, supermercati, parchi giochi, servizi e mezzi pubblici (Stazione del treno FS) e con facile accesso alle principali arterie stradali. Ottima anche ad uso investimento. La buona esposizione garantisce ottima luminosità naturale durante tutta la giornata.
Contattaci per maggiori informazioni o per fissare una visita. Ti aspettiamo .Tutte le informazioni, fatti e planimetrie contenute nel presente annuncio pubblicitario, non costituiscono elemento contrattuale: potrebbero non rispettare fedelmente lo stato di fatto dell'immobile e andranno verificate prima di formulare la proposta di acquisto. L'agenzia immobiliare non risponde di eventuale discordanze. Le immagini o foto in pubblicità sono inserite a scopo illustrativo e non costituiscono elemento contrattuale. Rif.1420- IMMOBILIARE

LEGGI TUTTO

CONDIVIDI SUI SOCIAL

DATI PRINCIPALI

Riferimento
642107
Contratto
Vendita
Tipologia
Appartamento
Superficie
110 mq
Locali
3
Camere da letto
2
Cucina
Abitabile
Bagni
1
Piano
1 °
Totale piani
4
Box/Posto auto
Singolo

CARATTERISTICHE

Ascensore

COSTI

Prezzo
€ 258.000,00
Spese condominiali
€ 50,00 / mese

EFFICIENZA ENERGETICA

Stato
Abitabile
Anno costruzione
1970
Riscaldamento
Autonomo
Classe energetica
G
IPE
175,00 kWh/m²a

A+

A

B

C

D

E

F

175,00 kWh/m²a | Classe energetica G

G

MAPPA

ANNUNCI SIMILI

VENDITA 20
€ 240.000
Appartamento in Vendita a Ciampino (Roma)
  • Quadrilocale
  • 136 mq
  • 1 bagno
VENDITA 20
€ 240.000
Appartamento in Vendita a Ciampino (Roma)
  • Quadrilocale
  • 130 mq
  • 1 bagno
VENDITA 20
€ 220.000
Appartamento in Vendita a Ciampino (Roma)
  • Trilocale
  • 141 mq
  • 1 bagno