TRILOCALE CON GIARDINO E BOX VENDITA

Via di Boccea - Roma, Zona Casalotti
€ 255.000
  • Trilocale
  • 87 mq
  • 2 bagni

Appartamento in Vendita a Roma

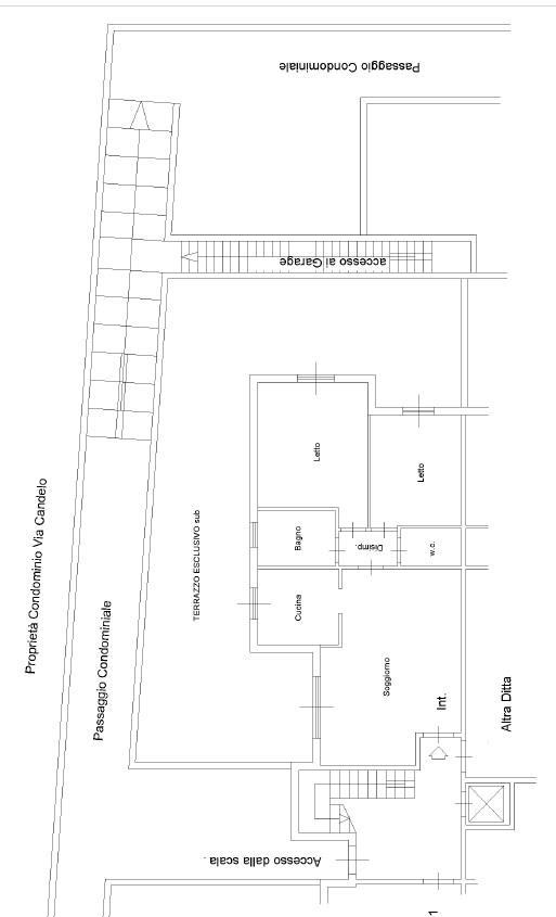
La Tempocasa di Casalotti propone in vendita, in Via Boccea, a pochi passi dal supermercato Agorà, un trilocale al piano terra all’interno di una palazzina in intonaco, arretrata rispetto alla strada principale e quindi lontana dal traffico, in un contesto tranquillo e riservato.

L’appartamento, che si sviluppa su una superficie di 87 mq circa, si apre su un luminoso salone con angolo cottura, da cui si accede, come da tutti gli ambienti della casa, a un ampio terrazzo di circa 100 mq: uno spazio esterno ideale per momenti di relax, cene all’aperto o per chi ama vivere la casa anche fuori dalle mura domestiche. La zona notte è composta da due camere da letto e due bagni, uno dei quali finestrato e l’altro cieco, ben distribuiti e funzionali per la vita quotidiana.
Internamente l’immobile si presenta in condizioni discrete, dispone di infissi dotati di inferriate di sicurezza e zanzariere, mentre il riscaldamento è centralizzato.

A completare la proprietà, un comodo box auto di 16 mq di pertinenza, situato nelle immediate vicinanze della palazzina, ideale per chi desidera un posto auto sicuro o uno spazio aggiuntivo per riporre oggetti.

L'immobile si trova in posizione strategica, vicinissimo a tutti i servizi di prima necessità, come supermercati, scuole, fermate degli autobus e altre attività commerciali, rendendolo ideale per chi desidera vivere in una zona ben servita

Per maggiori informazioni o per fissare un appuntamento, non esitare a contattarci.

LEGGI TUTTO

CONDIVIDI SUI SOCIAL

DATI PRINCIPALI

Riferimento
640090
Contratto
Vendita
Tipologia
Appartamento
Superficie
87 mq
Locali
3
Camere da letto
2
Cucina
Angolo cottura
Bagni
2
Piano
Piano terra
Totale piani
3
Box/Posto auto
Singolo

CARATTERISTICHE

Ascensore

COSTI

Prezzo
€ 255.000,00
Spese condominiali
€ 80,00 / mese

EFFICIENZA ENERGETICA

Stato
Abitabile
Anno costruzione
1990
Riscaldamento
Autonomo
Classe energetica
G
IPE
175,00 kWh/m²a

A+

A

B

C

D

E

F

175,00 kWh/m²a | Classe energetica G

G

MAPPA

ANNUNCI SIMILI

VENDITA 20
€ 229.000
Appartamento in Vendita a Roma, Zona Casalotti
  • Quadrilocale
  • 130 mq
  • 2 bagni
VENDITA 20
€ 299.000
Appartamento in Vendita a Roma, Zona Casalotti
  • Quadrilocale
  • 130 mq
  • 2 bagni
VENDITA 20
€ 170.000
Appartamento in Vendita a Roma, Zona Casalotti
  • Trilocale
  • 55 mq
  • 1 bagno
VENDITA 20
€ 360.000
Appartamento in Vendita a Roma, Zona Casalotti
  • Quadrilocale
  • 105 mq
  • 1 bagno