TRILOCALE CON GIARDINO DI 50 MQ. VENDITA

Via Menandro 13 - Roma, Zona Axa
€ 249.000
  • Trilocale
  • 81 mq
  • 1 bagno

Appartamento in Vendita a Roma

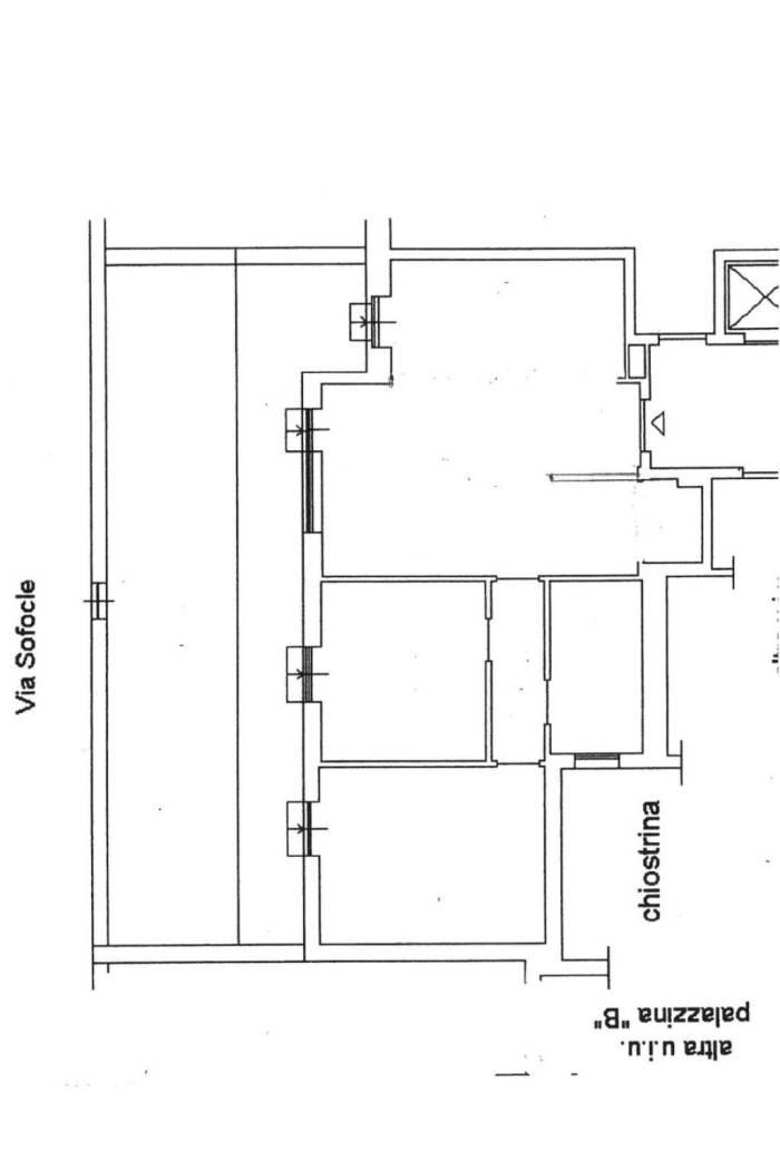
AXA – Via Menandro – in complesso residenziale ben curato e con portierato proponiamo in vendita un bell’ appartamento trilocale luminoso posto al piano terra di 81 mq.
L’appartamento e’ composto da un bel salone doppio, cucinotto, due camera da letto, bagno con finestra. Un bel giardino con possibilità di entrata indipendente.
Completano la proprieta’ una comoda cantina e un posto auto in garage.
L’appartamento e’ dotato di porta blindata e di impianto di riscaldamento centralizzato con contabilizzatori.
L'appartamento si trova a pochi passi da piazza Eschilo e da tutti i servizi di primaria necessita': trasporto pubblico, scuole, bar, ristoranti, supermercati e centri sportivi.

LEGGI TUTTO

CONDIVIDI SUI SOCIAL

DATI PRINCIPALI

Riferimento
638551
Contratto
Vendita
Tipologia
Appartamento
Superficie
81 mq
Locali
3
Camere da letto
2
Cucina
Cucinotto
Bagni
1
Piano
Piano terra
Totale piani
5
Box/Posto auto
Singolo

CARATTERISTICHE

Ascensore

COSTI

Prezzo
€ 249.000,00

EFFICIENZA ENERGETICA

Stato
Abitabile
Riscaldamento
Centralizzato
Classe energetica
G
IPE
175,00 kWh/m²a

A+

A

B

C

D

E

F

175,00 kWh/m²a | Classe energetica G

G

MAPPA

ANNUNCI SIMILI

VENDITA 20
€ 299.000
Appartamento in Vendita a Roma, Zona Axa
  • Trilocale
  • 104 mq
  • 1 bagno
VENDITA 20
€ 299.000
Appartamento in Vendita a Roma, Zona Acilia
  • Trilocale
  • 84 mq
  • 1 bagno
VENDITA 20
€ 470.000
Appartamento in Vendita a Roma, Zona Axa
  • Più di 5 locali
  • 150 mq
  • 2 bagni