Trilocale con box e cantina a Selva Candida VENDITA

Via Nosate 67 - Roma, Zona Casalotti
€ 235.000
  • Trilocale
  • 85 mq
  • 2 bagni

Appartamento in Vendita a Roma

Noi abbiamo la casa per te visita il nostro sito www.immobiliaremarella.it.
Trilocale luminoso con terrazzo, box auto e cantina in vendita a Roma – Selva Candida
Cerchi un appartamento accogliente, luminoso e immerso nella tranquillità? Questa è la soluzione perfetta per te!
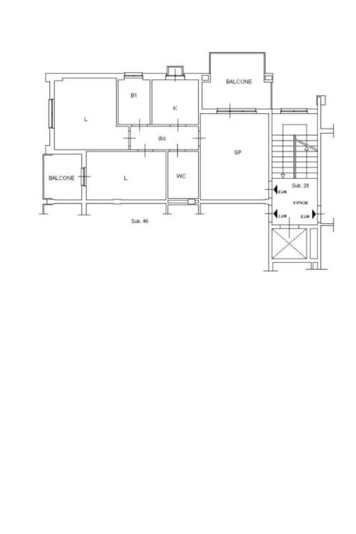
A Roma, zona Selva Candida, in via Nosate, Immobiliare Marella propone in vendita un luminosissimo trilocale di circa 85 mq, situato al secondo piano di una curata palazzina in cortina all’interno di un contesto residenziale riservato e ben mantenuto.
Caratteristiche principali: Ampio salone luminoso con ottima esposizione, cucina abitabile funzionale, 2 camere matrimoniali spaziose con parquet, 2 bagni: uno finestrato con vasca, uno con doccia.
Terrazzo vivibile, ideale per momenti di relax.
Comfort e finiture:
Eccellente luminosità naturale- Ambienti silenziosi e confortevoli- Parquet nelle camere da letto - Infissi di qualità - Palazzina in cortina in ottime condizioni.
Accessori inclusi: Box auto privato - Cantina di pertinenza.
Situato in una zona tranquilla ma ben collegata, l’immobile è vicino ai principali servizi, scuole e attività commerciali: una soluzione ideale per famiglie e coppie .
Prezzo: € 235.000
Nota sulle immagini. Alcune fotografie presenti nell’annuncio sono renderizzazioni virtuali degli ambienti, realizzate esclusivamente per aiutare a immaginare possibili soluzioni di arredo. Le immagini renderizzate hanno finalità puramente illustrative e non rappresentano lo stato reale dell’immobile, né costituiscono elemento contrattuale. Il presente annuncio è da considerarsi puramente informativo e non costituisce elemento contrattuale. Metodo Marella. In Immobiliare Marella crediamo che vendere e acquistare casa debba essere un percorso chiaro, trasparente e organizzato. Il Metodo Marella nasce da oltre 30 anni di esperienza nel settore immobiliare e si basa su alcuni principi semplici: informazioni chiare e verificabili visite organizzate con metodo assistenza completa fino al rogito attenzione reale alle esigenze delle persone. Per noi ogni casa è una storia e ogni cliente merita il tempo e la professionalità necessari per fare una scelta importante con serenità.
Se stai cercando un appartamento spazioso in vendita a Roma, in zona Boccea, questa potrebbe essere la soluzione giusta per te. Contattaci per ricevere maggiori informazioni o per prenotare una visita allo 06/61560000 - 3483210783

LEGGI TUTTO

CONDIVIDI SUI SOCIAL

DATI PRINCIPALI

Riferimento
642071
Contratto
Vendita
Tipologia
Appartamento
Superficie
85 mq
Locali
3
Camere da letto
2
Cucina
Abitabile
Bagni
2
Piano
2 °
Totale piani
4

CARATTERISTICHE

Ascensore

COSTI

Prezzo
€ 235.000,00
Spese condominiali
€ 150,00 / mese

EFFICIENZA ENERGETICA

Stato
Abitabile
Anno costruzione
2009
Riscaldamento
Centralizzato
Classe energetica
F
IPE
175,00 kWh/m²a

A+

A

B

C

D

E

175,00 kWh/m²a | Classe energetica F

F

G

MAPPA

ANNUNCI SIMILI

VENDITA 18
€ 235.000
Appartamento in Vendita a Roma, Zona Casalotti
  • Trilocale
  • 80 mq
  • 2 bagni
VENDITA 20
€ 215.000
Appartamento in Vendita a Roma, Zona Casalotti
  • Trilocale
  • 99 mq
  • 2 bagni
VENDITA 20
€ 182.000
Appartamento in Vendita a Roma, Zona Casalotti
  • Trilocale
  • 85 mq
  • 2 bagni
VENDITA 20
€ 245.000
Appartamento in Vendita a Roma, Zona Casalotti
  • Trilocale
  • 106 mq
  • 2 bagni