TRILOCALE CON BALCONE VENDITA

Via vincenzo montenovesi - Roma (Roma)
€ 199.000
  • Trilocale
  • 72 mq
  • 1 bagno

Appartamento in Vendita a Roma

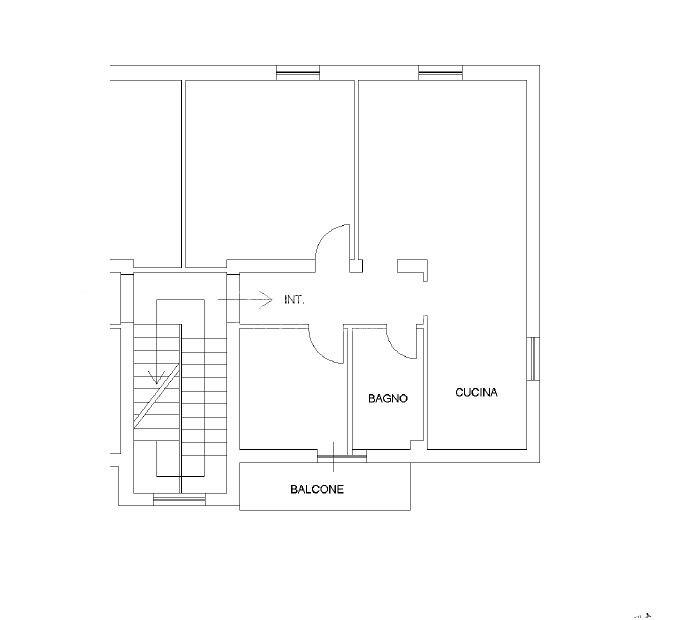
Rif: C199 - Proponiamo in vendita un luminoso trilocale di circa 72 mq, situato al primo piano di una piccola palazzina senza spese condominiali e senza ascensore.

L’appartamento, recentemente ristrutturato, si apre su un comodo ingresso che conduce al corridoio:
- sulla destra troviamo una spaziosa camera matrimoniale;
- sulla sinistra, una cameretta dotata di balcone;
- proseguendo, sulla destra, è presente un bagno finestrato.

Al termine del corridoio, attraverso due eleganti archi, si accede al salone con cucina a vista, ambiente accogliente e ben rifinito.
La soluzione si presenta in ottime condizioni interne, con pavimentazione in parquet in tutti gli ambienti e riscaldamento autonomo.

Ideale per chi cerca una casa pronta da abitare, in un contesto tranquillo e senza costi condominiali.

LEGGI TUTTO

CONDIVIDI SUI SOCIAL

DATI PRINCIPALI

Riferimento
640082
Contratto
Vendita
Tipologia
Appartamento
Superficie
72 mq
Locali
3
Camere da letto
2
Cucina
A vista
Bagni
1
Piano
1 °
Totale piani
2

CARATTERISTICHE

Ascensore

COSTI

Prezzo
€ 199.000,00

EFFICIENZA ENERGETICA

Stato
Ristrutturato
Anno costruzione
1980
Riscaldamento
Autonomo
Classe energetica
F
IPE
175,00 kWh/m²a

A+

A

B

C

D

E

175,00 kWh/m²a | Classe energetica F

F

G

MAPPA

ANNUNCI SIMILI