Trilocale bilivello di recente costruzione Selva Candida VENDITA

Via Norma Fratelli Parenti - Roma, Zona Casalotti
€ 235.000
  • Trilocale
  • 80 mq
  • 2 bagni

Appartamento in Vendita a Roma

Noi abbiamo la casa per te visita il nostro sito www.immobiliaremarella.it.
Appartamento bilivello in vendita a Roma – Selva Candida, Via Norma Fratelli Parenti | 80 mq con ingresso indipendente e posto auto.
Se stai cercando un appartamento in vendita a Roma Selva Candida, questa è la soluzione ideale. immobiliare Marella propone in vendita un appartamento bilivello di recente costruzione situato in Via Norma Fratelli Parenti, in contesto residenziale tranquillo e immerso nel verde.
L’immobile, con ingresso indipendente, si trova in una elegante palazzina in cortina ed è in ottimo stato, pronto per essere abitato senza necessità di interventi. La tripla esposizione garantisce ambienti luminosi per tutta la giornata.
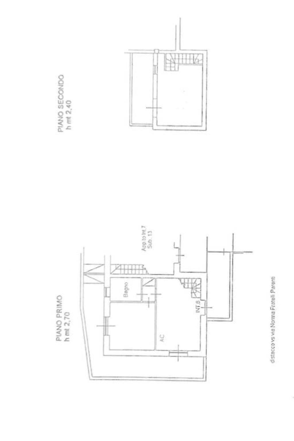
Composizione dell’appartamento: 80 mq suddivisi in primo piano: soggiorno con angolo cottura, cucina su misura inclusa, disimpegno con armadiatura, camera da letto, bagno finestrato. Terrazzo
Secondo piano: seconda camera, secondo bagno. Terrazzo.
Questa casa rappresenta la scelta perfetta per chi desidera acquistare un appartamento moderno a Roma, ideale per coppie o famiglie, in una zona residenziale riservata ma vicina ai principali servizi.
Prezzo: € 235.000
Il Metodo Marella nasce da oltre 30 anni di esperienza nel settore immobiliare e si basa su alcuni principi semplici: informazioni chiare e verificabili visite organizzate con metodo assistenza completa fino al rogito attenzione reale alle esigenze delle persone. Per noi ogni casa è una storia e ogni cliente merita il tempo e la professionalità necessari per fare una scelta importante con serenità. INFORMAZIONI E/O PER VISIONARE L’IMMOBILE PROPOSTO CHIAMACI AL NUMERO 0661560000 ANCHE TRAMITE WHATSAPP 3483210783 O VIENI A TROVARCI IN VIA DI SELVA CANDIDA N. 49.

LEGGI TUTTO

CONDIVIDI SUI SOCIAL

DATI PRINCIPALI

Riferimento
642082
Contratto
Vendita
Tipologia
Appartamento
Superficie
80 mq
Locali
3
Camere da letto
2
Cucina
Angolo cottura
Bagni
2
Piano
Piano terra
Totale piani
3
Box/Posto auto
Singolo

CARATTERISTICHE

Ascensore

COSTI

Prezzo
€ 235.000,00
Spese condominiali
€ 50,00 / mese

EFFICIENZA ENERGETICA

Anno costruzione
2012
Riscaldamento
Autonomo
Classe energetica
C
IPE
175,00 kWh/m²a

A+

A

B

175,00 kWh/m²a | Classe energetica C

C

D

E

F

G

MAPPA

ANNUNCI SIMILI

VENDITA 20
€ 235.000
Appartamento in Vendita a Roma, Zona Casalotti
  • Trilocale
  • 80 mq
  • 2 bagni
VENDITA 20
€ 349.000
Appartamento in Vendita a Roma, Zona Casalotti
  • Più di 5 locali
  • 110 mq
  • 2 bagni
VENDITA 7
€ 190.000
Appartamento in Vendita a Roma, Zona Casalotti
  • Quadrilocale
  • 122 mq
  • 1 bagno
VENDITA 7
€ 190.000
Appartamento in Vendita a Roma, Zona Casalotti
  • Quadrilocale
  • 122 mq
  • 1 bagno
VENDITA 20
€ 279.000
Appartamento in Vendita a Roma, Zona Casalotti
  • Quadrilocale
  • 120 mq
  • 2 bagni