TRILOCALE BILIVELLO CON BALCONI E POSTO AUTO VENDITA

Via Silvio Serra - Roma, Zona Casalotti
€ 209.000
  • Trilocale
  • 75 mq
  • 2 bagni

Appartamento in Vendita a Roma

Rif: R218 - La Tempocasa di Casalotti è lieta di proporre in vendita un accogliente trilocale su due livelli, di circa 75 mq, situato all’interno di un comprensorio ben curato e costruito nel 2010, sito in via Silvio Serra, zona Selva Nera. L’immobile si presenta in buone condizioni interne ed è abitabile fin da subito, perfetto per chi cerca una casa pronta all’uso e in un contesto riservato.

L’accesso all’abitazione avviene tramite un vialetto condominiale posto sul retro del comprensorio, che garantisce un ingresso più discreto e riservato. A pochi passi si trova inoltre un grazioso parco, ideale per famiglie con bambini.

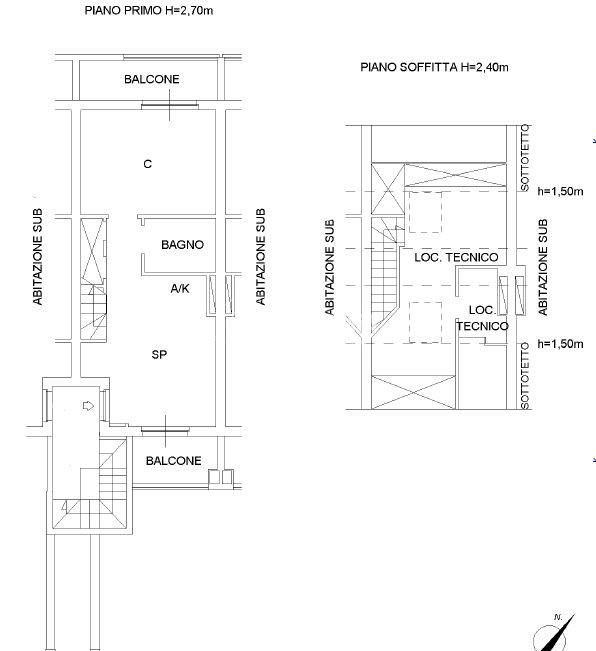
La soluzione, posta al primo piano, è così composta: al piano terra ci accoglie un luminoso soggiorno con angolo cottura, una camera matrimoniale e un bagno cieco. Sullo stesso piano sono presenti due balconi vivibili, uno con accesso dalla camera da letto e uno dal salone. Quest’ultimo dispone degli allacci per l’acqua e della caldaia, rendendo possibile l’allestimento di una comoda zona lavanderia esterna, funzionale e ben separata dagli spazi abitativi.

Sempre al piano terra, un ripostiglio ricavato nel sottoscala offre ulteriore spazio per l’organizzazione domestica. Salendo al piano superiore, leggermente mansardato, troviamo la seconda camera da letto, anch'essa matrimoniale, ed un secondo bagno oltre ad un ulteriore ripostiglio ricavato nella parte più bassa della camera, perfetto per riporre oggetti stagionali o poco usati.

L’immobile è dotato di porta blindata, infissi con doppio vetro, inferriate, zanzariere, riscaldamento autonomo a pavimento e impianto di climatizzazione con split installati nel salone e nelle due camere da letto, per garantire comfort durante tutto l’anno.

A completare la proprietà, un posto auto scoperto di pertinenza. È inoltre disponibile, con trattativa separata, un box auto alla cifra di euro 16.000,00.

Tra i punti di forza dell'immobile, anche le bassissime spese condominiali, pari a circa 28 euro al mese.

Una soluzione ideale per giovani coppie, famiglie o come investimento da mettere a reddito, inserita in un contesto curato e tranquillo.

LEGGI TUTTO

CONDIVIDI SUI SOCIAL

DATI PRINCIPALI

Riferimento
640092
Contratto
Vendita
Tipologia
Appartamento
Superficie
75 mq
Locali
3
Camere da letto
2
Cucina
Angolo cottura
Bagni
2
Piano
1 °
Totale piani
1
Box/Posto auto
Singolo

CARATTERISTICHE

Ascensore

COSTI

Prezzo
€ 209.000,00
Spese condominiali
€ 28,00 / mese

EFFICIENZA ENERGETICA

Stato
Abitabile
Anno costruzione
2010
Riscaldamento
Autonomo
Climatizzazione
Si
Classe energetica
F
IPE
175,00 kWh/m²a

A+

A

B

C

D

E

175,00 kWh/m²a | Classe energetica F

F

G

MAPPA

ANNUNCI SIMILI