TRILOCALE - AMPIO TERRAZZO - VIALE DELLA GRANDE MURAGLIA VENDITA

Viale della Grande Muraglia - Roma, Zona Torrino
€ 349.000
  • Trilocale
  • 77 mq
  • 2 bagni

Appartamento in Vendita a Roma

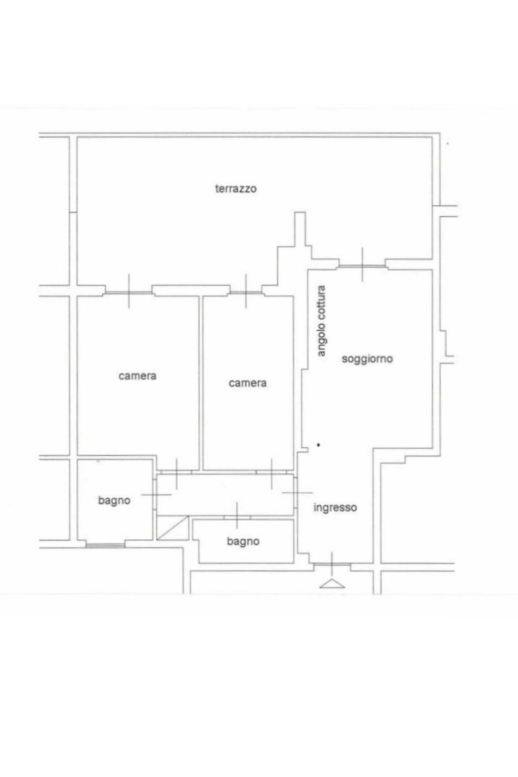
Torrino Nord, in Viale della Grande Muraglia proponiamo in vendita un appartamento trilocale posto al secondo piano in un palazzo in cortina. L'immobile è composto da ingresso, soggiorno con cucina a vista, due camere, due bagni e ampio terrazzo.
Completa la proprietà un posto auto scoperto.

CONDIVIDI SUI SOCIAL

DATI PRINCIPALI

Riferimento
628231
Contratto
Vendita
Tipologia
Appartamento
Superficie
77 mq
Locali
3
Camere da letto
2
Cucina
Angolo cottura
Bagni
2
Piano
2 °
Totale piani
7
Box/Posto auto
Singolo

CARATTERISTICHE

Ascensore

COSTI

Prezzo
€ 349.000,00

EFFICIENZA ENERGETICA

Stato
Abitabile
Anno costruzione
1995
Riscaldamento
Autonomo
Climatizzazione
Si
Classe energetica
F
IPE
100,00 kWh/m²a

A+

A

B

C

D

E

100,00 kWh/m²a | Classe energetica F

F

G

MAPPA

ANNUNCI SIMILI

VENDITA 20
€ 295.000
Appartamento in Vendita a Roma, Zona Torrino
  • Trilocale
  • 81 mq
  • 2 bagni
VENDITA 20
€ 395.000
Appartamento in Vendita a Roma, Zona Torrino
  • Più di 5 locali
  • 140 mq
  • 2 bagni
VENDITA 20
€ 385.000
Appartamento in Vendita a Roma, Zona Torrino
  • Trilocale
  • 79 mq
  • 1 bagno