Trastevere Piazza San Calisto AFFITTO

Piazza di San Calisto - Roma, Zona Trastevere
€ 1.500 mensili
  • Bilocale
  • 90 mq
  • 1 bagno

Appartamento in Affitto a Roma

Durata minima del contratto: 12 mesi.
Non si prendono in considerazione richieste per periodi inferiori.

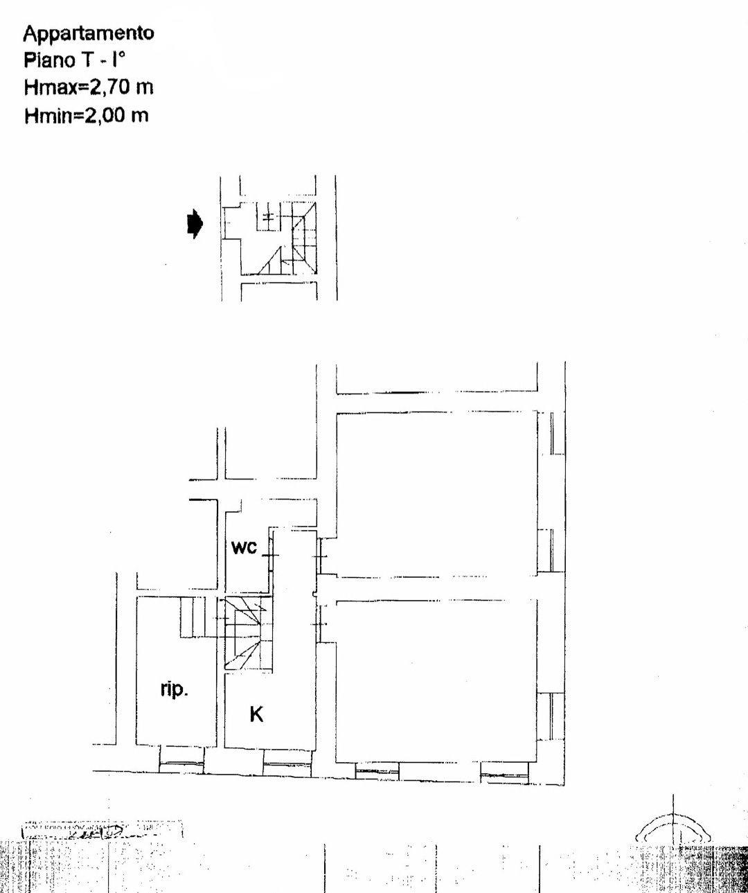
Trastevere Piazza San Calisto: in elegante stabile del 700 posto sull’omonima Piazza, proponiamo un raffinato appartamento di 90 mq circa, completamente e perfettamente arredato con eccellente stile
Posto a primo piano con ingresso indipendente dall'androne del palazzo con scala autonoma, l’ appartamento, al primo piano, si compone di un ingresso, un comodo ed ampio soggiorno con  tripli affacci esterni su Piazza di San Calisto e Via di San Cosimato, una camera da letto padronale, una camera letto ospiti, un ampio servizio ed una cucina completamente attrezzata. Si accede all'appartamento tramite una rampa di scale.
Disponibile per periodi transitori o contratti 3+2. TASSATIVAMENTE NO RICETTIVO.
Solo Clientela Referenziata. Condominio 110€ circa al mese.
Ulteriori informazioni, piante e dettagli all'indirizzo: https://www.studiofori.com/immobiliare/roma-trastevere-affitto-appartamento-piazza-san-calisto/
Si precisa che l’immobile non è destinato ad attività ricettive di alcun genere (B&B, affittacamere, case vacanza o similari). La proprietà esclude espressamente ogni forma di utilizzo a fini turistico-ricettivi. Riteniamo infatti che il crescente proliferare di tali attività, soprattutto nei centri storici, contribuisca a fenomeni di over-tourism con ricadute negative sull’equilibrio sociale, sulla vivibilità dei quartieri e sulla qualità della vita dei residenti.
L’immobile è pertanto proposto esclusivamente per finalità residenziali.
Maggior info contattando lo 0698184453 o 3663613441.

Durata minima del contratto: 12 mesi.
Non si prendono in considerazione richieste per periodi inferiori.

LEGGI TUTTO

CONDIVIDI SUI SOCIAL

DATI PRINCIPALI

Riferimento
635781
Contratto
Affitto
Tipologia
Appartamento
Superficie
90 mq
Locali
2
Camere da letto
2
Cucina
Abitabile
Bagni
1
Piano
1 °
Totale piani
3

CARATTERISTICHE

Ascensore

COSTI

Canone
Affitto € 1.500,00 al mese
Tipo locazione
Transitorio
Spese condominiali
€ 110,00 / mese, non incluse nel canone

EFFICIENZA ENERGETICA

Stato
Ristrutturato
Anno costruzione
1700
Riscaldamento
Autonomo
Classe energetica
G
IPE
175,00 kWh/m²a

A+

A

B

C

D

E

F

175,00 kWh/m²a | Classe energetica G

G

MAPPA

ANNUNCI SIMILI

AFFITTO 10
€ 1.600 mensili
Appartamento in Affitto a Roma, Zona Trastevere
  • Bilocale
  • 65 mq
  • 1 bagno