TOR VERGATA TRILOCALE LOCATO OTTIMO USO INVESTIMENTO VENDITA

Via Giuseppe Macchi 45 - Roma, Frazione Tor Vergata
€ 169.000
  • Trilocale
  • 56 mq
  • 1 bagno

Appartamento in Vendita a Roma

Tipologia: Trilocale

Zona: Tor Vergata (LATO CASILINA- ADIACENTE FERMATA C TORRENOVA)

OTTIMO USO INVESTIMENTO- LOCATO FINO A MARZO 2027

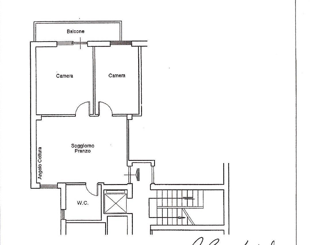
Proponiamo in vendita appartamento posto al piano primo con ascensore di 56 mq,
in stabile oggetto di ristrutturazione totale del 2005.

Al suo interno l’appartamento è suddiviso in soggiorno comodo con angolo cottura, 2 camere, bagno e balcone.

L'immobile verrà consegnato arredato di :

- Cucina escluso il forno
- Cameretta esclusa la scarpiera
- Arredo bagno esclusa la lavatrice
- Aria condizionata predisposta (ci si può accordare al termine della locazione per l’acquisto del macchinario)

TERMOAUTONOMO, CALDAIA NUOVA.
INFISSI IN PVC.

Riferimenti ubicazione:
L’immobile è sito ad un passo dall’università di Tor Vergata e Ptv. Raggiungibili a piedi tutti i servizi di prima necessità . Ben collegato a mezzi diretti per raggiungere la Stazione Anagnina, la Stazione Termini e la linea metro C A 300 m.

Prezzo: €169.000

N. B. Tutte le informazioni ivi contenute, comprese le metrature, sono da intendersi puramente a titolo indicativo e non costituiscono elemento contrattuale.

LEGGI TUTTO

CONDIVIDI SUI SOCIAL

DATI PRINCIPALI

Riferimento
634042
Contratto
Vendita
Tipologia
Appartamento
Superficie
56 mq
Locali
3
Camere da letto
2
Cucina
Angolo cottura
Bagni
1
Piano
1 °
Totale piani
4

CARATTERISTICHE

Ascensore

COSTI

Prezzo
€ 169.000,00

EFFICIENZA ENERGETICA

Stato
Abitabile
Anno costruzione
2005
Riscaldamento
Autonomo
Classe energetica
F
IPE
175,00 kWh/m²a

A+

A

B

C

D

E

175,00 kWh/m²a | Classe energetica F

F

G

MAPPA