Tor San Lorenzo - Appartamento recentemente ristrutturato VENDITA

Via del Falco 24 - Ardea (Roma)
€ 139.000
  • Quadrilocale
  • 121 mq
  • 1 bagno

Appartamento in Vendita a Ardea

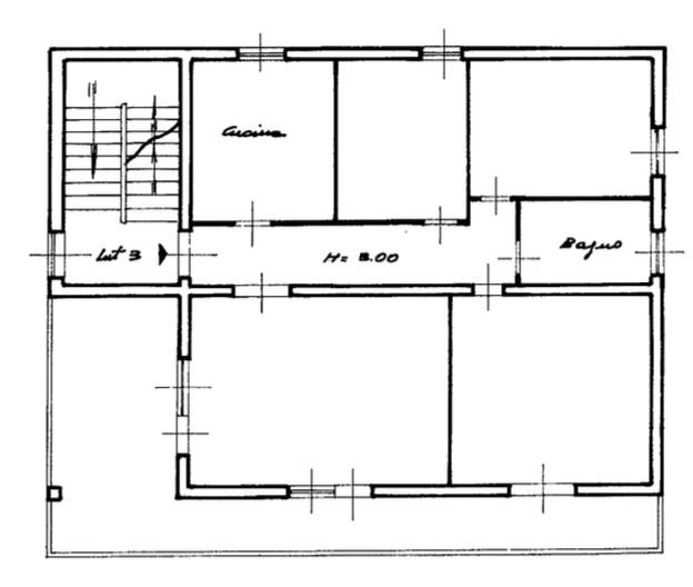
ARDEA - TOR SAN LORENZO CENTRO – VIA DEL FALCO: in posizione strategica, adiacente ai principali servizi, scuole e trasporti pubblici, a circa due chilometri dalla spiaggia, in palazzina recentemente ristrutturata con cappotto termico di soli 3 unità abitative, proponiamo la vendita di un appartamento di ampia metratura, sito al primo piano, con uno splendido terrazzo con gradevole vista aperta verso il mare. L’immobile, recentemente ristrutturato (termine lavori 2024) negli ambienti, negli impianti e nei serramenti, è internamente composto da: ingresso, ampio corridoio, luminoso e spazioso salone di 25 mq con uscita sul terrazzo con gradevole vista aperta, cucina abitabile, tre camere da letto (una grande matrimoniale di 18 mq e due doppie da 12 mq cadauna) e bagno con doccia. L’appartamento, che si presenta in perfette condizioni grazie alla sua recente ristrutturazione e le sue rifiniture, è dotato di infissi nuovi, di portone blindato, serrande automatizzate impianto di refrigeramento e di riscaldamento e di impianto fotovoltaico. La sua esposizione e la posizione sopra elevata offrono luminosità, ariosità e massima privacy. L’ottima distribuzione degli spazi interni, la fruibilità del terrazzo, la vicinanza a tutti i servizi e la breve distanza dal mare, rendono questa soluzione unica nel suo genere ed ideale per tutte le famiglie, sia come soluzione abitativa sia per trascorrervi le vacanze in completo relax e come uso investimento con rendita certa.
Le immagini presenti nell'annuncio sono a scopo illustrativo. Il mobilio e arredo interno ed esterno non sono da considerarsi compresi nel prezzo di vendita. E' possibile visionare l'immobile tutti i giorni previo appuntamento telefonico. La Società Case Elite offre un servizio completo ed all'avanguardia per tutto ciò che riguarda la compravendita, la locazione ed investimenti immobiliari. Valutazioni gratuite su tutto il territorio di Roma e Provincia. Consulenze tecnico - legali, assistenza sino al rogito notarile, consulenze gratuite per mutui e prestiti personali con staff di esperienza ventennale nel settore Competenza, professionalità e passione al vostro servizio. Rivolgersi a "CASE ELITE" tel: 3247770265 - mail: info@caseelite.it visita il nostro sito www.caseelite.com

LEGGI TUTTO

CONDIVIDI SUI SOCIAL

DATI PRINCIPALI

Riferimento
632800
Contratto
Vendita
Tipologia
Appartamento
Superficie
121 mq
Locali
4
Camere da letto
3
Cucina
Abitabile
Bagni
1
Piano
1 °
Totale piani
2

CARATTERISTICHE

Ascensore

COSTI

Prezzo
€ 139.000,00

EFFICIENZA ENERGETICA

Stato
Ristrutturato
Climatizzazione
Si
Classe energetica
A1
IPE
351,00 kWh/m²a

A4

A3

A2

351,00 kWh/m²a | Classe energetica A1

A1

B

C

D

E

F

G

MAPPA

ANNUNCI SIMILI

VENDITA 11
€ 51.800
Appartamento in Vendita a Ardea (Roma)
  • Più di 5 locali
  • 47 mq
  • 1 bagno
VENDITA 20
€ 250.000
Appartamento in Vendita a Ardea (Roma)
  • Quadrilocale
  • 70 mq
  • 2 bagni
VENDITA 20
€ 110.000
Appartamento in Vendita a Ardea (Roma)
  • Quadrilocale
  • 102 mq
  • 2 bagni
VENDITA 20
€ 134.000
Appartamento in Vendita a Ardea (Roma)
  • Quadrilocale
  • 90 mq
  • 1 bagno
VENDITA 20
€ 145.000
Appartamento in Vendita a Ardea (Roma)
  • Più di 5 locali
  • 80 mq
  • 2 bagni