Tomba di Nerone/Cassia: Ristrutturato, posto auto e cantina VENDITA

Via Vibio Mariano - Roma, Zona Tomba Di Nerone
€ 345.000
  • Quadrilocale
  • 104 mq
  • 2 bagni

Appartamento in Vendita a Roma

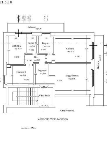
In una palazzina signorile situata in Via Vibio Mariano, nel cuore del quartiere Tomba di Nerone, proponiamo in vendita un luminoso appartamento posto al secondo piano (senza ascensore), valorizzato da una tripla esposizione e affacci aperti e piacevoli.

L’immobile è stato completamente ristrutturato con finiture di alta qualità e una progettazione curata in ogni dettaglio, pensata per ottimizzare gli spazi e offrire un’abitazione comoda, elegante e funzionale per una famiglia.

L’ingresso si apre su un ampio salone con cucina a vista su misura, perfettamente integrata e con accesso al primo balcone vivibile. La zona notte comprende una spaziosa camera matrimoniale, due camere per ragazzi (una con accesso al secondo balcone), doppi servizi (entrambi con finestra), oltre a una razionale distribuzione degli ambienti che garantisce comfort e privacy.

Punti di forza dell’immobile:

• Completamente ristrutturato con materiali di pregio

• Infissi di ultima generazione

• Impianti certificati a norma di legge

• Riscaldamento autonomo

• Climatizzazione in ogni ambiente

• Arredi su misura inclusi

• Posto auto coperto in garage condominiale

• Cantina di proprietà
Perché scegliere Via Vibio Mariano?

La zona di Tomba di Nerone è molto apprezzata per la sua tranquillità residenziale, la comodità nei collegamenti (ottimamente servita dai mezzi pubblici e vicina alle principali arterie stradali), e per la presenza di tutti i servizi essenziali: scuole, supermercati, farmacie, centri sportivi, oltre alla vicinanza agli ospedali Villa San Pietro e Sant’Andrea. Il centro di Roma è facilmente raggiungibile in pochi minuti.

Una soluzione moderna, accogliente e pronta da vivere, ideale per chi cerca qualità, praticità e comfort.
Chiama per fissare il tuo appuntamento: 3806820623

LEGGI TUTTO

CONDIVIDI SUI SOCIAL

DATI PRINCIPALI

Riferimento
628095
Contratto
Vendita
Tipologia
Appartamento
Superficie
104 mq
Locali
4
Camere da letto
3
Cucina
Angolo cottura
Bagni
2
Piano
2 °
Totale piani
3
Box/Posto auto
Singolo

CARATTERISTICHE

Ascensore

COSTI

Prezzo
€ 345.000,00
Spese condominiali
€ 35,00 / mese

EFFICIENZA ENERGETICA

Stato
Ristrutturato
Anno costruzione
1965
Riscaldamento
Autonomo
Climatizzazione
Si
Classe energetica
F
IPE
95,00 kWh/m²a

A+

A

B

C

D

E

95,00 kWh/m²a | Classe energetica F

F

G

MAPPA

ANNUNCI SIMILI

VENDITA 20
€ 395.000
Appartamento in Vendita a Roma, Zona Tomba Di Nerone
  • Quadrilocale
  • 145 mq
  • 2 bagni
VENDITA 20
€ 480.000
Appartamento in Vendita a Roma, Zona Tomba Di Nerone
  • Quadrilocale
  • 150 mq
  • 2 bagni
VENDITA 20
€ 480.000
Appartamento in Vendita a Roma, Zona Tomba Di Nerone
  • Quadrilocale
  • 150 mq
  • 2 bagni
VENDITA 20
€ 480.000
Appartamento in Vendita a Roma, Zona Tomba Di Nerone
  • Quadrilocale
  • 158 mq
  • 2 bagni