Super attico Vigna Clara in locazione AFFITTO

Via degli Orti della Farnesina - Roma (Roma)
€ 1.800 mensili
  • Trilocale
  • 115 mq
  • 2 bagni

Appartamento in Affitto a Roma

La Fleming Real Estate propone in locazione un super attico arredato panoramicissimo con vista su Monte mario, Piazza Venezia, S. Pietro Ponte Milvio, ministero Esteri, etc.
Lo stabile è dotato di ascensore che staziona al piano inferiore perciò bisogna fare un piano a piedi per accedere all’appartamento.
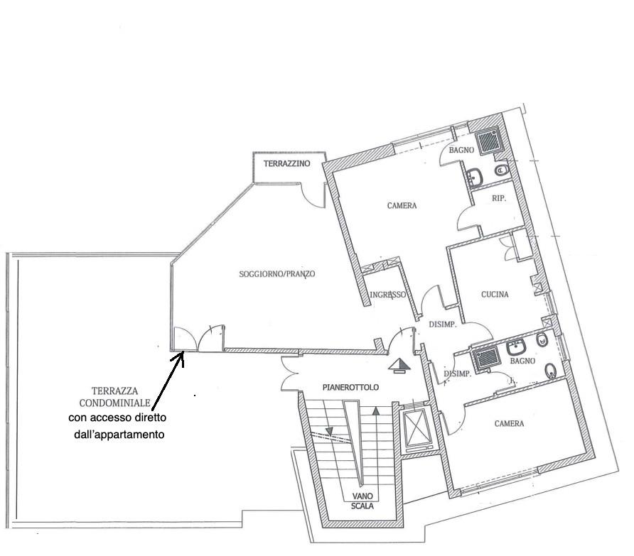
L’immobile è composto da: ingresso, salone, due camere, cucina abitabile, doppi servizi.
Il contesto, la panoramicità, e l’esposizione, rendono particolarmente interessante questa proposta.
Il contratto ammesso è un 3+2, inoltre si richiede una fideiussione bancaria del valore di € 21.600,00 a garanzia del contratto di locazione.
Per appuntamenti ed informazioni potete rivolgervi all'agenzia immobiliare Fleming Real Estate 06.36.30.31.16 .

I nostri uffici si trovano in Via F. Saverio Nitti 60-62 – 00191 Roma, e sono aperti il lunedì dalle 9,30 alle 13 e dalle 15.30 alle 19.30 dal giovedì al venerdì dalle 9 alle 13 e dalle 15.30 alle 19.30 - il sabato dalle 9,30 alle 13,00 di Fronte alla scuola Nitti con due vetrine su strada.

IMPORTANTE: PER POTER DARE UN MIGLIORE SERVIZIO GLI UTENTI SONO PREGATI DI FISSARE GLI APPUNTAMENTI TELEFONICAMENTE E NON VIA MAIL GRAZIE.
Per appuntamenti ed informazioni potete rivolgervi all'agenzia immobiliare Fleming real estate - 06.36.30.31.16. I nostri uffici si trovano in Via F. Saverio Nitti 60-62 – 00191 Roma, e sono aperti il lunedì dalle 10:00 alle 13 e dalle 15.30 alle 19.30 dal giovedì al venerdì dalle 9:30 alle 13 e dalle 15.30 alle 19.30 - il sabato dalle 10:00 alle 13,00. Le informazioni nella scheda sono a titolo informativo e non rappresentano condizioni contrattuali. Per info: Fleming real estate - Via F. S. Nitti n. 60/62 - Tel. 06.36.30.31.16 r.a.

LEGGI TUTTO

CONDIVIDI SUI SOCIAL

DATI PRINCIPALI

Riferimento
635291
Contratto
Affitto
Tipologia
Appartamento
Superficie
115 mq
Locali
3
Camere da letto
2
Cucina
Abitabile
Bagni
2
Piano
6 °
Totale piani
6

CARATTERISTICHE

Ascensore

COSTI

Canone
Affitto € 1.800,00 al mese
Tipo locazione
3+2 concordato
Spese condominiali
€ 100,00 / mese, non incluse nel canone

EFFICIENZA ENERGETICA

Stato
Abitabile
Anno costruzione
1960
Riscaldamento
Autonomo
Climatizzazione
Si
Classe energetica
G
IPE
351,00 kWh/m²a

A+

A

B

C

D

E

F

351,00 kWh/m²a | Classe energetica G

G

MAPPA

ANNUNCI SIMILI

AFFITTO 2
€ 2.100 mensili
Appartamento in Affitto a Roma (Roma)
  • Più di 5 locali
  • 145 mq
  • 3 bagni
AFFITTO 20
€ 1.350 mensili
Appartamento in Affitto a Roma (Roma)
  • Più di 5 locali
  • 123 mq
  • 2 bagni
AFFITTO 20
€ 1.500 mensili
Appartamento in Affitto a Roma (Roma)
  • Trilocale
  • 76 mq
  • 2 bagni