SPLENDIDO TRILOCALE IN VIA DEGLI AMMIRAGLI VENDITA

Viale degli Ammiragli - Roma (Roma)
€ 600.000
  • Trilocale
  • 115 mq
  • 1 bagno

Appartamento in Vendita a Roma

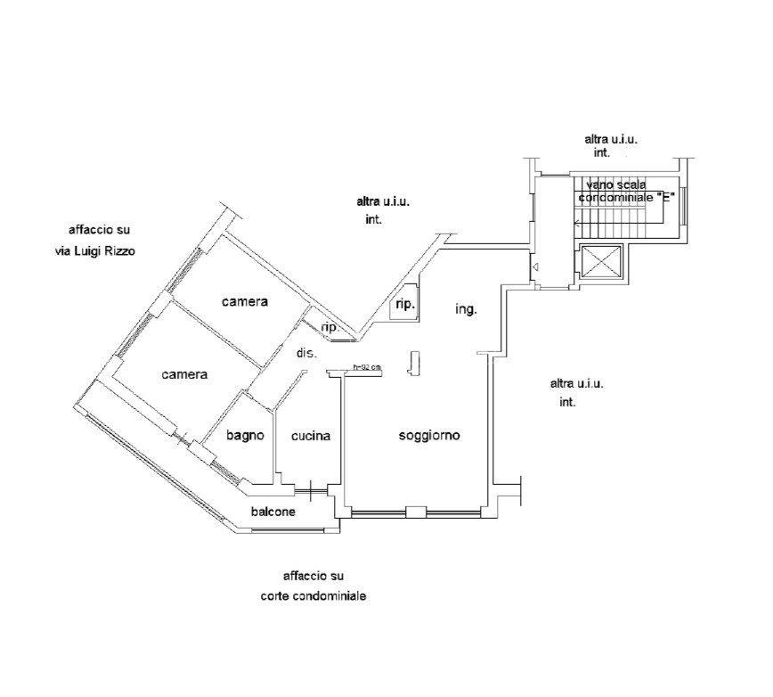
Rif: AMM600 - Tempocasa Roma Prati propone in vendita uno splendido trilocale situato al quarto piano di una palazzina tranquilla in Via degli Ammiragli, nel cuore di un contesto residenziale tra i più richiesti della zona.

L’appartamento, di circa 105 mq, si apre su un ampio ingresso che accompagna verso un soggiorno spazioso e particolarmente luminoso, impreziosito da grandi finestre che donano luce naturale agli ambienti. La cucina abitabile, comoda e ben organizzata, dispone di porte finestre che conducono a un piacevole balcone vivibile, con affaccio riservato sulla tranquilla Via Pietro De Cristofaro e sul verde circostante, ideale per godersi momenti di relax lontano dal caos cittadino.

La zona notte è ben separata e offre una cameretta ampia e funzionale, un bagno finestrato completo e una camera matrimoniale luminosa e accogliente. L’immobile si presenta in ottime condizioni interne, dotato di infissi in PVC con doppio vetro, aria condizionata negli ambienti e parquet nella zona giorno e nel corridoio, elementi che contribuiscono a creare un ambiente caldo e confortevole.

Grazie al piano alto e alla favorevole esposizione angolare, la casa gode di un’eccellente luminosità durante tutto l’arco della giornata. Pur trovandosi in una zona centrale e ricca di servizi, l’affaccio sul verde garantisce tranquillità e silenzio, rendendo l’immobile particolarmente piacevole da vivere.

La posizione è uno dei punti di forza: a pochi passi da Via Cipro e dalla fermata metro, con tutti i principali servizi, attività commerciali e collegamenti facilmente raggiungibili. Nelle immediate vicinanze si trova anche Monte Ciocci, celebre per offrire una delle viste panoramiche più affascinanti di Roma.

Una soluzione ideale per chi cerca un’abitazione centrale, luminosa e silenziosa, perfetta sia come prima casa che come investimento

LEGGI TUTTO

CONDIVIDI SUI SOCIAL

DATI PRINCIPALI

Riferimento
630929
Contratto
Vendita
Tipologia
Appartamento
Superficie
115 mq
Locali
3
Camere da letto
2
Cucina
Abitabile
Bagni
1
Piano
4 °
Totale piani
7

CARATTERISTICHE

Ascensore

COSTI

Prezzo
€ 600.000,00
Spese condominiali
€ 70,00 / mese

EFFICIENZA ENERGETICA

Stato
Abitabile
Anno costruzione
1960
Riscaldamento
Centralizzato
Classe energetica
G
IPE
175,00 kWh/m²a

A+

A

B

C

D

E

F

175,00 kWh/m²a | Classe energetica G

G

MAPPA

ANNUNCI SIMILI

VENDITA 20
€ 550.000
Appartamento in Vendita a Roma (Roma)
  • Trilocale
  • 102 mq
  • 2 bagni
VENDITA 20
€ 530.000
Appartamento in Vendita a Roma (Roma)
  • Quadrilocale
  • 120 mq
  • 2 bagni
VENDITA 20
€ 519.000
Appartamento in Vendita a Roma (Roma)
  • Quadrilocale
  • 120 mq
  • 2 bagni
VENDITA 20
€ 535.000
Appartamento in Vendita a Roma (Roma)
  • Quadrilocale
  • 125 mq
  • 2 bagni
VENDITA 20
€ 449.000
Appartamento in Vendita a Roma (Roma)
  • Quadrilocale
  • 105 mq
  • 2 bagni
VENDITA 20
€ 495.000
Appartamento in Vendita a Roma (Roma)
  • Quadrilocale
  • 120 mq
  • 2 bagni