SPLENDIDO APPARTAMENTO RISTRUTTURATO VENDITA

Via Numitore 5 - Albano Laziale (Roma)
€ 179.000
  • Trilocale
  • 85 mq
  • 1 bagno

Appartamento in Vendita a Albano Laziale

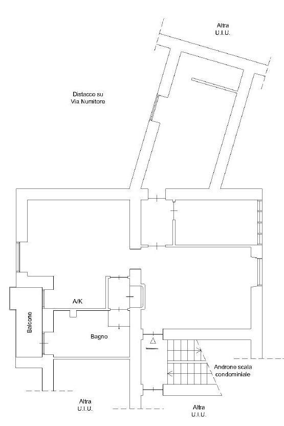
Proponiamo la vendita di un appartamento situato nella zona di Villa Ferrajoli e più precisamente in Via Numitore.

L'immobile posto al primo piano è composto da un luminoso salone dal quale accediamo alla cucina abitabile, passando per il disimpegno entriamo nella camera matrimoniale dotata di un'ampia cabina armadio soppalcata e alla cameretta, troviamo inoltre uno spazioso bagno finestrato con vasca dal quale si accede ad un balcone con affaccio direttamente sulla via di ingresso.

L'appartamento è totalmente e finemente ristrutturato e non necessita di interventi

La sua posizione dominante e la sua ottima esposizione lo rendono molto luminoso durante tutto l'arco della giornata.

Non perdere l'occasione di visitare un immobile posto in una delle zone più ricercate di Albano!

Per ulteriori informazioni o per fissare il tuo appuntamento contatta il n. 06/9348045. Metacasa Servizi Immobiliari opera, per i propri clienti i migliori immobili su tutta la zona dei Castelli Romani e Roma effettuando una ricerca specifica secondo i criteri favoriti del cliente stesso seguendolo nelle varie fasi di vendita, ricerca, acquisto.
La nostra agenzia mette a disposizione dei propri clienti un servizio di consulenza finanziaria per aiutarli a trovare la soluzione migliore nell' ambito bancario dei mutui. La nostra agenzia è in grado di proporre soluzioni "su misura" per ogni realtà individuale, imprenditoriale e professionale, affiancando le imprese che affrontano il "mercato globale" con un'ampia gamma di servizi, mirata a garantire lo sviluppo del loro business.
L'agenzia Metacasa Servizi Immobiliari è aperta la mattina dal lunedì al venerdì dalle 9:00 alle 13:00, il pomeriggio dalle 15:30 alle 19:00.

LEGGI TUTTO

CONDIVIDI SUI SOCIAL

DATI PRINCIPALI

Riferimento
639976
Contratto
Vendita
Tipologia
Appartamento
Superficie
85 mq
Locali
3
Camere da letto
2
Cucina
Abitabile
Bagni
1
Piano
1 °
Totale piani
2

CARATTERISTICHE

Ascensore

COSTI

Prezzo
€ 179.000,00
Spese condominiali
€ 30,00 / mese

EFFICIENZA ENERGETICA

Stato
Ristrutturato
Anno costruzione
1960
Riscaldamento
Autonomo
Climatizzazione
Si
Classe energetica
G
IPE
351,00 kWh/m²a

A+

A

B

C

D

E

F

351,00 kWh/m²a | Classe energetica G

G

MAPPA

ANNUNCI SIMILI

VENDITA 20
€ 189.000
Appartamento in Vendita a Albano Laziale (Roma)
  • Quadrilocale
  • 122 mq
  • 1 bagno
VENDITA 20
€ 229.000
Appartamento in Vendita a Albano Laziale (Roma)
  • Più di 5 locali
  • 142 mq
  • 1 bagno
VENDITA 20
€ 205.000
Appartamento in Vendita a Albano Laziale (Roma)
  • Quadrilocale
  • 125 mq
  • 2 bagni
VENDITA 20
€ 258.000
Appartamento in Vendita a Albano Laziale (Roma)
  • Quadrilocale
  • 115 mq
  • 2 bagni
VENDITA 18
€ 138.000
Appartamento in Vendita a Albano Laziale (Roma)
  • Quadrilocale
  • 70 mq
  • 2 bagni