S534 - TRILOCALE COMPLETAMENTE RISTRUTTURATO VENDITA

Via Lombardia 1A - Guidonia Montecelio (Roma)
€ 169.000
  • Trilocale
  • 85 mq
  • 1 bagno

Appartamento in Vendita a Guidonia Montecelio

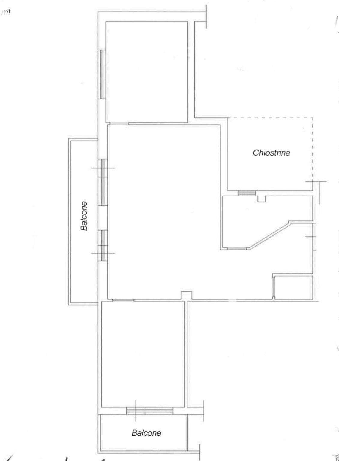
Proponiamo la vendita di un appartamento di circa 85 mq calpestabili interni, ubicato vicino ai principali servizi raggiungibili a piedi, dalla fermata dell'autobus, dalla stazione ferroviaria di Villalba e più precisamente in Via Lombardia.
L'immobile è posto al piano rialzato di una piccola palazzina in cortina di poche unità abitative ed è collocato in un contesto tranquillo e residenziale.
L’unità immobiliare, completamente ristrutturata nel 2025 con rifacimento totale degli impianti e degli infissi, si presenta in condizioni pari al nuovo e si compone di un comodo ingresso che conduce al soggiorno doppio con cucina a vista.
L'ambiente appena descritto risulta essere particolarmente luminoso grazie alla presenza di porte finestre che danno accesso al primo spazio esterno composta da un balcone con affaccio libero e panoramico.

Nella zona notte si trovano due spaziose camere matrimoniali, in una delle quali è presente il secondo balcone al uso esclusivo. A completare la proprietà un bagno con box doccia ed un pratico e funzionale locale adibito a lavanderia e ripostiglio.
La disposizione degli ambienti e la metratura offre inoltre la possibilità di modificare facilmente gli spazi interni in base alle proprie esigenze abitative.
PREZZO RICHIESTO : 169.000€

LEGGI TUTTO

CONDIVIDI SUI SOCIAL

DATI PRINCIPALI

Riferimento
631564
Contratto
Vendita
Tipologia
Appartamento
Superficie
85 mq
Locali
3
Camere da letto
2
Cucina
A vista
Bagni
1
Piano
Piano rialzato
Totale piani
3

CARATTERISTICHE

Ascensore

COSTI

Prezzo
€ 169.000,00
Spese condominiali
€ 30,00 / mese

EFFICIENZA ENERGETICA

Stato
Ristrutturato
Anno costruzione
1970
Riscaldamento
Autonomo
Climatizzazione
Si
Classe energetica
D
IPE
351,00 kWh/m²a

A+

A

B

C

351,00 kWh/m²a | Classe energetica D

D

E

F

G

MAPPA

ANNUNCI SIMILI

VENDITA 16
€ 139.000
Appartamento in Vendita a Guidonia Montecelio (Roma)
  • Trilocale
  • 70 mq
  • 1 bagno
VENDITA 19
€ 99.000
Appartamento in Vendita a Guidonia Montecelio (Roma)
  • Trilocale
  • 75 mq
  • 1 bagno