Raffinato trilocale nuovo chiavi in mano VENDITA

Via dei Dauni - Roma, Zona San Lorenzo
€ 348.000
  • Trilocale
  • 70 mq
  • 1 bagno

Appartamento in Vendita a Roma

Nel rinomato quartiere San Lorenzo, a pochi passi da Piazza dei Siculi, all'interno di un signorile stabile d'epoca in ottimo stato risalente agli anni '20 del XIX Secolo facente parte dello storico complesso del Condominio La Risorgente e dotato di servizio di portineria ed ampio cortile interno, proponiamo la vendita di un raffinato trilocale completamente nuovo consegnato chiavi in mano in quanto oggetto di una totale e completa ristrutturazione, anche con interventi di efficientamento energetico.

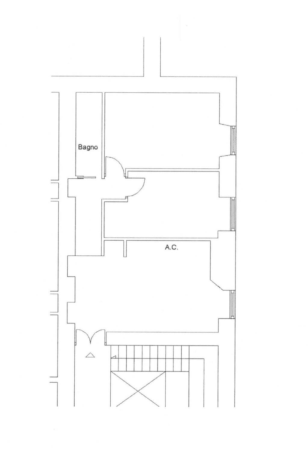
L’immobile è così composto: accedendo si è accolti nell’ampio soggiorno che ospita al suo interno la zona pranzo e la cucina a vista completa di tutti gli elettrodomestici; la zona notte, riservata e funzionalmente divisa dalla zona giorno, si compone di due camere matrimoniali ed un utile disimpegno; è presente un comodo servizio, dotato di ampio box doccia walk-in.

L’appartamento, che gode di un silenzioso affaccio all’interno dell’ampio cortile condominiale, risulta anche luminoso grazie all’ampiezza delle finestre e alla vista in un giardino curato e molto verde.
Nell’immobile è in via di ultimazione una totale ristrutturazione da zero con utilizzo di pregevoli finiture che hanno conferito uno charme moderno dal gusto raffinato. L'immobile vede una ristrutturazione totale in tutte le sue parti; la pavimentazione degli ambienti è realizzata in parquet in rovere; le porte interne laccate di colore bianco donano un ulteriore tocco di eleganza e luminosità.
In fase progettuale particolare attenzione è stata posta anche agli aspetti di efficientamento energetico: con i nuovi infissi in pvc con doppio vetro e l’impianto autonomo di riscaldamento e condizionamento d’aria con moderni splitter inverter che affiancano il riscaldamento centralizzato con valvole individuali su ogni radiatore si è voluto implementare il comfort dell’immobile garantendo al tempo stesso il forte contenimento dei consumi energetici.

Inoltre sono stati scelti con cura i singoli dettagli interni dell’immobile ed ogni spazio è stato valorizzato per offrire la massima vivibilità. Tutti gli impianti dell’immobile saranno dotati di certificazioni a norma e, per garantire la sicurezza, l’appartamento è dotato di un portoncino blindato con cilindro europeo.

L’immobile viene venduto completo della certificazione di tutti gli impianti e della Certificazione di Agibilità ed è in corso di imminente ultimazione.

L'immobile è infine posizionato strategicamente nel cuore di San Lorenzo, a pochi passi dalla vicina Università di Roma La Sapienza, in una zona caratterizzata dalla presenza di tutti i servizi primari ed ottimamente servita dalla rete dei mezzi di trasporto che lo collegano al Centro Storico della città ed alle principali arterie della viabilità urbana.

Per appuntamenti ed informazioni: Agenzia Gabetti Corso Italia 06 8413461 - rmcorsoitalia@******
I nostri uffici si trovano in Corso d'Italia 93 – 00198 Roma, e sono aperti dal lunedì al venerdì dalle 9 alle 13 e dalle 15.30 alle 19.30 - il sabato dalle 9 alle 13.
Ci occupiamo da anni della vendita e della locazione di tutti le tipologie di immobili.

La Gabetti con oltre settant’anni di attività è l’unico Full Service Provider per il sistema immobiliare. Offriamo consulenza in tutti i settori Real Estate per soddisfare al meglio i nostri clienti.
Il nostro sistema organizzativo si fonda sulle migliori competenze del mercato immobiliare e siamo presenti in tutta Italia con la nostra rete di oltre 700 agenzie.
Siamo a disposizione per una valutazione reale, gratuita e senza impegno del Vostro immobile, non esitate a contattarci.

LEGGI TUTTO

CONDIVIDI SUI SOCIAL

DATI PRINCIPALI

Riferimento
631358
Contratto
Vendita
Tipologia
Appartamento
Superficie
70 mq
Locali
3
Camere da letto
2
Cucina
A vista
Bagni
1
Piano
1 °
Totale piani
5

CARATTERISTICHE

Ascensore

COSTI

Prezzo
€ 348.000,00
Spese condominiali
€ 70,00 / mese

EFFICIENZA ENERGETICA

Stato
Ristrutturato
Anno costruzione
1920
Riscaldamento
Centralizzato
Climatizzazione
Si
Classe energetica
D
IPE
351,00 kWh/m²a

A+

A

B

C

351,00 kWh/m²a | Classe energetica D

D

E

F

G

MAPPA

ANNUNCI SIMILI

VENDITA 20
€ 679.000
Appartamento in Vendita a Roma, Zona San Lorenzo
  • Più di 5 locali
  • 121 mq
  • 2 bagni
VENDITA 15
€ 595.000
Appartamento in Vendita a Roma, Zona San Lorenzo
  • Trilocale
  • 105 mq
  • 1 bagno
VENDITA 20
€ 495.000
Appartamento in Vendita a Roma, Zona San Lorenzo
  • Quadrilocale
  • 100 mq
  • 2 bagni
VENDITA 20
€ 529.000
Appartamento in Vendita a Roma, Zona San Lorenzo
  • Trilocale
  • 90 mq
  • 2 bagni
VENDITA
€ 615.000
Appartamento in Vendita a Roma, Zona San Lorenzo
  • Quadrilocale
  • 166 mq
  • 3 bagni
VENDITA 20
€ 260.000
Appartamento in Vendita a Roma, Zona San Lorenzo
  • Trilocale
  • 50 mq
  • 1 bagno
VENDITA 20
€ 260.000
Appartamento in Vendita a Roma, Zona San Lorenzo
  • Trilocale
  • 88 mq
  • 1 bagno