Quadrilocale Viale Cesare Pavese VENDITA

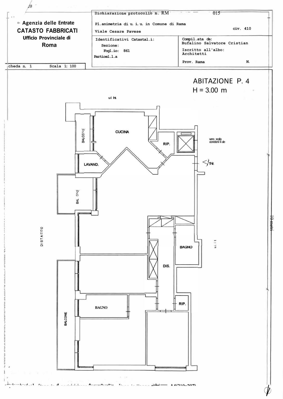
Viale Cesare Pavese 410 - Roma (Roma)
€ 680.000
  • Quadrilocale
  • 159 mq
  • 2 bagni

Appartamento in Vendita a Roma

Appartamento in Vendita - Cesare Pavese n.410, adiacente l'Eur.

Appartamento di 150 mq situato al 4° piano, perfetto per chi cerca spazio e comfort. Composto da doppio salone luminoso con terrazzino, 3 camere da letto, di cui due con balcone. La cucina abitabile, con armadio a muro e lavanderia, servita dal proprio balcone.

L'immobile, ristrutturato alcuni anni fa e in ottime condizioni, presenta armadi a muro in legno pregiato lungo il corridoio della zona notte, una libreria con angolo ufficio e scrivania nel salone, e un elegante pavimento in parquet di rovere di 33cm. Infissi con doppio vetro e condizionatori in ogni ambiente. Acqua calda centralizzata.


L'esposizione a sud garantisce una luminosità naturale che rende gli ambienti ancora più accoglienti.

Situato in una zona tranquilla con affacci sul parco, l'appartamento è dotato di doppi servizi. Inoltre, il box auto nel garage condominiale è incluso nel prezzo. Il servizio di portineria attivo per tutta la giornata, anche il sabato mattina, aggiunge un ulteriore valore a questa proposta. Libero al rogito, con disdetta del conduttore al 20 marzo 2026.

LEGGI TUTTO

CONDIVIDI SUI SOCIAL

DATI PRINCIPALI

Riferimento
630203
Contratto
Vendita
Tipologia
Appartamento
Superficie
159 mq
Locali
4
Camere da letto
3
Cucina
Abitabile
Bagni
2
Piano
4 °
Totale piani
6
Box/Posto auto
Singolo

CARATTERISTICHE

Ascensore

COSTI

Prezzo
€ 680.000,00
Spese condominiali
€ 300,00 / mese

EFFICIENZA ENERGETICA

Stato
Abitabile
Anno costruzione
1960
Riscaldamento
Centralizzato
Climatizzazione
Si
Classe energetica
E
IPE
161,58 kWh/m²a

A+

A

B

C

D

161,58 kWh/m²a | Classe energetica E

E

F

G

MAPPA

ANNUNCI SIMILI

VENDITA 20
€ 510.000
Appartamento in Vendita a Roma (Roma)
  • Quadrilocale
  • 155 mq
  • 2 bagni
VENDITA 20
€ 489.000
Appartamento in Vendita a Roma (Roma)
  • Quadrilocale
  • 155 mq
  • 2 bagni
VENDITA 19
€ 584.000

EUR

Appartamento in Vendita a Roma (Roma)
  • Più di 5 locali
  • 160 mq
  • 3 bagni
VENDITA 18
€ 574.000
Appartamento in Vendita a Roma (Roma)
  • Quadrilocale
  • 150 mq
  • 3 bagni
VENDITA 20
€ 419.000
Appartamento in Vendita a Roma (Roma)
  • Quadrilocale
  • 144 mq
  • 2 bagni
VENDITA 20
€ 419.000
Appartamento in Vendita a Roma (Roma)
  • Quadrilocale
  • 144 mq
  • 2 bagni