QUADRILOCALE VIA MADIGNANO VENDITA

Via Madignano - Roma, Zona Valle Muricana
€ 189.000
  • Trilocale
  • 122 mq
  • 1 bagno

Appartamento in Vendita a Roma

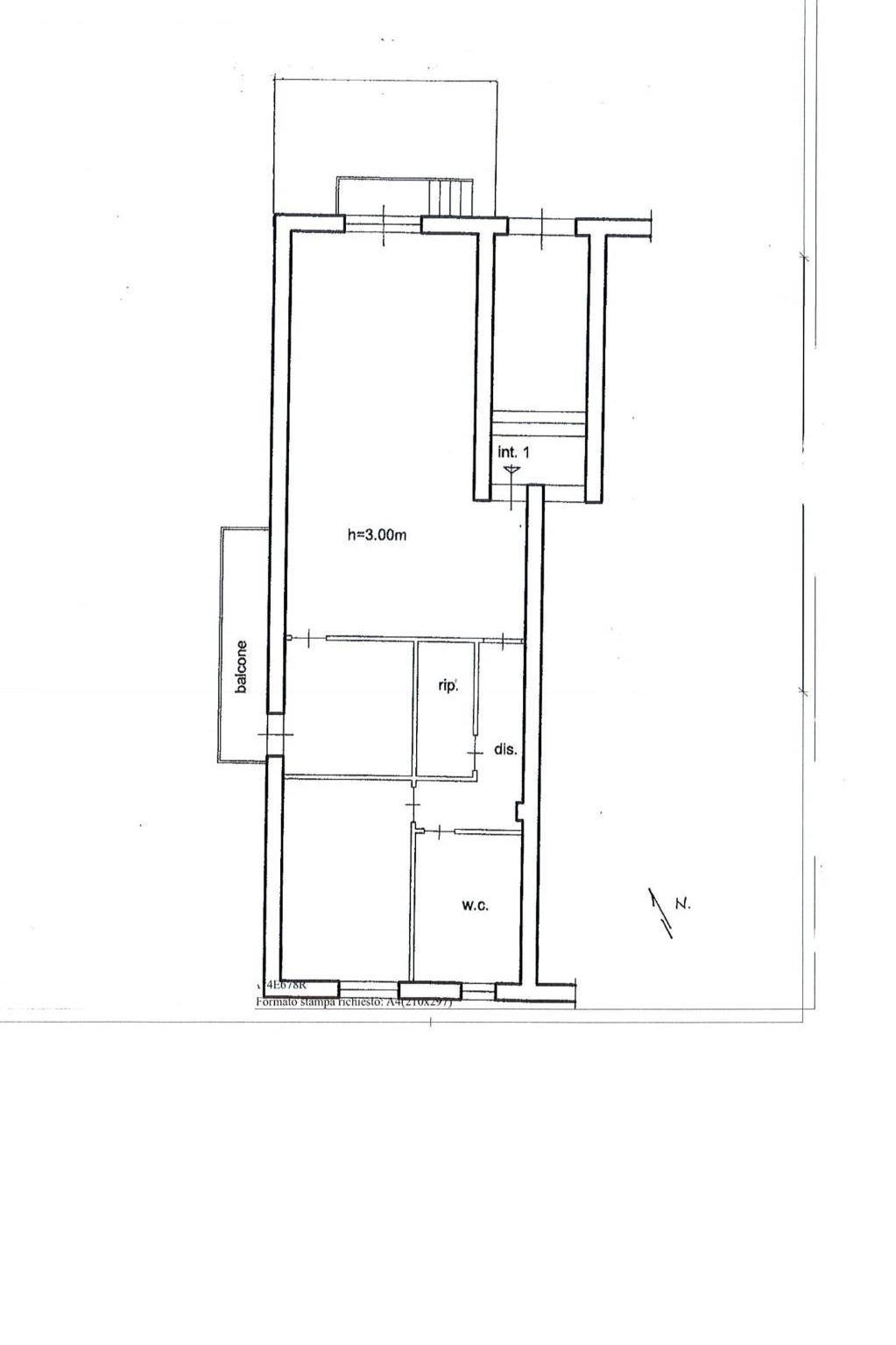
In Via Madignano proponiamo in vendita un ampio trilocale di 90 mq interni con 100 mq di terrazzo. L'immobile si trova in una palazzina di sole due unità, senza spese condominiali, garantendo tranquillità e indipendenza. È composto da salone doppio con cucina a vista, due camere da letto, un bagno e ampio ripostiglio. Gode di una tripla esposizione che assicura ottima luminosità per tutto l'arco della giornata. Ristrutturato completamente sette anni fa con finiture di qualità. Completa la proprietà un giardino pavimentato di circa 15 mq, un comodo balcone a livello e un ampio terrazzo al piano sovrastante l'abitazione, di proprieatà esclusiva, accessoriato di barbeque e dotato di predisposizione per impianti elettrici e idrici, ideale per realizzare una veranda o uno spazio esterno attrezzato. Zona residenziale tranquilla, ben collegata e vicina ai principali servizi. Per maggiori informazioni o per fissare un appuntamento, contattaci subito. Siamo a disposizione per fornirti tutti i dettagli e accompagnarti nella visita dell'immobile. INVENTUM IMMOBILIARE ha una conoscenza approfondita del mercato immobiliare di tutte le zone di Roma, i nostri consulenti sono a disposizione per valutazioni professionali gratuite del Vostro immobile attraverso una individuazione reale del valore di mercato dell'immobile, lavoriamo con una vasta banca dati di clienti e richieste, curiamo personalmente una campagna pubblicitaria accurata e mirata, i nostri immobili vengono condivisi attraverso una piattaforma MLS con tutte le altre agenzie di Roma e Italia, offriamo gratuitamente assistenza e reperimento della documentazione dell’immobile, certificazione energetica a prezzi competitivi, possibilità di consulenza in sede con mediatore creditizio (mutui e prestiti), notaio, ingegnere, geometra ed architetto, per risolvere con efficacia qualsiasi esigenza. INVENTUM IMMOBILIARE - Via di San Romano 27 - 06.69366204.

LEGGI TUTTO

CONDIVIDI SUI SOCIAL

DATI PRINCIPALI

Riferimento
631159
Contratto
Vendita
Tipologia
Appartamento
Superficie
122 mq
Locali
3
Camere da letto
2
Cucina
Angolo cottura
Bagni
1
Piano
1 °
Totale piani
2

CARATTERISTICHE

Ascensore

COSTI

Prezzo
€ 189.000,00

EFFICIENZA ENERGETICA

Stato
Ristrutturato
Anno costruzione
1967
Riscaldamento
Autonomo
Climatizzazione
Si
Classe energetica
G
IPE
175,00 kWh/m²a

A+

A

B

C

D

E

F

175,00 kWh/m²a | Classe energetica G

G

MAPPA

ANNUNCI SIMILI

VENDITA 20
€ 130.000
Appartamento in Vendita a Roma, Zona Valle Muricana
  • Trilocale
  • 90 mq
  • 1 bagno